※このサイトに記載がある賃貸条件は、敷金・保証金などの預かり金を除き、別途消費税がかかります。
お電話でもお気軽にお問い合わせください
物件情報
設備詳細
| 空調 | 個別空調 |
|---|---|
| トイレ | - |
| 床仕様 | OA対応床(フリーアクセス) |
| エレベータ | 1 基 |
| 駐車場設備 | - |
| その他 | 新耐震基準 / 機械警備 / 24時間利用可 / 光ファイバー / クリニック |
アクセスマップ
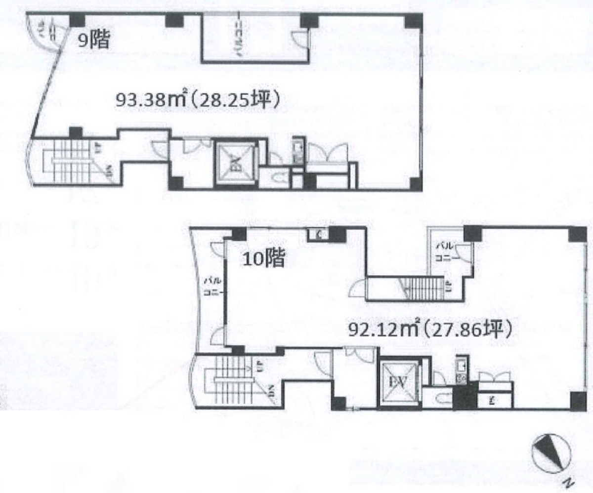
台東区蔵前3丁目に位置する、魅力的な賃貸オフィスビル「NRビル」をご紹介いたします。このオフィスビルは、1993年に竣工された、地上10階建ての耐震構造を誇る現代的なビルです。その最大の魅力は、何と言っても蔵前駅から徒歩わずか1分という驚くべきアクセスの良さにあります。ビジネスの世界では、立地が成功への鍵を握ります。NRビルは、その理想的な立地により、皆様のビジネスをさらに前進させるでしょう。 NRビルは、江戸通りに面しており、採光良好なオフィス環境を提供します。その外観は、曲線が美しく、エントランスは黒とグレーのシックなデザインで、訪れる方々に良い印象を与えます。ビル内の安全は、24時間体制の機械警備を完備しており、いつでも安心してご利用いただけます。また、1機のエレベーターがビル内の移動をスムーズにします。 オフィススペースは、基準階約30〜33坪のコンパクトながらも機能的なレイアウトが可能で、個別空調と男女別のトイレ設備を完備しており、働きやすい環境を提供します。特に、特徴的な形状の室内は、レイアウトの際に確認が必要ですが、創造的なオフィス空間を実現することもできるでしょう。 周辺環境も魅力の一つです。ビルの隣にはコンビニがあり、さらに近くにはチェーン系の飲食店やスーパーが豊富にあるため、日々のランチやちょっとした買い物にも便利です。また、近隣にはみずほ銀行浅草支店やキッチンオリジン蔵前店などがあり、ビジネスだけでなく日常生活においても利便性が高いです。 NRビルは、その立地、設備、環境と三拍子揃った賃貸オフィスビルです。ビジネスのスタートアップや拡大を考えている企業様にとって、最適な選択肢の一つと言えるでしょう。この機会に、ぜひNRビルで、皆様のビジネスを一層輝かせてみませんか?ご興味をお持ちの方は、お気軽にお問い合わせください。
WEB非公開物件がございます
オーナー様ご希望によるWEB非公開の物件もございます。先ずは条件などお知らせ頂けましたら、非公開物件含めピッタリのオフィスをご提案させて頂きます。具体的な物件がお決まりでない場合でも問題ございません。無理なお勧めはしておりませんので、お気軽にお問い合わせください。
ご来店も歓迎です
オフィス移転は社内・社外ともに非公開に行われることが殆どです。そのためアットオフィスでは、基本的に訪問によるコンサルティングを行っておりますが、ご来店の相談も歓迎です。
※お一人おひとりに親身にご対応させて頂きたい為、要予約とさせて頂いております。ご来店の際は先ずは上記よりご予約下さい。
読込中...
浅草橋/蔵前/浅草エリアでNRビルに似た条件の物件
読込中...