※このサイトに記載がある賃貸条件は、敷金・保証金などの預かり金を除き、別途消費税がかかります。
お電話でもお気軽にお問い合わせください
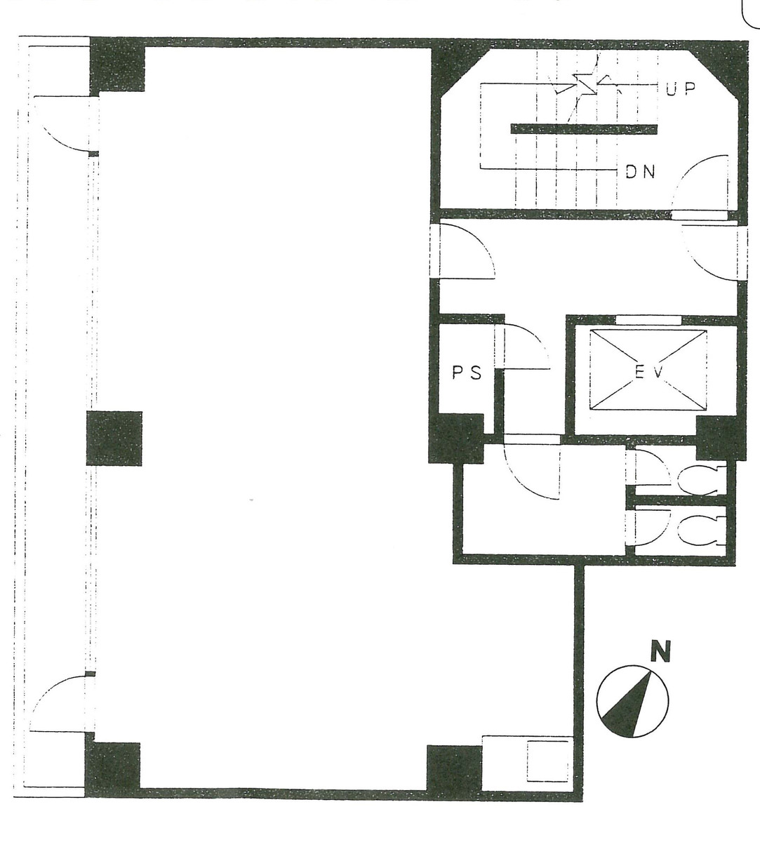
物件情報
設備詳細
| 空調 | - |
|---|---|
| トイレ | - |
| 床仕様 | - |
| エレベータ | 1 基 |
| 駐車場設備 | - |
| その他 | SOHO/マンション |
中央区築地3丁目に位置する「第6東経ビル」は、その利便性の高さと施設の充実度により、SOHOや事務所用途に最適な環境を提供しています。築地駅からわずか徒歩2分の距離にあり、また新富町駅も利用可能という二重の交通アクセスの良さは、ビジネスシーンにおいて日々の通勤やクライアントとのアクセスをスムーズにします。この記事では、第6東経ビルの特徴、立地、設備などに焦点を当て、その独自の魅力を掘り下げていきます。 まず、外観に目を向けると、ビルは赤色のレンガ調が特徴的で、一際目を引くデザインです。最近リニューアルされたエントランスは、清潔感があり、訪れる人々に良い印象を与えます。このように、ビル自体の外観やエントランスのデザインは、テナント企業のイメージアップにも寄与します。 ビル内部の設備も見逃せません。エレベーターは1機設置されており、ビルの規模に見合った円滑な移動を支援します。また、南西向きの立地により、日当たりが良好で、自転車置き場も完備されています。これらの設備は、働く人たちの日々の快適さを高め、また環境に優しい通勤手段を選択する人々に配慮しています。 ビルは全面リニューアルが済んでおり、最新の設備と清潔感溢れる内装が、テナント企業の業務効率を高めるだけでなく、来客を迎える際にも好印象を与えます。このような内装と設備の整ったオフィス環境は、社員のモチベーション向上にも寄与し、ビジネスの発展を促進します。 立地に関しては、築地市場の近くに位置し、飲食店や小売店が周辺に豊富にあり、ランチや仕事後の食事、ちょっとした買い物にも便利な環境です。また、東京都心へのアクセスの良さは、営業活動やビジネス面談の機会を増やし、事業拡大の可能性を広げます。 総じて、「第6東経ビル」は、その抜群の立地、充実した設備、そしてビジネスにおける利点を考慮すると、SOHOや事務所利用を検討する企業にとって、非常に魅力的な選択肢と言えるでしょう。利便性と機能性を重視する企業にとって、ここは単なるオフィススペース以上の価値を提供します。
募集終了のテナント区画
| 階数 | 坪数 | 賃料 + 共益費 | 敷金/礼金敷金 礼金 | 検討 |
|---|---|---|---|---|
| 4階 | 32.62坪 (107.84m²) | 募集終了 | - | - |
| 5階 | 18.12坪 (59.9m²) | 募集終了 | - | - |
| 7階 | 24.24坪 (80.15m²) | 募集終了 | - | - |
| 7階 | 8.42坪 (27.85m²) | 募集終了 | - | - |
WEB非公開物件がございます
オーナー様ご希望によるWEB非公開の物件もございます。先ずは条件などお知らせ頂けましたら、非公開物件含めピッタリのオフィスをご提案させて頂きます。具体的な物件がお決まりでない場合でも問題ございません。無理なお勧めはしておりませんので、お気軽にお問い合わせください。
ご来店も歓迎です
オフィス移転は社内・社外ともに非公開に行われることが殆どです。そのためアットオフィスでは、基本的に訪問によるコンサルティングを行っておりますが、ご来店の相談も歓迎です。
※お一人おひとりに親身にご対応させて頂きたい為、要予約とさせて頂いております。ご来店の際は先ずは上記よりご予約下さい。
読込中...
新富/築地エリアで第6東経ビルに似た条件の物件
読込中...