トーカンマンション五反田2階の賃貸情報
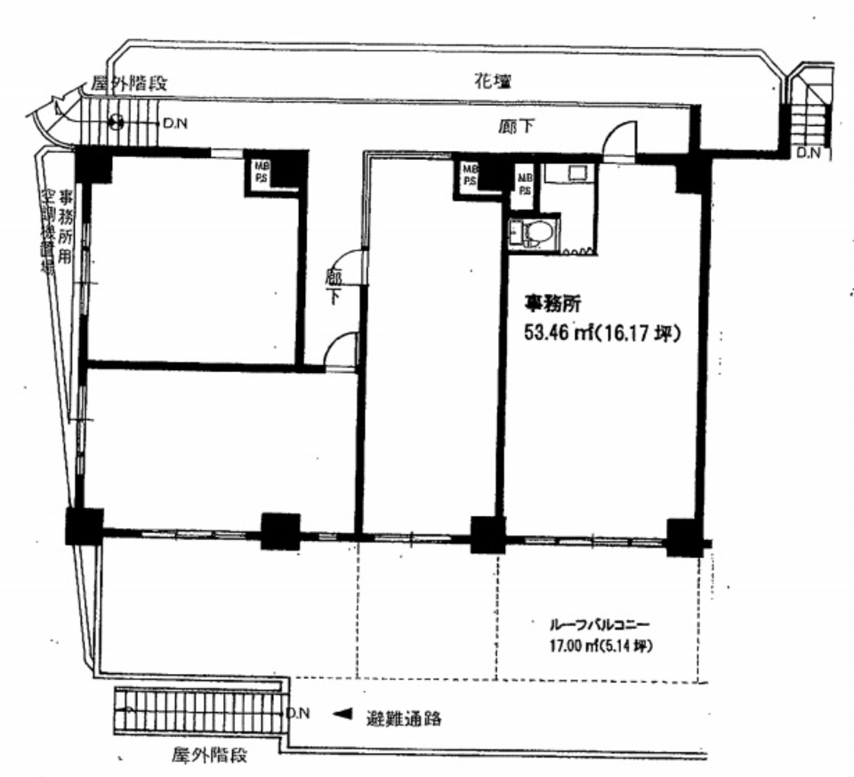
16.17 坪 (53.45m²)
※このサイトに記載がある賃貸条件は、敷金・保証金などの預かり金を除き、別途消費税がかかります。
トーカンマンション五反田の建物概要
設備詳細
| 空調 | - |
|---|---|
| トイレ | - |
| 床仕様 | - |
| エレベータ | - |
| 駐車場設備 | - |
| その他 | 東京賃料が坪11000円以下 |
トーカンマンション五反田2階の賃貸オフィス・事務所に関するお問い合わせ
トーカンマンション五反田について
トーカン五反田ビルは、品川区大崎4丁目に位置するオフィス賃貸物件です。このビルは、ビジネスの中心地に位置し、アクセスの良さが大きな魅力となっています。 まず、交通アクセスについてご紹介します。トーカン五反田ビルは、山手線の五反田駅から徒歩5分、同じく山手線の大崎駅からも徒歩6分という絶好の立地にあります。これにより、首都圏の主要エリアへの移動が非常にスムーズで、通勤やビジネスミーティングに大変便利です。また、周辺には複数のバス路線も運行しており、公共交通機関を利用したアクセスの選択肢が豊富です。 次に、ビルの設備についてです。トーカン五反田ビルは、モダンなデザインと最新の設備を兼ね備えたオフィスビルです。ビル内には高速エレベーターが設置されており、各フロアへの移動が迅速かつ快適です。また、セキュリティシステムも充実しており、24時間の監視カメラと防犯対策が施されています。これにより、テナントの安全を確保し、安心して業務に集中することができます。 さらに、ビジネス環境としての利点も見逃せません。トーカン五反田ビルは、周囲に多くのビジネス施設や商業施設が集積しているため、ビジネスチャンスが広がります。例えば、近隣には多数のレストランやカフェがあり、ビジネスランチや打ち合わせの場所に困ることはありません。また、金融機関や郵便局も近くに位置しており、ビジネスに必要な各種手続きがスムーズに行える環境が整っています。 ビルの内部は、明るく開放的なオフィススペースが特徴です。各フロアは柔軟にレイアウトを変更できる設計となっており、企業のニーズに合わせたカスタマイズが可能です。これにより、効率的な業務環境を実現することができます。また、大きな窓からは自然光がたっぷりと差し込み、快適な作業空間を提供します。 最後に、トーカン五反田ビルの独自の魅力について強調します。このビルは、都市の中心にありながらも、静かで落ち着いた環境を提供します。周辺には緑豊かな公園もあり、リフレッシュしたい時には気軽に散策が楽しめます。また、ビル内には充実した共用スペースがあり、テナント間の交流が促進される設計となっているため、ビジネスネットワークの拡大にも寄与します。 総じて、トーカン五反田ビルは、その絶好の立地、最新の設備、快適なオフィス環境、そして充実した周辺施設により、ビジネスの成功を支える理想的なオフィススペースと言えるでしょう。興味をお持ちの方は、ぜひ一度現地をご覧いただき、その魅力を実際に確かめてみてください。
トーカンマンション五反田のこだわり
自分で探すより問い合わせる方が早いことがあります
WEB非公開物件があるから
オーナー様のご希望により「WEBでは非公開」にしている物件があります。 それらはWEBでいくら検索しても見つかりません。 先ずは条件などお知らせ頂けましたら非公開物件含め ピッタリのオフィスをご提案させて頂きます。 無理なお勧めはしておりませんので、お気軽にお問い合わせください。
対面でのご相談も受け付けております
ご来店も歓迎です
オフィス移転は社内・社外ともに非公開に行われることが殆どです。そのためアットオフィスでは、基本的に訪問によるコンサルティングを行っておりますが、ご来店の相談も歓迎です。お一人おひとりに親身にご対応させて頂きたい為、要予約とさせて頂いております。ご来店の際は先ずは下記よりご予約下さい。
品川/大崎/大井エリアでトーカンマンション五反田に似た条件の物件
読込中...
トーカンマンション五反田と同じ最寄駅の物件
読込中...
| 取扱様態 | 仲介 |
|---|---|
| 取扱会社 | 株式会社 アットオフィス |