AKIBA1131ビル7階の賃貸情報
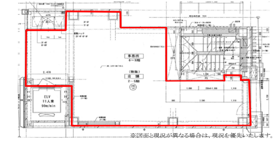
27.29 坪 (90.21m²)
※このサイトに記載がある賃貸条件は、敷金・保証金などの預かり金を除き、別途消費税がかかります。
AKIBA1131ビルの建物概要
設備詳細
| 空調 | - |
|---|---|
| トイレ | - |
| 床仕様 | - |
| エレベータ | - |
| 駐車場設備 | - |
| その他 | 機械警備 / 新耐震基準 / 居抜き / クリニック / 店舗可(飲食可) |
AKIBA1131ビル7階の賃貸オフィス・事務所に関するお問い合わせ
AKIBA1131ビルについて
秋葉原、東京都千代田区外神田1-13-1に位置するAKIBA1131ビルは、現代のビジネスニーズに応える最新設備と利便性を兼ね備えたオフィスビルです。2014年に竣工したこの物件は、その新しさと機能性で多くの企業に注目されています。 立地において、AKIBA1131ビルは秋葉原駅からわずか徒歩1分という、アクセスの良さが特徴です。秋葉原は、エレクトロニクス、IT技術、アニメといった最先端の文化が集まる場所であり、ビジネスの可能性を広げる理想的な環境を提供します。この立地は、ビジネスの機会を最大限に活用し、クライアントや従業員にとって非常に便利な場所であることを意味します。 設備面では、AKIBA1131ビルは天井高2.7mという開放感あふれる空間を提供しています。この高さは、オフィス内での作業効率を高め、快適な職場環境を実現します。また、事務所用途と店舗用途に分かれた階があり、ビル内での事業展開を柔軟に行うことが可能です。ビルの構造としても、最新の技術を駆使した耐震設計が施されており、安全性にも優れています。 AKIBA1131ビルの魅力は、新しさだけでなく、ビジネスを行う上での多様なニーズに応える設備と、文化的にも経済的にも活気ある秋葉原という立地にあります。特に、IT業界やクリエイティブ産業に携わる企業にとって、このビルは革新的なアイデアとビジネスチャンスを探求する上で理想的な場所と言えるでしょう。 ビルの紹介を通じて、AKIBA1131ビルがビジネスの成功をサポートするための、高い機能性と利便性を備えたモダンなオフィス空間であることがお分かりいただけたかと思います。将来性豊かな秋葉原で、新たなビジネスの拠点として、ぜひ一度ご検討いただきたい物件です。
AKIBA1131ビルのこだわり
自分で探すより問い合わせる方が早いことがあります
WEB非公開物件があるから
オーナー様のご希望により「WEBでは非公開」にしている物件があります。 それらはWEBでいくら検索しても見つかりません。 先ずは条件などお知らせ頂けましたら非公開物件含め ピッタリのオフィスをご提案させて頂きます。 無理なお勧めはしておりませんので、お気軽にお問い合わせください。
対面でのご相談も受け付けております
ご来店も歓迎です
オフィス移転は社内・社外ともに非公開に行われることが殆どです。そのためアットオフィスでは、基本的に訪問によるコンサルティングを行っておりますが、ご来店の相談も歓迎です。お一人おひとりに親身にご対応させて頂きたい為、要予約とさせて頂いております。ご来店の際は先ずは下記よりご予約下さい。
神田/秋葉原エリアでAKIBA1131ビルに似た条件の物件
読込中...
AKIBA1131ビルと同じ最寄駅の物件
読込中...
| 取扱様態 | 仲介 |
|---|---|
| 取扱会社 | 株式会社 アットオフィス |