赤坂GHSビル5階の賃貸情報
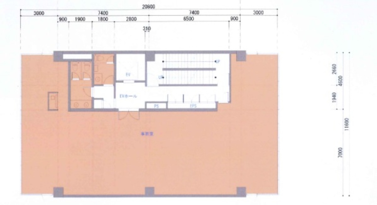
57.83 坪 (191.18m²)
※このサイトに記載がある賃貸条件は、敷金・保証金などの預かり金を除き、別途消費税がかかります。
赤坂GHSビルの建物概要
設備詳細
| 空調 | 個別空調 |
|---|---|
| トイレ | - |
| 床仕様 | OA対応床(フリーアクセス) |
| エレベータ | 1 基 |
| 駐車場設備 | 空有 / 機械式駐車場 |
| その他 | 24時間利用可 / 光ファイバー / 新耐震基準 / クリニック |
赤坂GHSビル5階の賃貸オフィス・事務所に関するお問い合わせ
赤坂GHSビルについて
赤坂GHSビル(旧:TAKATAビル)は、1996年に港区赤坂に誕生した、現代のビジネスニーズに応える賃貸オフィスビルです。地上7階建てのこの物件は、50坪前後の貸室がメインで、フロアごとに異なる面積を提供しており、さまざまな企業のニーズに対応可能です。特に注目すべきは、その立地条件です。赤坂駅、溜池山王駅、赤坂見附駅から徒歩圏内というアクセスの良さは、ビジネスにおいて非常に価値が高く、社員やクライアントの移動をスムーズにします。 ビルのエントランスは3階にあり、低層階にはドライエリアからの採光を利用し、明るい室内環境を実現しています。また、空調はリニューアルされ、各階に男女別トイレを設置、24時間のオフィス使用が可能という点も、長時間労働が常態化するビジネスシーンにおいて大きなアドバンテージとなります。セキュリティ面では、機械警備を導入し、安全なオフィス環境を提供しています。 2014年には共用部の内装リニューアルが行われ、洗練されたビルの雰囲気は企業イメージを高めるのに一役買っています。また、周辺環境も魅力的で、街路樹が並ぶ前面道路や、豊富な飲食店があり、ビジネスランチやアフター5の憩いの場として最適です。 赤坂GHSビルは、新耐震基準に則って建設された耐震性の高いビルであり、安心してビジネスを行うことができます。さらに、ビル内に駐車場を完備しており、車を利用するビジネスパーソンには便利な条件を提供しています。 このビルは、優れた立地、充実した設備、洗練されたデザインを兼ね備え、ビジネスの成功を支える最適なオフィススペースと言えるでしょう。赤坂GHSビルは、企業が成長し続けるための最高のパートナーとなることでしょう。今こそ、貴社の新しいビジネスの拠点として、赤坂GHSビルの可能性を探ってみませんか?
自分で探すより問い合わせる方が早いことがあります
WEB非公開物件があるから
オーナー様のご希望により「WEBでは非公開」にしている物件があります。 それらはWEBでいくら検索しても見つかりません。 先ずは条件などお知らせ頂けましたら非公開物件含め ピッタリのオフィスをご提案させて頂きます。 無理なお勧めはしておりませんので、お気軽にお問い合わせください。
対面でのご相談も受け付けております
ご来店も歓迎です
オフィス移転は社内・社外ともに非公開に行われることが殆どです。そのためアットオフィスでは、基本的に訪問によるコンサルティングを行っておりますが、ご来店の相談も歓迎です。お一人おひとりに親身にご対応させて頂きたい為、要予約とさせて頂いております。ご来店の際は先ずは下記よりご予約下さい。
赤坂/六本木/麻布エリアで赤坂GHSビルに似た条件の物件
読込中...
赤坂GHSビルと同じ最寄駅の物件
読込中...
| 取扱様態 | 仲介 |
|---|---|
| 取扱会社 | 株式会社 アットオフィス |