※このサイトに記載がある賃貸条件は、敷金・保証金などの預かり金を除き、別途消費税がかかります。
物件情報
設備詳細
| 空調 | 個別空調 |
|---|---|
| トイレ | - |
| 床仕様 | OA対応床(フリーアクセス) |
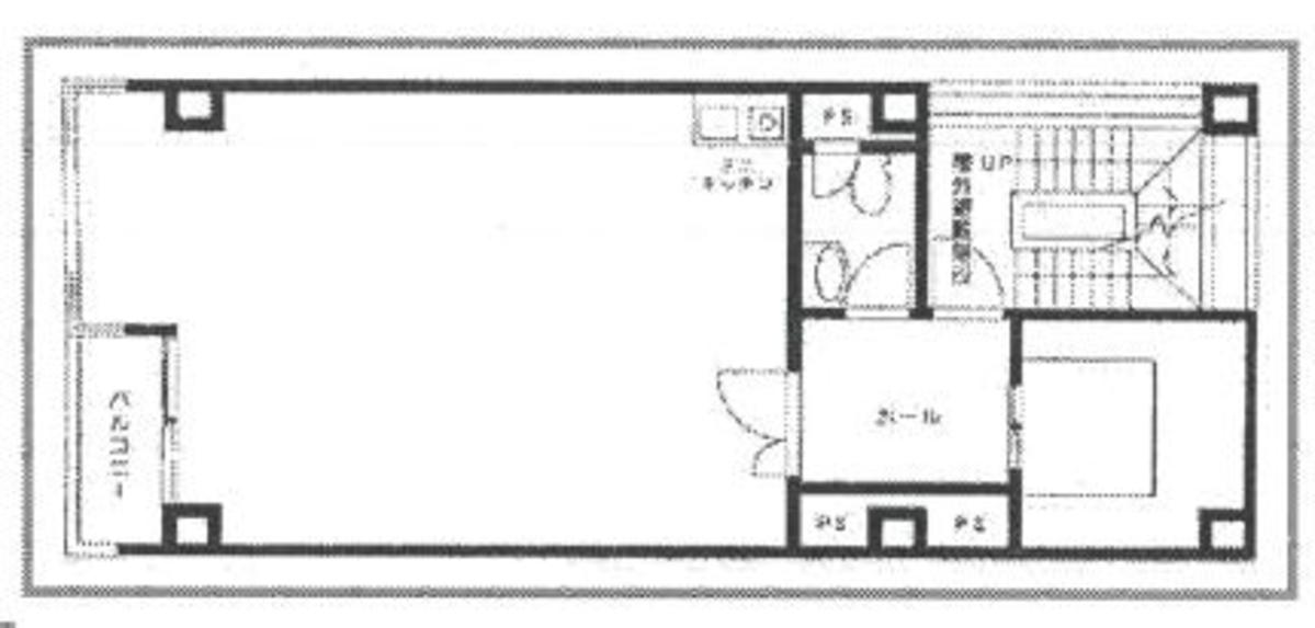
| エレベータ | 1 基 |
| 駐車場設備 | - |
| その他 | 光ファイバー / 新耐震基準 |
新橋シティビルの賃貸オフィス・事務所に関するお問い合わせ
新橋シティビルについて
新橋シティビルは、まさにビジネスの中心地に位置する、2005年竣工のモダンなオフィスビルです。港区新橋3丁目に誇りを持って立つこのビルは、その最高の立地条件に加え、機能性と快適性を兼ね備えた設計で、様々な業種の企業に最適なオフィス空間を提供しています。 立地に関して言えば、新橋シティビルは非常にアクセスが良好です。内幸町駅や新橋駅から徒歩圏内にあり、虎ノ門駅や御成門駅からもアクセス可能で、東京都心部への移動が非常に便利です。このような立地は、ビジネスの機会を最大限に活かす上で非常に重要です。 ビル自体も非常に魅力的な設備を備えています。1フロア1テナントのレイアウトは、テナントにとって非常に使い勝手が良く、プライバシーと独立性を保ちながら、効率的なオフィス運営が可能です。また、エレベーターが1機設置されているため、移動の際の待ち時間が少なく、スムーズなビル内の移動が可能です。 新橋シティビルは、モダンなオフィス空間を探している企業にとって、理想的な選択肢となるでしょう。その立地、設備、そして使い勝手の良さは、ビジネスを次のレベルに引き上げるための強力なサポートを提供します。ビジネスの成功に不可欠な、アクセスの利便性と快適なオフィス環境を兼ね備えた新橋シティビルは、あなたのビジネスの新たな拠点として最適な選択です。 ご興味がおありの方は、ぜひお気軽にお問い合わせください。新橋シティビルで、ビジネスの新しいステージを始めてみませんか?私たちは、あなたとあなたのビジネスを全力でサポートいたします。
新橋シティビルのこだわり
自分で探すより問い合わせる方が早いことがあります
WEB非公開物件があるから
オーナー様のご希望により「WEBでは非公開」にしている物件があります。 それらはWEBでいくら検索しても見つかりません。 先ずは条件などお知らせ頂けましたら非公開物件含め ピッタリのオフィスをご提案させて頂きます。 無理なお勧めはしておりませんので、お気軽にお問い合わせください。
対面でのご相談も受け付けております
ご来店も歓迎です
オフィス移転は社内・社外ともに非公開に行われることが殆どです。そのためアットオフィスでは、基本的に訪問によるコンサルティングを行っておりますが、ご来店の相談も歓迎です。お一人おひとりに親身にご対応させて頂きたい為、要予約とさせて頂いております。ご来店の際は先ずは下記よりご予約下さい。
募集終了のテナント区画
| 階数 | 坪数 | 賃料 + 共益費 | 敷金/礼金敷金 礼金 | 検討 |
|---|---|---|---|---|
| 1階 | 5.71坪 (18.88m²) | 募集終了 | - | - |
| 2階 | 12.04坪 (39.8m²) | 募集終了 | - | - |
| 3階 | 12.04坪 (39.8m²) | 募集終了 | - | - |
| 4階 | 12.04坪 (39.8m²) | 募集終了 | - | - |
| 5階 | 12.04坪 (39.8m²) | 募集終了 | - | - |
| 7階 | 12.04坪 (39.8m²) | 募集終了 | - | - |
| 8階 | 12.03坪 (39.77m²) | 募集終了 | - | - |
| 9階 | 12.04坪 (39.8m²) | 募集終了 | - | - |
読込中...
近くのエリアで探してみる
新橋/虎ノ門/神谷町エリアで新橋シティビルに似た条件の物件
読込中...
| 取扱様態 | 仲介 |
|---|---|
| 取扱会社 | 株式会社 アットオフィス |