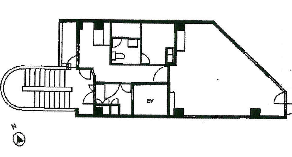
COMFOUSEビル5階の賃貸情報
13.15 坪 (43.49m²)
※このサイトに記載がある賃貸条件は、敷金・保証金などの預かり金を除き、別途消費税がかかります。
COMFOUSEビルの建物概要
設備詳細
| 空調 | 個別空調 |
|---|---|
| トイレ | - |
| 床仕様 | - |
| エレベータ | 1 基 |
| 駐車場設備 | - |
| その他 | 光ファイバー |
COMFOUSEビルについて
都心の賑わいと静寂が共存する、南青山7丁目に位置するCOMFOUSEビルは、モダンなSOHO及び事務所利用に最適化された、2002年に新耐震基準で建てられた高品質なマンションです。この地に建つことで、私たちのビジネスライフに新たな価値をもたらし、その利便性と快適性によって、日々の業務効率を飛躍的に向上させます。今回は、COMFOUSEビルの魅力について詳しくご紹介いたします。 まず、このビルの立地は、東京の最も洗練されたエリアの一つである南青山にあります。このエリアは、ビジネスと文化が融合する地であり、多様な企業、アートギャラリー、高級レストランが立ち並びます。COMFOUSEビルからは、青山通りや表参道がすぐそばにあり、ビジネスの機会はもちろん、アフター5のリラックスタイムを楽しむこともできます。 ビル自体は、最新の耐震基準に基づいて建設された2002年竣工の物件で、安全と安心を提供します。地震発生時のリスクを最小限に抑える設計は、ビジネスの継続性を保障する重要な要素です。また、ビル内には駐車場が完備されており、ビジネスでの利用はもちろん、お客様をお迎えする際の便利さも兼ね備えています。空き状況につきましては、お気軽にお問い合わせください。 COMFOUSEビルには、1機のエレベーターが設置されており、快適かつスムーズな移動を実現します。SOHOや事務所利用に適したフレキシブルなレイアウトで、あらゆるビジネスニーズに対応可能です。自社のブランドイメージを高めるためのデザイン性の高い空間から、機能性を重視した効率的なオフィスまで、ビルの柔軟な設計により、様々な形態のオフィス作りを実現できます。 ここCOMFOUSEビルは、単なるビルを超えた価値を提供します。その立地、新耐震基準での建設、駐車場の利便性、そしてSOHOや事務所利用に最適化された設計は、ビジネスの成功を約束する要素が満載です。南青山という、ビジネスと文化が息づくエリアで、あなたのビジネスを次のレベルへと導く準備はできていますか?COMFOUSEビルで、新たなビジネスライフをスタートさせましょう。
COMFOUSEビルのこだわり
自分で探すより問い合わせる方が早いことがあります
WEB非公開物件があるから
オーナー様のご希望により「WEBでは非公開」にしている物件があります。 それらはWEBでいくら検索しても見つかりません。 先ずは条件などお知らせ頂けましたら非公開物件含め ピッタリのオフィスをご提案させて頂きます。 無理なお勧めはしておりませんので、お気軽にお問い合わせください。
対面でのご相談も受け付けております
ご来店も歓迎です
オフィス移転は社内・社外ともに非公開に行われることが殆どです。そのためアットオフィスでは、基本的に訪問によるコンサルティングを行っておりますが、ご来店の相談も歓迎です。お一人おひとりに親身にご対応させて頂きたい為、要予約とさせて頂いております。ご来店の際は先ずは下記よりご予約下さい。
青山エリアでCOMFOUSEビルに似た条件の物件
読込中...
COMFOUSEビルと同じ最寄駅の物件
読込中...
| 取扱様態 | 仲介 |
|---|---|
| 取扱会社 | 株式会社 アットオフィス |