エレガンス第3ビル3階の賃貸情報
25.27 坪 (83.54m²)
※このサイトに記載がある賃貸条件は、敷金・保証金などの預かり金を除き、別途消費税がかかります。
エレガンス第3ビルの建物概要
設備詳細
| 空調 | - |
|---|---|
| トイレ | - |
| 床仕様 | - |
| エレベータ | 1 基 |
| 駐車場設備 | 空無 |
| その他 | 東京賃料が坪11000円以下 |
エレガンス第3ビル3階の賃貸オフィス・事務所に関するお問い合わせ
エレガンス第3ビルについて
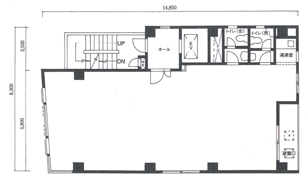
長島エレガンス第3ビルは、東京都台東区浅草橋に位置する賃貸オフィスビルであり、1987年に竣工した7階建ての建物です。本ビルの所在する浅草橋エリアは、ビジネスと住居が共存する落ち着いた環境でありながら、浅草橋駅から徒歩3分というアクセスの良さを誇ります。このため、ビジネスの拠点としての利便性と、快適な周辺環境を兼ね備えています。 基準階約25坪のオフィススペースは、ほぼ長方形の貸室で、壁際に柱が配置されているため、レイアウトの自由度が高く、効率的なオフィス環境を実現できます。更に、個別空調システムにより、各テナントが快適な室温を維持することが可能です。室内は清潔感があり、ビジネスの場としてのプロフェッショナルな印象を与えます。 ビル内にはエレベーターが1基設置されており、駐車場の有無についても、ビル内に設けられているため、お車をご利用のテナントにとっても大変便利です。ただし、駐車場の空き状況については、変動があるため、事前のお問い合わせが必要です。 外観はグレータイル張りで、シンプルながらも洗練されたデザインを採用しており、オフィスビルとしての品格を保ちつつ、周辺環境にも調和しています。ビルの出入り口やエレベーター周りも整備されており、訪れるクライアントにも良好な印象を与えることができます。 周辺環境においても、浅草橋駅西口に近く、飲食店、カフェ、スーパーマーケット、銀行といった生活に必要な施設が徒歩圏内に揃っており、テナントの日常のニーズに応えることができます。このように、長島エレガンス第3ビルは、アクセスの良さ、効率的なオフィスレイアウト、快適な周辺環境を兼ね備え、ビジネスの成功に貢献する賃貸オフィスビルとして、高い魅力を有しています。
エレガンス第3ビルのこだわり
自分で探すより問い合わせる方が早いことがあります
WEB非公開物件があるから
オーナー様のご希望により「WEBでは非公開」にしている物件があります。 それらはWEBでいくら検索しても見つかりません。 先ずは条件などお知らせ頂けましたら非公開物件含め ピッタリのオフィスをご提案させて頂きます。 無理なお勧めはしておりませんので、お気軽にお問い合わせください。
対面でのご相談も受け付けております
ご来店も歓迎です
オフィス移転は社内・社外ともに非公開に行われることが殆どです。そのためアットオフィスでは、基本的に訪問によるコンサルティングを行っておりますが、ご来店の相談も歓迎です。お一人おひとりに親身にご対応させて頂きたい為、要予約とさせて頂いております。ご来店の際は先ずは下記よりご予約下さい。
浅草橋/蔵前/浅草エリアでエレガンス第3ビルに似た条件の物件
読込中...
エレガンス第3ビルと同じ最寄駅の物件
読込中...
| 取扱様態 | 仲介 |
|---|---|
| 取扱会社 | 株式会社 アットオフィス |