オリックス上野1丁目ビル4階の賃貸情報
392.18 坪 (1296.49m²)
※このサイトに記載がある賃貸条件は、敷金・保証金などの預かり金を除き、別途消費税がかかります。
オリックス上野1丁目ビルの建物概要
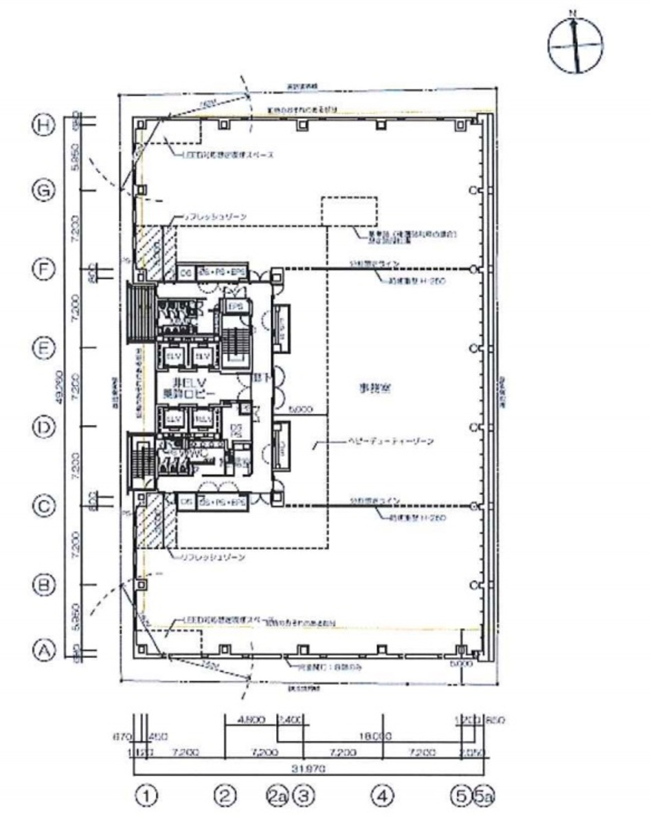
設備詳細
| 空調 | 個別空調 |
|---|---|
| トイレ | - |
| 床仕様 | OA対応床(フリーアクセス) |
| エレベータ | 4 基 |
| 駐車場設備 | 空有 |
| その他 | 新耐震基準 |
オリックス上野1丁目ビル4階の賃貸オフィス・事務所に関するお問い合わせ
オリックス上野1丁目ビルについて
オリックス上野1丁目ビルは、台東区上野1丁目に位置する、2016年竣工の大型ハイグレードオフィスビルです。都心の利便性と静寂を兼ね備えたこの物件は、ビジネスシーンにおいて理想的な環境を提供します。その特長を、立地、構造、設備、環境の4つの観点から詳しくご紹介します。 【立地】 オリックス上野1丁目ビルは、御徒町駅からわずか徒歩4分という驚異の駅近物件であり、湯島駅、上野広小路駅、末広町駅といった複数の駅が利用可能な好立地にあります。これにより、東京メトロ千代田線をはじめとする多様な交通網を手軽に利用できるため、ビジネスの機動性を高めることができます。また、秋葉原方面へのアクセスも容易で、ビジネスのみならず、ショッピングやレジャーの拠点としても最適です。 【構造】 制震構造を採用し、新耐震基準1.5倍相当の強固な構造体に制震ダンパーを加えたこのビルは、高い耐震性能を誇ります。万が一の災害時でも、ビル内のテナント様の安全と事業の継続性を最大限に支えます。 【設備】 約400坪の大型賃貸オフィスフロアは、レイアウト自由度の高い無柱空間で、採光性に優れた開放的な貸室を提供します。床高さ100mmのOAフロアや、29分割しての運転が可能な個別空調、全館LED照明、光ファイバー引き込み済みなど、テナントのニーズに応じた高スペックな設備が整っています。また、環境配慮型の設備として、太陽光パネルや電気自動車の充電器、自然換気システム、雨水利用などが導入されており、省エネ性能にも優れています。 【環境】 広々としたエントランスホールや、屋上テラスが緑化された庭園、1階に入居するコンビニエンスストアなど、オリックス上野1丁目ビルは働く人々の快適さと利便性を重視した設計が施されています。周辺には飲食店や銀行などが充実しており、ビジネスだけでなく日常生活にも便利な環境が整っています。 オリックス上野1丁目ビルは、その立地の良さ、高い耐震性能、充実した設備、そして快適な環境といった点で、ビジネスの成功を支える最適なオフィス空間を提供します。ビジネスの拠点として、ぜひオリックス上野1丁目ビルをご検討ください。
オリックス上野1丁目ビルのこだわり
自分で探すより問い合わせる方が早いことがあります
WEB非公開物件があるから
オーナー様のご希望により「WEBでは非公開」にしている物件があります。 それらはWEBでいくら検索しても見つかりません。 先ずは条件などお知らせ頂けましたら非公開物件含め ピッタリのオフィスをご提案させて頂きます。 無理なお勧めはしておりませんので、お気軽にお問い合わせください。
対面でのご相談も受け付けております
ご来店も歓迎です
オフィス移転は社内・社外ともに非公開に行われることが殆どです。そのためアットオフィスでは、基本的に訪問によるコンサルティングを行っておりますが、ご来店の相談も歓迎です。お一人おひとりに親身にご対応させて頂きたい為、要予約とさせて頂いております。ご来店の際は先ずは下記よりご予約下さい。
上野/台東/東上野エリアでオリックス上野1丁目ビルに似た条件の物件
読込中...
オリックス上野1丁目ビルと同じ最寄駅の物件
読込中...
| 取扱様態 | 仲介 |
|---|---|
| 取扱会社 | 株式会社 アットオフィス |