※このサイトに記載がある賃貸条件は、敷金・保証金などの預かり金を除き、別途消費税がかかります。
物件情報
設備詳細
| 空調 | 個別空調 |
|---|---|
| トイレ | - |
| 床仕様 | OA対応床(フリーアクセス) |
| エレベータ | 2 基 |
| 駐車場設備 | 空有 / 機械式駐車場 |
| その他 | 新耐震基準 / 駅直結 / 居抜き |
PMO半蔵門の賃貸オフィス・事務所に関するお問い合わせ
PMO半蔵門について
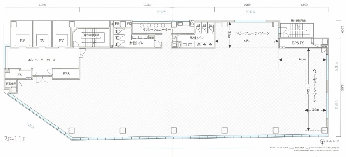
PMO半蔵門ビルは、東京都千代田区麹町に位置する2017年6月に竣工した最新の賃貸オフィスビルです。この物件は、東京メトロ半蔵門線「半蔵門駅」と直結しており、アクセスの便利さが最大の特徴のひとつです。また、麹町駅と永田町駅も徒歩5~10分の距離にあり、都心の主要エリアへの移動も容易です。 PMO半蔵門ビルは、地上11階建てで、新耐震基準の1.5倍相当の耐震強度を持つ「I類構造体」を採用しているため、災害時でも安心してご利用いただけます。オフィスフロアは約170坪の広さで、高さ2800mmのシステム天井と無柱のフロア設計により、フレキシブルなレイアウトが可能です。また、採光に優れており、快適なオフィス環境を提供します。 設備面では、1階のエントランスホールにはPMOオリジナルのアロマが香り、高級感あふれる空間を演出しています。セキュリティはメインエントランス、セキュリティーゲート、エレベーター、貸室入口、貸室内の5段階で保護されており、入居者専用の喫煙ルームも設けられています。さらに、エレベーターは乗用2基・非常用1基の計3基が設置されており、スムーズな移動をサポートします。 付帯設備として、駐輪場および機械式駐車場が敷地内にあり、通勤の利便性を向上させています。立地に恵まれたこのビルは、銀行や飲食店などオフィスワーカーの日々の業務を支える施設が周辺に揃っています。 PMO半蔵門ビルは、新宿通りに面しており、周辺にはサンマルクカフェ半蔵門店やローソン麹町二丁目店、オリジンデリカ半蔵門店、半蔵門駅前郵便局などがあり、日常の利便性も高いです。 総合的に、PMO半蔵門ビルは、最新の設備とセキュリティ、優れたアクセス性を兼ね備えた賃貸オフィスビルとして、さまざまなビジネスのニーズに応えることができる物件です。立地の良さと高い機能性を求める企業にとって、最適なオフィススペースとなるでしょう。
自分で探すより問い合わせる方が早いことがあります
WEB非公開物件があるから
オーナー様のご希望により「WEBでは非公開」にしている物件があります。 それらはWEBでいくら検索しても見つかりません。 先ずは条件などお知らせ頂けましたら非公開物件含め ピッタリのオフィスをご提案させて頂きます。 無理なお勧めはしておりませんので、お気軽にお問い合わせください。
対面でのご相談も受け付けております
ご来店も歓迎です
オフィス移転は社内・社外ともに非公開に行われることが殆どです。そのためアットオフィスでは、基本的に訪問によるコンサルティングを行っておりますが、ご来店の相談も歓迎です。お一人おひとりに親身にご対応させて頂きたい為、要予約とさせて頂いております。ご来店の際は先ずは下記よりご予約下さい。
募集終了のテナント区画
| 階数 | 坪数 | 賃料 + 共益費 | 敷金/礼金敷金 礼金 | 検討 |
|---|---|---|---|---|
| 9階 | 171.33坪 (566.4m²) | 募集終了 | - | - |
| 11階 | 171.33坪 (566.38m²) | 募集終了 | - | - |
読込中...
番町/麹町/平河町エリアでPMO半蔵門に似た条件の物件
読込中...
| 取扱様態 | 仲介 |
|---|---|
| 取扱会社 | 株式会社 アットオフィス |