シティパレス南葛西ビル1階の賃貸情報
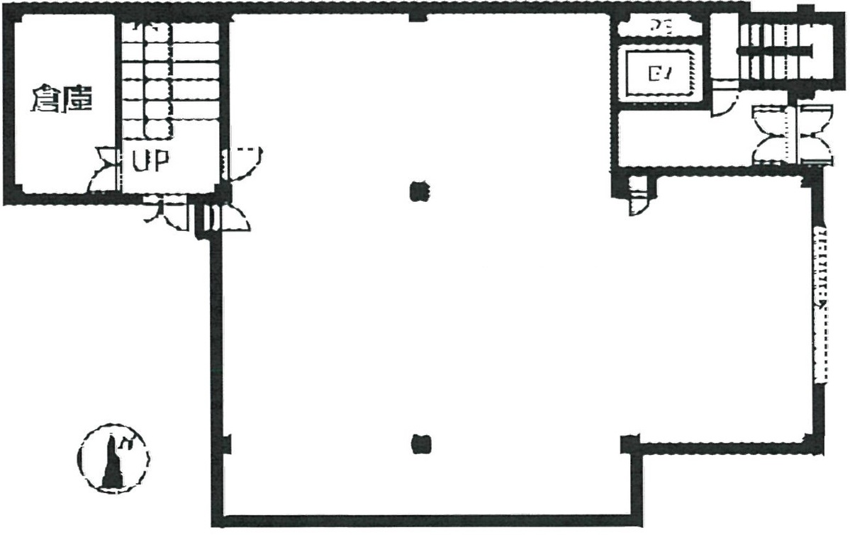
74.94 坪 (247.75m²)
※このサイトに記載がある賃貸条件は、敷金・保証金などの預かり金を除き、別途消費税がかかります。
シティパレス南葛西ビルの建物概要
設備詳細
| 空調 | - |
|---|---|
| トイレ | - |
| 床仕様 | - |
| エレベータ | - |
| 駐車場設備 | - |
| その他 | 新耐震基準 / クリニック / 1階の物件 |
シティパレス南葛西ビル1階の賃貸オフィス・事務所に関するお問い合わせ
シティパレス南葛西ビルについて
シティパレス南葛西ビルは、江戸川区南葛西1丁目に位置しています。最寄駅は東西線「葛西駅」から徒歩13分、同じく東西線「西葛西駅」から徒歩19分、京葉線「葛西臨海公園駅」からも徒歩19分の距離にあり、複数の路線が利用可能です。周辺は住宅や生活関連施設が集まるエリアで、さまざまな事業スタイルに合わせた検討が可能です。建物は地上8階建てとなっており、上層階まで余裕を持ったスペースの確保ができます。オフィス用途や店舗など、区画ごとの活用に柔軟性が期待できる構成となっています。江戸川区内で、事業拠点や支店設置をお考えの法人様や、複数のアクセス方法を重視される方に適したロケーションです。詳細はお問い合わせください。
自分で探すより問い合わせる方が早いことがあります
WEB非公開物件があるから
オーナー様のご希望により「WEBでは非公開」にしている物件があります。 それらはWEBでいくら検索しても見つかりません。 先ずは条件などお知らせ頂けましたら非公開物件含め ピッタリのオフィスをご提案させて頂きます。 無理なお勧めはしておりませんので、お気軽にお問い合わせください。
対面でのご相談も受け付けております
ご来店も歓迎です
オフィス移転は社内・社外ともに非公開に行われることが殆どです。そのためアットオフィスでは、基本的に訪問によるコンサルティングを行っておりますが、ご来店の相談も歓迎です。お一人おひとりに親身にご対応させて頂きたい為、要予約とさせて頂いております。ご来店の際は先ずは下記よりご予約下さい。
江戸川区エリアでシティパレス南葛西ビルに似た条件の物件
読込中...
シティパレス南葛西ビルと同じ最寄駅の物件
読込中...
| 取扱様態 | 仲介 |
|---|---|
| 取扱会社 | 株式会社 アットオフィス |