※このサイトに記載がある賃貸条件は、敷金・保証金などの預かり金を除き、別途消費税がかかります。
物件情報
設備詳細
| 空調 | 個別空調 |
|---|---|
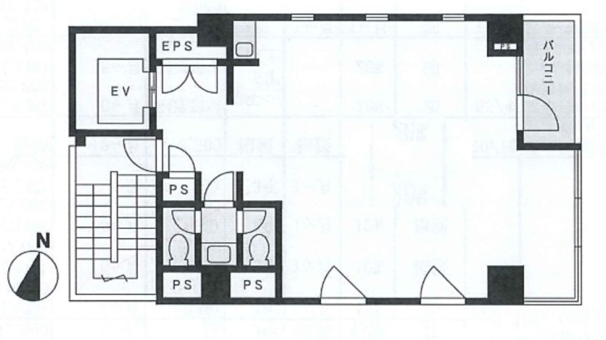
| トイレ | 男女別トイレ室内 |
| 床仕様 | OA対応床(フリーアクセス) |
| エレベータ | 1 基 |
| 駐車場設備 | - |
| その他 | 機械警備 / 24時間利用可 / 光ファイバー / 新耐震基準 |
田澤神田ビルの賃貸オフィス・事務所に関するお問い合わせ
田澤神田ビルについて
田澤神田ビルのご紹介 この度は、千代田区神田富山町に位置する田澤神田ビルの特色とその魅力について、詳細にご紹介致します。2015年10月に竣工したこの物件は、最新の設備と機能性を備え、現代のビジネスニーズに応える設計が施されております。立地、設備、そして周辺環境の各側面から、田澤神田ビルが如何にして貴社のビジネスをサポートできるかを、専門的かつ丁寧な視点で解説致します。 【立地の利点】 田澤神田ビルは、JR神田駅西口より徒歩わずか4分の距離にあり、アクセスの良さが顕著な特徴です。ビジネスの中心地である東京都心への移動が容易であり、客先訪問や出張の際にも時間を有効に利用できる立地条件を備えています。また、周辺には多彩な飲食店が立ち並び、ビジネスランチやアフター5の憩いの場としても最適な環境です。 【設備の特長】 最新鋭の機械警備システムを搭載した田澤神田ビルは、セキュリティ面での安心感も大きな魅力です。また、ワンフロア1テナント制の採用により、プライバシーが保護され、集中して業務に取り組むことが可能です。空調設備は各フロアに1基設置され、快適なオフィス環境を年中無休で提供します。さらに、男女別トイレの設置により、利便性と快適性が向上しています。 【外観と内装の洗練】 白を基調とした外観は、都市の景観に溶け込みながらも独自の存在感を放ちます。内装においても、洗練されたデザインが採用されており、訪れるクライアントに良好な印象を与えることでしょう。2015年の竣工という比較的新しい物件であるため、最新のビルディングスタンダードに適合した快適なワークスペースを提供します。 【まとめ】 田澤神田ビルは、その抜群のアクセス、先進の設備、そして洗練されたデザインにより、貴社のビジネスを全面的にサポートする理想的なオフィス空間を提供します。ビジネスのさまざまなシーンで活躍すること間違いなしのこの物件に、是非ご注目ください。立地の利便性、働きやすい環境、そして安全性を兼ね備えた田澤神田ビルで、貴社の新たな一歩を踏み出しましょう。
田澤神田ビルのこだわり
自分で探すより問い合わせる方が早いことがあります
WEB非公開物件があるから
オーナー様のご希望により「WEBでは非公開」にしている物件があります。 それらはWEBでいくら検索しても見つかりません。 先ずは条件などお知らせ頂けましたら非公開物件含め ピッタリのオフィスをご提案させて頂きます。 無理なお勧めはしておりませんので、お気軽にお問い合わせください。
対面でのご相談も受け付けております
ご来店も歓迎です
オフィス移転は社内・社外ともに非公開に行われることが殆どです。そのためアットオフィスでは、基本的に訪問によるコンサルティングを行っておりますが、ご来店の相談も歓迎です。お一人おひとりに親身にご対応させて頂きたい為、要予約とさせて頂いております。ご来店の際は先ずは下記よりご予約下さい。
募集終了のテナント区画
| 階数 | 坪数 | 賃料 + 共益費 | 敷金/礼金敷金 礼金 | 検討 |
|---|---|---|---|---|
| 2階 | 18.67坪 (61.7m²) | 募集終了 | - | - |
| 3階 | 18.67坪 (61.7m²) | 募集終了 | - | - |
| 5階 | 18.67坪 (61.7m²) | 募集終了 | - | - |
| 6階 | 18.67坪 (61.7m²) | 募集終了 | - | - |
| 7階 | 18.67坪 (61.7m²) | 募集終了 | - | - |
読込中...
神田/秋葉原エリアで田澤神田ビルに似た条件の物件
読込中...
| 取扱様態 | 仲介 |
|---|---|
| 取扱会社 | 株式会社 アットオフィス |