PMO新日本橋の賃料条件
| 階数 | 坪数 | 賃料 + 共益費 | 敷金/礼金敷金 礼金 | 検討 |
|---|---|---|---|---|
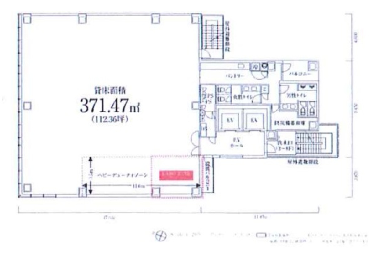
| 5階 | 112.36坪 (371.47m²) | お問合せ下さい (坪:-) | 相談 無相談/無 | |
| 6階 | 112.36坪 (371.47m²) | お問合せ下さい (坪:-) | 相談 無相談/無 | |
| 7階 | 112.36坪 (371.47m²) | お問合せ下さい (坪:-) | 相談 無相談/無 | |
| 8階 | 112.36坪 (371.47m²) | お問合せ下さい (坪:-) | 相談 無相談/無 | |
| 9階 | 112.36坪 (371.47m²) | お問合せ下さい (坪:-) | 相談 無相談/無 |
※このサイトに記載がある賃貸条件は、敷金・保証金などの預かり金を除き、別途消費税がかかります。
物件情報
設備詳細
| 空調 | 個別空調 |
|---|---|
| トイレ | - |
| 床仕様 | OA対応床(フリーアクセス) |
| エレベータ | 2 基 |
| 駐車場設備 | - |
| その他 | 新耐震基準 |
PMO新日本橋の賃貸オフィス・事務所に関するお問い合わせ
PMO新日本橋について
【PMO新日本橋ビル:最先端の仕事環境を提供する未来型オフィス】 PMO新日本橋ビルは、中央区日本橋本町4丁目に位置する、2016年11月に竣工した最新鋭のオフィスビルです。この地は、歴史と伝統が息づく日本橋エリアにあって、ビジネスの未来を象徴するような革新的な空間を提供しています。JR総武線、山手線、京浜東北線が徒歩圏内にあり、東京都心へのアクセスの利便性は抜群です。ビジネスチャンスを広げるための絶好の立地条件を備えています。 PMO新日本橋ビルは、利用者のニーズに応えるための特別な設計が施されたオフィスビルです。正形の貸室形状は、オフィスレイアウトの自由度を高め、効率的な作業空間の確保を可能にします。また、セキュリティシステムは最先端技術を駆使し、入退室管理システムや監視カメラなどが24時間体制で稼働。大型ビルに匹敵するこの高度なセキュリティは、入居企業の安心と安全を守ります。 共用設備にも注目です。エレベーターは2機を設置し、待ち時間の短縮とスムーズな移動を実現しています。快適なオフィス環境を支える空調システムや、省エネルギーを考慮した照明設備も導入。効率的かつ環境に配慮した運用が可能です。 PMOシリーズの最新作であるこのビルは、先進的なビジネス環境を求める企業に最適な選択肢となるでしょう。立地の良さ、設備の充実、そして高いセキュリティ。これらすべてが融合したPMO新日本橋ビルは、企業の成長を加速させ、新たな価値創造の場となることでしょう。未来を見据えたビジネス展開を目指す企業にとって、このビルはまさに理想的なステージとなるはずです。
PMO新日本橋のこだわり
自分で探すより問い合わせる方が早いことがあります
WEB非公開物件があるから
オーナー様のご希望により「WEBでは非公開」にしている物件があります。 それらはWEBでいくら検索しても見つかりません。 先ずは条件などお知らせ頂けましたら非公開物件含め ピッタリのオフィスをご提案させて頂きます。 無理なお勧めはしておりませんので、お気軽にお問い合わせください。
対面でのご相談も受け付けております
ご来店も歓迎です
オフィス移転は社内・社外ともに非公開に行われることが殆どです。そのためアットオフィスでは、基本的に訪問によるコンサルティングを行っておりますが、ご来店の相談も歓迎です。お一人おひとりに親身にご対応させて頂きたい為、要予約とさせて頂いております。ご来店の際は先ずは下記よりご予約下さい。
募集終了のテナント区画
| 階数 | 坪数 | 賃料 + 共益費 | 敷金/礼金敷金 礼金 | 検討 |
|---|---|---|---|---|
| 2階 | 112.36坪 (371.47m²) | 募集終了 | - | - |
| 3階 | 112.36坪 (371.47m²) | 募集終了 | - | - |
| 4階 | 112.36坪 (371.47m²) | 募集終了 | - | - |
読込中...
近くのエリアで探してみる
八重洲/日本橋/三越前エリアでPMO新日本橋に似た条件の物件
読込中...
| 取扱様態 | 仲介 |
|---|---|
| 取扱会社 | 株式会社 アットオフィス |