※このサイトに記載がある賃貸条件は、敷金・保証金などの預かり金を除き、別途消費税がかかります。
物件情報
設備詳細
| 空調 | 個別空調 |
|---|---|
| トイレ | - |
| 床仕様 | OA対応床(フリーアクセス) |
| エレベータ | 2 基 |
| 駐車場設備 | - |
| その他 | 機械警備 / 大型ビル / 新耐震基準 / 居抜き / オフィス居抜き特集 |
芝520ビルの賃貸オフィス・事務所に関するお問い合わせ
芝520ビルについて
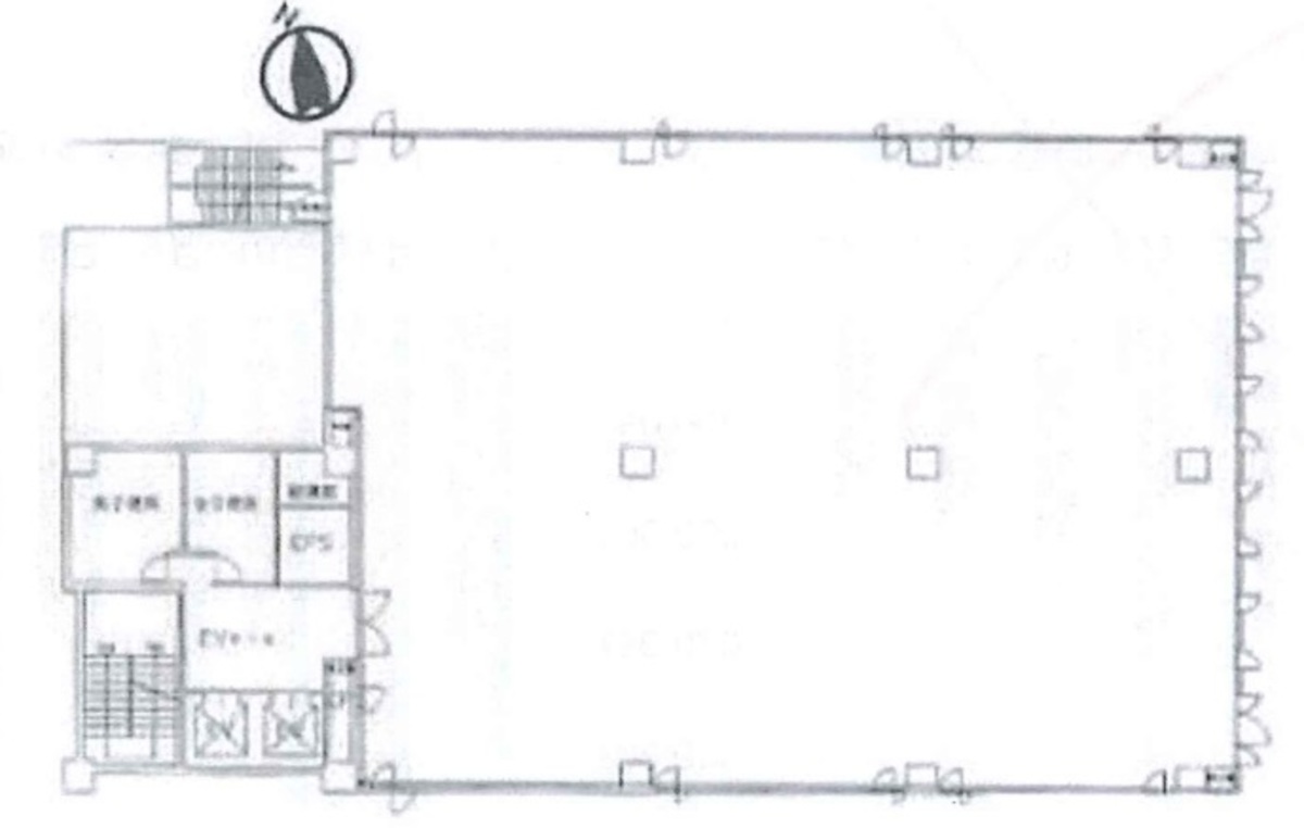
芝520ビルは、港区芝に位置する1994年竣工の地上7階建ての賃貸オフィスビルです。このビルは、重厚感ある石造りの外観を持ち、オフィス街の落ち着いた雰囲気の中に立地しています。都営三田線「三田」駅から徒歩2分、JR各線「田町」駅からは徒歩4分と、アクセスの良さが特徴です。また、三田線「芝公園」駅も徒歩8分の距離にあり、複数の路線を利用できるため、ビジネスシーンにおいて非常に便利な立地にあります。 ビル内の設備には、オートロックのエントランスロビー、機械警備システム、24時間利用可能なセキュリティカード制の入退館システムが備わり、テナントの安全とセキュリティを確保しています。また、基準となるオフィスフロアは約143坪で、ほぼ長方形の間取りが効率的なオフィスレイアウトを可能にします。床はフリーアクセスフロア対応で、床荷重は500kg/m²、天井高は2550mmとなっており、快適なオフィス環境を提供します。 さらに、ビルは2016年3月に大規模なリニューアル工事を行い、エントランスや共用部分は新築ビルと同等のスペックに更新されました。乗用エレベーターは2基設置され、待ち時間の短縮にも貢献しています。ビル内には男女別トイレや個別空調設備も完備されており、ビジネスの効率化と快適性を追求するテナントに最適な環境を提供しています。 周辺環境も魅力の一つで、ビルのすぐ裏手は慶応仲通り商店街が広がり、ランチタイムや仕事帰りに利用できる飲食店が軒を連ねています。斜め向かいにはファミリーマートがあり、日常の買い物にも便利です。また、田町駅周辺には複数の銀行支店があり、ビジネス上の幅広いニーズに応えることが可能です。 芝520ビルは、その立地の良さ、充実した設備、そして快適なオフィス環境を兼ね備え、様々なビジネスシーンで活躍する企業にとって理想的なオフィスビルです。
自分で探すより問い合わせる方が早いことがあります
WEB非公開物件があるから
オーナー様のご希望により「WEBでは非公開」にしている物件があります。 それらはWEBでいくら検索しても見つかりません。 先ずは条件などお知らせ頂けましたら非公開物件含め ピッタリのオフィスをご提案させて頂きます。 無理なお勧めはしておりませんので、お気軽にお問い合わせください。
対面でのご相談も受け付けております
ご来店も歓迎です
オフィス移転は社内・社外ともに非公開に行われることが殆どです。そのためアットオフィスでは、基本的に訪問によるコンサルティングを行っておりますが、ご来店の相談も歓迎です。お一人おひとりに親身にご対応させて頂きたい為、要予約とさせて頂いております。ご来店の際は先ずは下記よりご予約下さい。
募集終了のテナント区画
| 階数 | 坪数 | 賃料 + 共益費 | 敷金/礼金敷金 礼金 | 検討 |
|---|---|---|---|---|
| 2階 | 142.77坪 (471.98m²) | 募集終了 | - | - |
| 5階 | 142.78坪 (471.99m²) | 募集終了 | - | - |
| 7階 | 142.78坪 (471.99m²) | 募集終了 | - | - |
読込中...
近くのエリアで探してみる
浜松町/田町/芝公園エリアで芝520ビルに似た条件の物件
読込中...
| 取扱様態 | 仲介 |
|---|---|
| 取扱会社 | 株式会社 アットオフィス |