PMO渋谷12階の賃貸情報
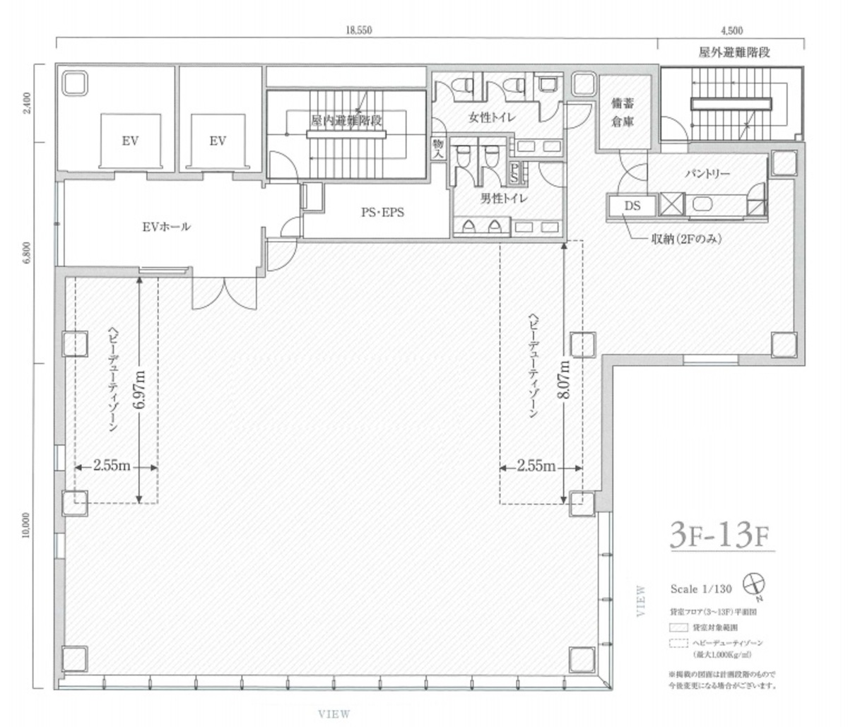
91.04 坪 (300.97m²)
※このサイトに記載がある賃貸条件は、敷金・保証金などの預かり金を除き、別途消費税がかかります。
PMO渋谷の建物概要
設備詳細
| 空調 | 個別空調 |
|---|---|
| トイレ | - |
| 床仕様 | OA対応床(フリーアクセス) |
| エレベータ | 1 基 |
| 駐車場設備 | 空有 |
| その他 | 新耐震基準 |
PMO渋谷について
渋谷区渋谷1丁目に位置するPMO渋谷ビルは、現代ビジネスニーズにマッチした賃貸オフィスビルです。2017年に竣工し、新耐震基準に準拠しています。この物件は、渋谷駅から徒歩約3分というアクセスの良さを誇ります。宮下公園が至近にあり、渋谷駅周辺の便利な施設が手軽に利用できる立地条件を提供します。 物件は14階建てで、基準階坪数は約90坪です。天井高は基準階で2,700mm、上層階で3,000mmと設定され、広々とした開放感あるオフィス空間を提供します。無柱空間の採用により、自由度の高いレイアウトが可能で、効率的なオフィス環境の構築が期待できます。 設備面では、OAフロア、光ファイバー(MDFまで)、LED照明、男女別トイレ、個別空調システムなど、現代のオフィスが求めるハイスペックな要件を満たしています。特に、オープンパントリー形式を採用した水回り設計は、オフィスライフの快適性を向上させる工夫の一つです。 セキュリティ面では、ICカードによるセキュリティゲートや機械警備を導入し、入居企業とその従業員の安全を確保しています。非常時には、新耐震基準の1.5倍相当の強度と異系統2回線受電方式、非常用発電機がビル全体をサポートします。 1階には入居者専用の喫煙ルームや多目的トイレを設置し、ビル内には機械式駐車場(14台+荷捌き対応1台)、屋根付き駐輪場(12台分)も用意されています。 PMO渋谷ビルは、その立地、設備、セキュリティーの三面から見ても、特に急成長中のベンチャー企業やハイスペックなオフィス環境を求める企業にとって、非常に魅力的な選択肢です。渋谷というビジネスの中心地において、優れたアクセス性と快適なオフィス環境を提供するこの物件は、企業の成長を強力にサポートします。
PMO渋谷のこだわり
自分で探すより問い合わせる方が早いことがあります
WEB非公開物件があるから
オーナー様のご希望により「WEBでは非公開」にしている物件があります。 それらはWEBでいくら検索しても見つかりません。 先ずは条件などお知らせ頂けましたら非公開物件含め ピッタリのオフィスをご提案させて頂きます。 無理なお勧めはしておりませんので、お気軽にお問い合わせください。
対面でのご相談も受け付けております
ご来店も歓迎です
オフィス移転は社内・社外ともに非公開に行われることが殆どです。そのためアットオフィスでは、基本的に訪問によるコンサルティングを行っておりますが、ご来店の相談も歓迎です。お一人おひとりに親身にご対応させて頂きたい為、要予約とさせて頂いております。ご来店の際は先ずは下記よりご予約下さい。
渋谷エリアでPMO渋谷に似た条件の物件
読込中...
PMO渋谷と同じ最寄駅の物件
読込中...
| 取扱様態 | 仲介 |
|---|---|
| 取扱会社 | 株式会社 アットオフィス |