※このサイトに記載がある賃貸条件は、敷金・保証金などの預かり金を除き、別途消費税がかかります。
物件情報
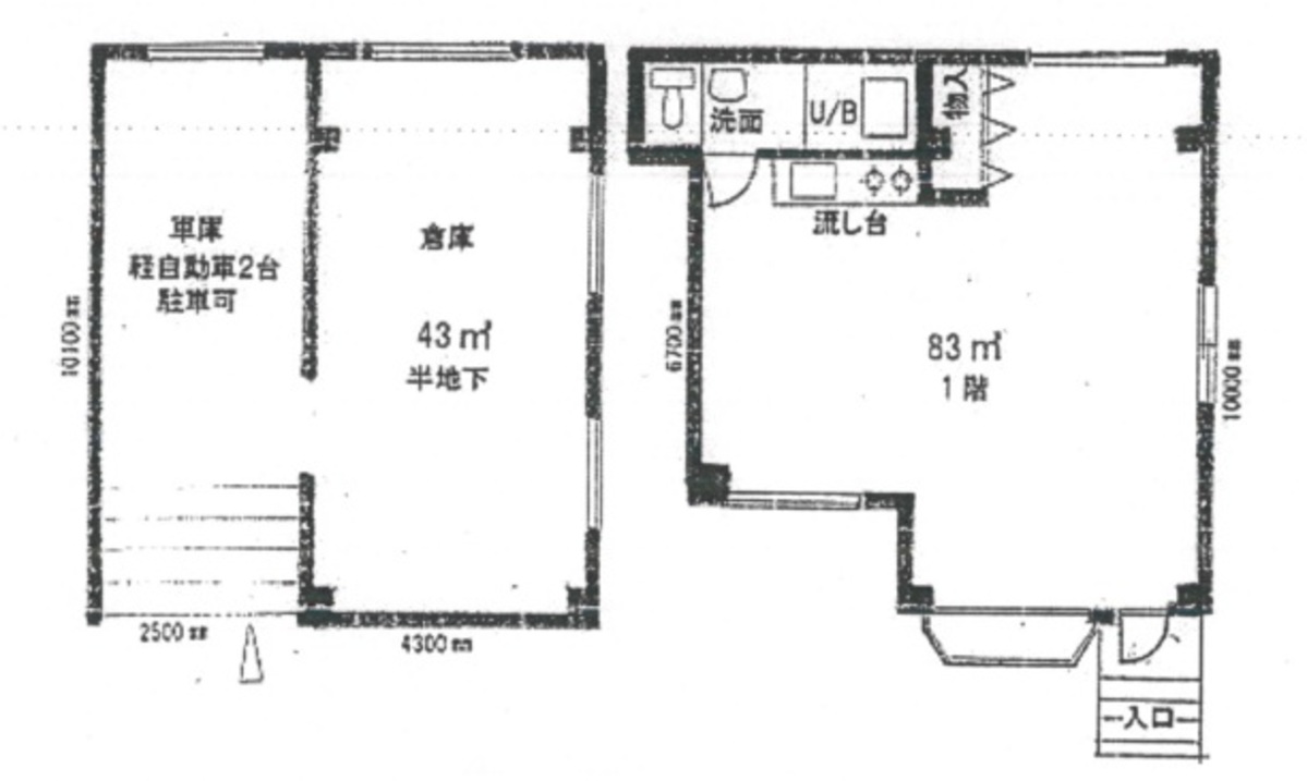
設備詳細
| 空調 | - |
|---|---|
| トイレ | 男女共用トイレ・室内 |
| 床仕様 | - |
| エレベータ | - |
| 駐車場設備 | - |
| その他 | 新耐震基準 / 東京賃料が坪11000円以下 / 1階の物件 / 保証金・敷金+礼金が3か月以下 |
上池袋ハイツビルの賃貸オフィス・事務所に関するお問い合わせ
上池袋ハイツビルについて
【上池袋ハイツビルの紹介】 上池袋ハイツビルは、東京都豊島区に位置する、1988年竣工の鉄骨造3階建てのオフィスビルです。基準階は約24坪の広さで、SOHO利用も相談可能なため、多様なビジネスニーズに対応できる柔軟性を持っています。レンガ調の外観は、周囲の住宅街と調和しながらも、一際目を引く洗練されたデザインを展示しております。 【立地の特徴】 上池袋ハイツビルは、明治通りから少し入った静かな場所に位置しています。この立地は、都心へのアクセスが容易でありながら、落ち着いた環境で仕事ができるという大きな利点を提供します。最寄りの北池袋駅から徒歩圏内で、大塚駅へもアクセス可能です。周辺にはコンビニエンスストアがあり、日常の買い物にも便利です。 【ビルの設備と環境】 ビル内は、快適なオフィス環境を提供するための設備が整えられています。1988年の竣工とはいえ、定期的なメンテナンスと最新の設備更新が行われているため、現代のオフィスニーズにも十分対応しています。また、SOHO利用が可能であるため、小規模な事業やスタートアップ企業にも最適です。 【ビジネスにおける利点】 上池袋ハイツビルの立地と設備は、ビジネスにおける連携と効率性を高めます。都心へのアクセスの良さは、クライアントとの会議やビジネスチャンスを逃さないための重要な要素です。また、周辺の落ち着いた環境は、創造的な作業や集中を必要とする業務に最適な環境を提供します。 総じて、上池袋ハイツビルは立地、設備、デザインが三位一体となって、多様なビジネスのニーズに応えることができるオフィスビルです。ビジネスの拠点として、または新たな事業のスタートに、ぜひ上池袋ハイツビルをご検討ください。その質の高いオフィススペースが、皆様のビジネス成功の一助となることでしょう。
上池袋ハイツビルのこだわり
自分で探すより問い合わせる方が早いことがあります
WEB非公開物件があるから
オーナー様のご希望により「WEBでは非公開」にしている物件があります。 それらはWEBでいくら検索しても見つかりません。 先ずは条件などお知らせ頂けましたら非公開物件含め ピッタリのオフィスをご提案させて頂きます。 無理なお勧めはしておりませんので、お気軽にお問い合わせください。
対面でのご相談も受け付けております
ご来店も歓迎です
オフィス移転は社内・社外ともに非公開に行われることが殆どです。そのためアットオフィスでは、基本的に訪問によるコンサルティングを行っておりますが、ご来店の相談も歓迎です。お一人おひとりに親身にご対応させて頂きたい為、要予約とさせて頂いております。ご来店の際は先ずは下記よりご予約下さい。
読込中...
池袋/大塚/目白エリアで上池袋ハイツビルに似た条件の物件
読込中...
| 取扱様態 | 仲介 |
|---|---|
| 取扱会社 | 株式会社 アットオフィス |