※このサイトに記載がある賃貸条件は、敷金・保証金などの預かり金を除き、別途消費税がかかります。
物件情報
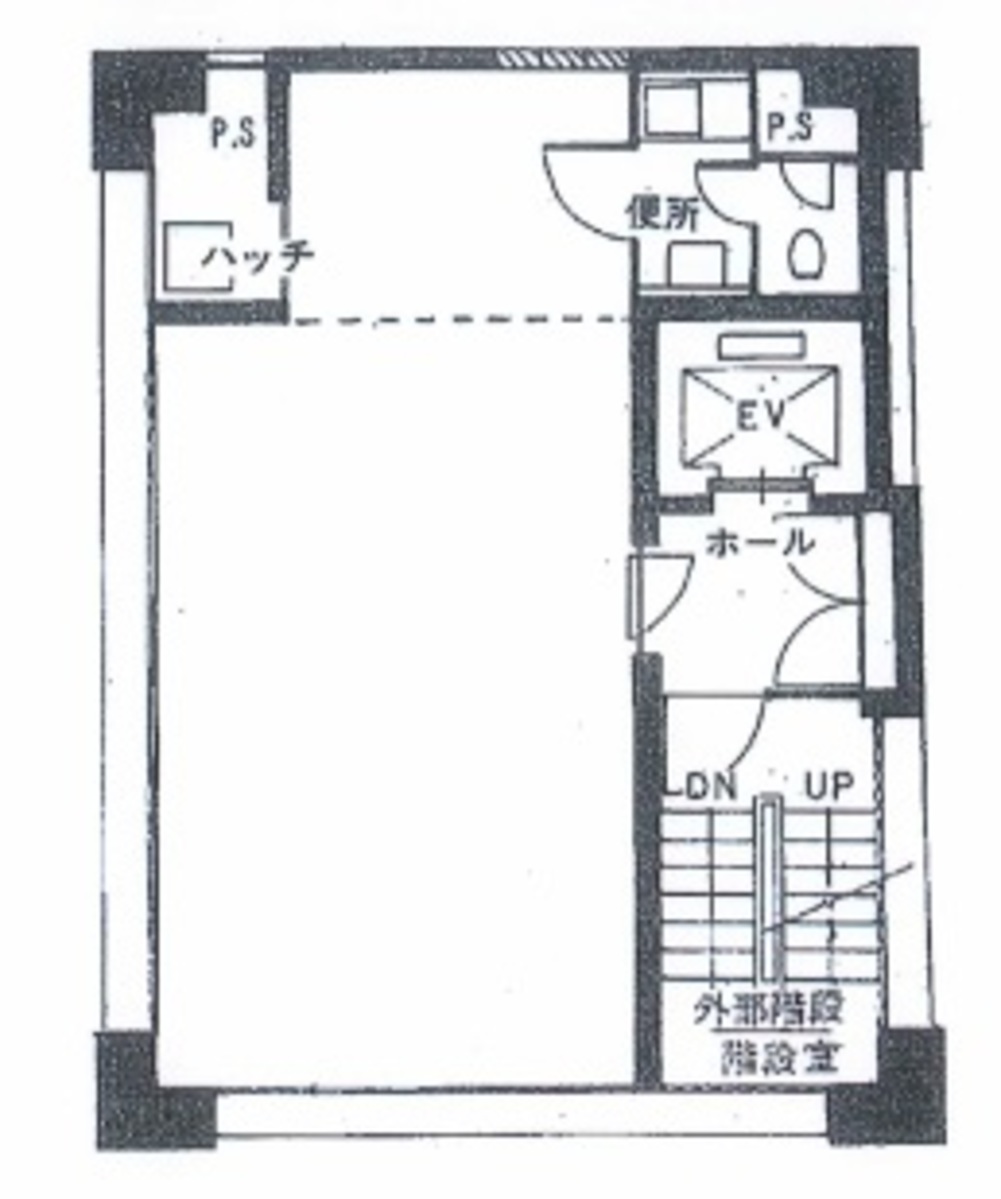
設備詳細
| 空調 | - |
|---|---|
| トイレ | - |
| 床仕様 | - |
| エレベータ | 1 基 |
| 駐車場設備 | - |
| その他 | 東京賃料が坪11000円以下 |
ミツワ神保町ビルの賃貸オフィス・事務所に関するお問い合わせ
ミツワ神保町ビルについて
ミツワ神保町ビルは、東京都千代田区神田神保町1丁目に位置する、ビジネスの中心地にふさわしい質の高いオフィスビルです。神保町エリアは、その豊富な書店や古書店で知られ、知的好奇心を刺激する環境としても魅力的です。この地域はビジネスと文化の交差点として、様々な業種の企業にとって魅力的な立地条件を提供しています。 ビルの最大の魅力は、その立地にあります。神保町駅からわずか徒歩1分というアクセスの良さは、従業員やビジネスパートナーの移動の利便性を大きく向上させます。また、1階に入っている店舗により、日々の生活に必要な買い物や食事にも困りません。 建物自体は、1フロア1テナントの構造となっており、プライバシーが保たれた独立したオフィス環境を提供します。このようなレイアウトは、各企業が自社の文化を築き上げるのに理想的な条件を与えます。大きな窓からは、自然光がたっぷりと入り込み、開放感あふれるオフィス空間を実現しています。 エレベーターは1機設置されており、スムーズな移動を可能とします。千代田区という東京の中心部に位置するこのビルは、ビジネスの拠点としての機能性だけでなく、アクセスの良さや利便性も兼ね備えています。 エリア全体として見ると、神保町は比較的リーズナブルな賃料でオフィスを構えることができる地域でありながら、東京の中心部としての利便性と活気を享受できる点が大きな魅力です。こうした背景から、ミツワ神保町ビルはスタートアップ企業から既に確立された企業まで、幅広い業種の企業にとって魅力的な選択肢となっています。 最後に、ミツワ神保町ビルは、その立地、設備、そしてエリア全体の雰囲気が、多様なビジネスニーズに応えるための理想的な条件を備えています。ここにオフィスを構えることは、企業のイメージ向上や従業員の満足度向上にも寄与し、ビジネスの成功を後押しすることでしょう。
ミツワ神保町ビルのこだわり
自分で探すより問い合わせる方が早いことがあります
WEB非公開物件があるから
オーナー様のご希望により「WEBでは非公開」にしている物件があります。 それらはWEBでいくら検索しても見つかりません。 先ずは条件などお知らせ頂けましたら非公開物件含め ピッタリのオフィスをご提案させて頂きます。 無理なお勧めはしておりませんので、お気軽にお問い合わせください。
対面でのご相談も受け付けております
ご来店も歓迎です
オフィス移転は社内・社外ともに非公開に行われることが殆どです。そのためアットオフィスでは、基本的に訪問によるコンサルティングを行っておりますが、ご来店の相談も歓迎です。お一人おひとりに親身にご対応させて頂きたい為、要予約とさせて頂いております。ご来店の際は先ずは下記よりご予約下さい。
募集終了のテナント区画
| 階数 | 坪数 | 賃料 + 共益費 | 敷金/礼金敷金 礼金 | 検討 |
|---|---|---|---|---|
| 3階 | 13.5坪 (44.63m²) | 募集終了 | - | - |
| 4階 | 13.5坪 (44.62m²) | 募集終了 | - | - |
読込中...
近くのエリアで探してみる
飯田橋/神保町/水道橋エリアでミツワ神保町ビルに似た条件の物件
読込中...
| 取扱様態 | 仲介 |
|---|---|
| 取扱会社 | 株式会社 アットオフィス |