横須賀中央ビル7階の賃貸情報
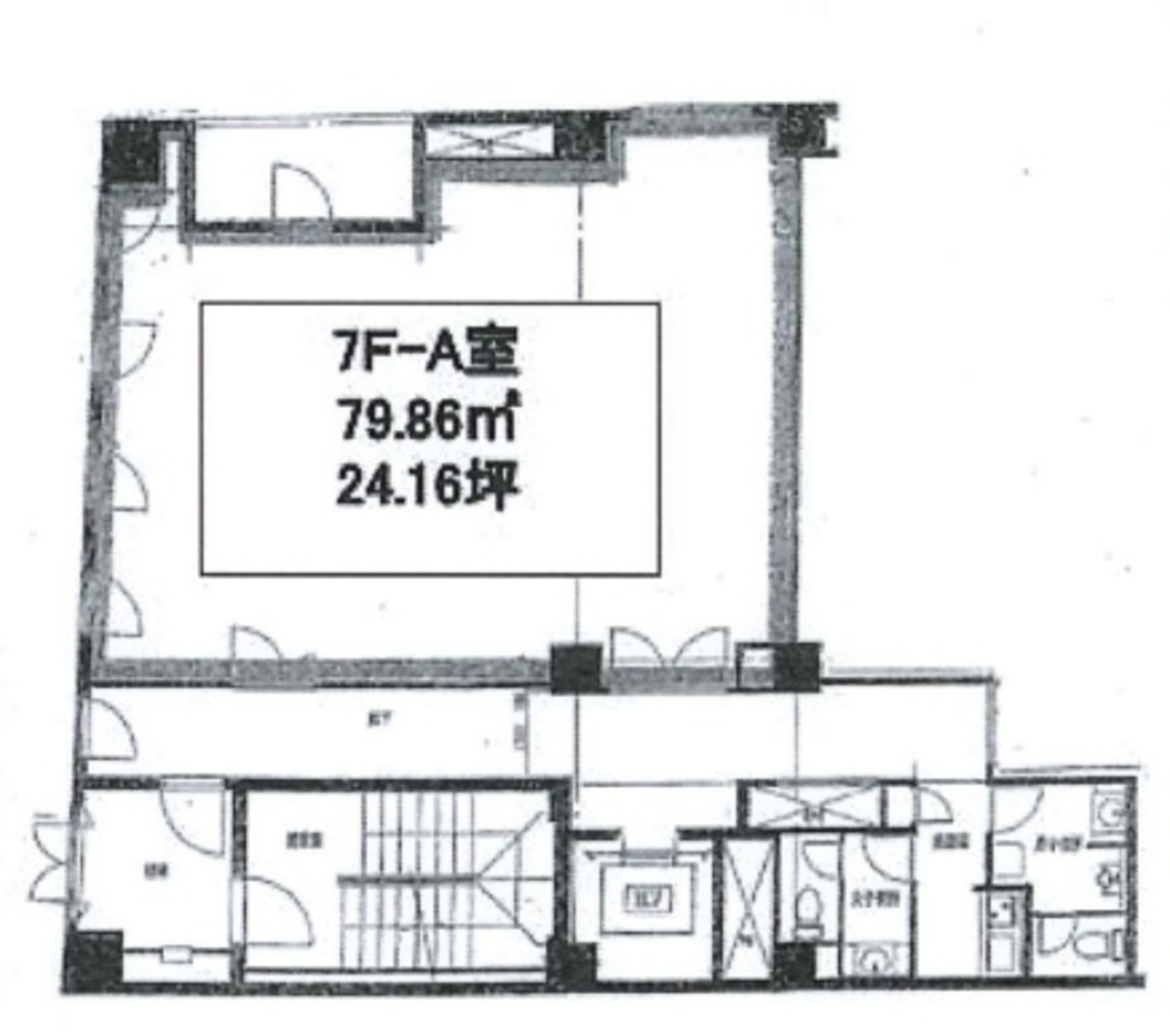
24.16 坪 (79.86m²)
※このサイトに記載がある賃貸条件は、敷金・保証金などの預かり金を除き、別途消費税がかかります。
横須賀中央ビルの建物概要
設備詳細
| 空調 | - |
|---|---|
| トイレ | - |
| 床仕様 | - |
| エレベータ | 1 基 |
| 駐車場設備 | 空有 |
| その他 | 新耐震基準 / 神奈川賃料が10000円以下 |
横須賀中央ビル7階の賃貸オフィス・事務所に関するお問い合わせ
横須賀中央ビルについて
横須賀市小川町に位置する「横須賀中央ビル」は、地上7階建てのオフィスビルです。京浜急行電鉄本線「横須賀中央駅」から徒歩8分、京急本線「汐入駅」から徒歩10分、横須賀線「横須賀駅」から徒歩18分と、複数の交通機関が利用できる立地にあります。複数の駅が利用できるため、通勤や来客の対応にも柔軟さが考えられます。 ビルは新耐震基準に適合しており、建物の安全性に配慮された設計です。周辺は横須賀市の中心エリアで、事業拠点として様々な業種に利用されてきた経緯があります。建物はオフィスとしての利用を想定した造りで、フロアごとの用途に応じた使い方が可能です。地上7階建てという規模から、事業展開や組織の規模に応じて柔軟なレイアウトを検討できます。 利用者や来訪者の動線も考えられた配置で、日々の業務や会議、打ち合わせといったビジネスシーンにも対応しています。ビルに関する詳しい情報や現地の案内をご希望の際は、詳細はお問い合わせください。
自分で探すより問い合わせる方が早いことがあります
WEB非公開物件があるから
オーナー様のご希望により「WEBでは非公開」にしている物件があります。 それらはWEBでいくら検索しても見つかりません。 先ずは条件などお知らせ頂けましたら非公開物件含め ピッタリのオフィスをご提案させて頂きます。 無理なお勧めはしておりませんので、お気軽にお問い合わせください。
対面でのご相談も受け付けております
ご来店も歓迎です
オフィス移転は社内・社外ともに非公開に行われることが殆どです。そのためアットオフィスでは、基本的に訪問によるコンサルティングを行っておりますが、ご来店の相談も歓迎です。お一人おひとりに親身にご対応させて頂きたい為、要予約とさせて頂いております。ご来店の際は先ずは下記よりご予約下さい。
横須賀市エリアで横須賀中央ビルに似た条件の物件
読込中...
横須賀中央ビルと同じ最寄駅の物件
読込中...
| 取扱様態 | 仲介 |
|---|---|
| 取扱会社 | 株式会社 アットオフィス |