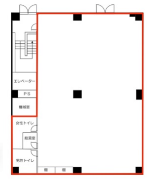
国米ビル1階の賃貸情報
55.05 坪 (182m²)
750,000円 (坪:13,623 円)
※このサイトに記載がある賃貸条件は、敷金・保証金などの預かり金を除き、別途消費税がかかります。
国米ビルの建物概要
設備詳細
| 空調 | 個別空調 |
|---|---|
| トイレ | 男女別トイレ室内 |
| 床仕様 | - |
| エレベータ | 1 基 |
| 駐車場設備 | 空無 |
| その他 | 新耐震基準 / 機械警備 / クリニック / 店舗可(飲食不可) / スケルトン / 1階の物件 |
国米ビル1階の賃貸オフィス・事務所に関するお問い合わせ
国米ビルについて
国米ビルは、鎌倉市大船2丁目に立地する地上4階建ての事業用建物です。根岸線・江の島線・東海道本線の「大船駅」からそれぞれ徒歩5分の距離に位置し、複数路線を利用できる点が特徴です。周辺はオフィスや店舗、住宅などが集まり、多様な人の流れがあるエリアに所在しています。建物は新耐震基準を満たしているほか、機械警備を導入しており、事業運営を行うための基本的な要素を備えています。4階建ての構造により、用途やフロアごとの使い分けを考慮したレイアウトが可能です。現地の周辺環境や建物内の動線については、実際にご見学いただくことで具体的な利用イメージを持っていただけます。ご質問やご要望がございましたら、詳細はお問い合わせください。
自分で探すより問い合わせる方が早いことがあります
WEB非公開物件があるから
オーナー様のご希望により「WEBでは非公開」にしている物件があります。 それらはWEBでいくら検索しても見つかりません。 先ずは条件などお知らせ頂けましたら非公開物件含め ピッタリのオフィスをご提案させて頂きます。 無理なお勧めはしておりませんので、お気軽にお問い合わせください。
対面でのご相談も受け付けております
ご来店も歓迎です
オフィス移転は社内・社外ともに非公開に行われることが殆どです。そのためアットオフィスでは、基本的に訪問によるコンサルティングを行っておりますが、ご来店の相談も歓迎です。お一人おひとりに親身にご対応させて頂きたい為、要予約とさせて頂いております。ご来店の際は先ずは下記よりご予約下さい。
鎌倉市エリアで国米ビルに似た条件の物件
読込中...
国米ビルと同じ最寄駅の物件
読込中...
| 取扱様態 | 仲介 |
|---|---|
| 取扱会社 | 株式会社 アットオフィス |