浜松町 約40坪【セットアップ】
物件ID: AO-046
浜松町・大門エリアの新築ビルのセットアップオフィス・:*+.
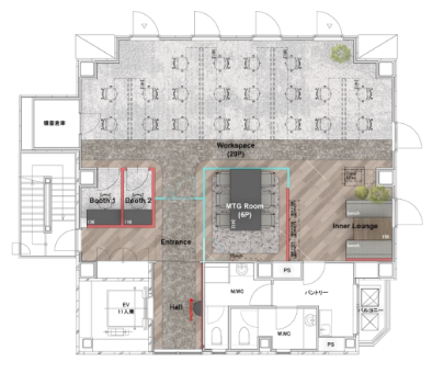
・専有部に会議室1部屋、共有部にも会議室あり ・テレカンブース2区画 ・受付ブース ・ラウンジスペース ・約20名用の執務スペース(家具什器無) 環境配慮ビルの内装付きセットアップオフィス区画です☆彡 詳細はぜひお問い合わせください◎ ============================================================ 都内最大級を誇る物件数と累計10,000件以上の移転支援実績を生かし、 貴社にピッタリなオフィスをお探しします! 「居抜きで退去したい」といったご相談や 「相場を知りたい」といったご要望にもお応えします! 皆さまからのご連絡お待ちしております! ⇓⇓ お問い合わせフォーム or 電話はこちらから ⇓⇓
| 物件名 | 非公開 |
|---|---|
| 現況 | 募集中 |
| 賃料 | お問合せください |
| 管理費 | 相談 |
| 敷金・礼金 | 相談・相談 |
| 専有面積 | お問合せください |
| 所在地 | 東京都港区 |
| 最寄り駅 | 山手線 浜松町駅 |
| 構造/規模 | - |
| 竣工年 | - |
| 設備 | - |