赤坂 約30坪【居抜き】
物件ID: AO-047
駅近×築浅ビル!会議室造作引き継ぎ可能な希少居抜きオフィス◎
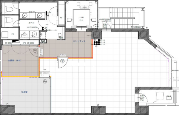
・会議室パーテーション引き継ぎ可能 ・デザイン性の高い築浅ビル 赤坂駅徒歩1分という抜群の立地に加え、デザイン性の高い築浅ビルでの希少な居抜き募集です。 会議室のパーテーションをそのまま引き継ぐことができるため、初期費用を抑えつつスムーズなオフィス開設が可能です。 詳細はぜひお問い合わせください! ============================================================ 都内最大級を誇る物件数と累計10,000件以上の移転支援実績を生かし、 貴社にピッタリなオフィスをお探しします! 「居抜きで退去したい」といったご相談や 「相場を知りたい」といったご要望にもお応えします! 皆さまからのご連絡お待ちしております! ⇓⇓ お問い合わせフォーム or 電話はこちらから ⇓⇓
| 物件名 | 非公開 |
|---|---|
| 現況 | 募集終了 |
| 賃料 | お問合せください |
| 管理費 | 相談 |
| 敷金・礼金 | 相談・相談 |
| 専有面積 | お問合せください |
| 所在地 | 東京都港区 |
| 最寄り駅 | 東京地下鉄千代田線 赤坂駅 |
| 構造/規模 | - |
| 竣工年 | - |
| 設備 | - |