半蔵門 約80坪【セットアップ】
物件ID: AO-049
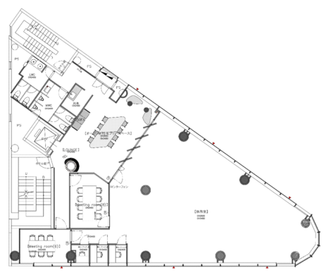
駅徒歩1分×1フロア1テナントの注目ハーフセットアップオフィス!
・受付ラウンジ ・オープンMTG&フリースペース ・会議室2部屋(8人用・6人用) ・テレカンブース3部屋 半蔵門駅徒歩1分の好立地に、約80坪のセットアップオフィスが登場しました。 1フロア1テナントのため、プライバシー性の高いオフィス環境を確保できる点も魅力です。 受付ラウンジをはじめ、会議室やテレカンブース、オープンMTGスペースなど、日々の業務に便利な内装があらかじめ整ったセットアップオフィス。 内装付きのため、移転時の工事負担を抑えながらスムーズにご入居いただけます。 ご興味のある方はぜひお早めにお問い合わせください! 詳細はぜひお問い合わせください! ============================================================ 都内最大級を誇る物件数と累計10,000件以上の移転支援実績を生かし、 貴社にピッタリなオフィスをお探しします! 「居抜きで退去したい」といったご相談や 「相場を知りたい」といったご要望にもお応えします! 皆さまからのご連絡お待ちしております! ⇓⇓ お問い合わせフォーム or 電話はこちらから ⇓⇓
| 物件名 | 非公開 |
|---|---|
| 現況 | 募集中 |
| 賃料 | お問合せください |
| 管理費 | 相談 |
| 敷金・礼金 | 相談・相談 |
| 専有面積 | お問合せください |
| 所在地 | 東京都千代田区 |
| 最寄り駅 | 東京地下鉄半蔵門線 半蔵門駅 |
| 構造/規模 | - |
| 竣工年 | - |
| 設備 | - |