恵比寿 20~50坪【セットアップ】
物件ID: AO-050
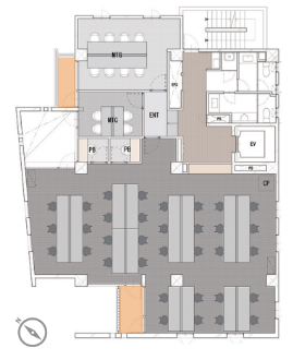
2026年7月完成予定!恵比寿の新セットアップオフィス☆彡
・20~26坪坪(20席)区画あり ・50坪(34席)区画あり ・各区画に会議室あり 恵比寿エリアにて、2026年7月に新たなセットアップオフィスが誕生予定です。 フロアによって規模が異なり、20坪(20席)から50坪(34席)まで、企業規模に合わせてお選びいただけます。 すべての区画に会議室が設けられており、内装付きのセットアップオフィスのため移転時の内装工事の負担を抑え、スムーズなオフィス開設が可能です。 恵比寿エリアでオフィスをお探しの企業様は、ぜひご検討ください。 詳細はぜひお問い合わせください! ============================================================ 都内最大級を誇る物件数と累計10,000件以上の移転支援実績を生かし、 貴社にピッタリなオフィスをお探しします! 「居抜きで退去したい」といったご相談や 「相場を知りたい」といったご要望にもお応えします! 皆さまからのご連絡お待ちしております! ⇓⇓ お問い合わせフォーム or 電話はこちらから ⇓⇓
| 物件名 | 非公開 |
|---|---|
| 現況 | 募集中 |
| 賃料 | お問合せください |
| 管理費 | 相談 |
| 敷金・礼金 | 相談・相談 |
| 専有面積 | お問合せください |
| 所在地 | 東京都渋谷区 |
| 最寄り駅 | 山手線 恵比寿駅 |
| 構造/規模 | - |
| 竣工年 | - |
| 設備 | - |