六本木 約38坪【居抜き】
物件ID: am2-028
ベージュ基調の明るく清潔感のあるオフィス居抜き!
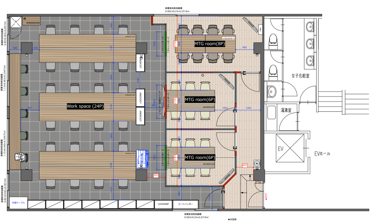
デザイン性と機能性を兼ね備えた居抜きオフィスが登場! 六本木1丁目駅徒歩3分と好立地、六本木通り沿いの視認性も抜群◎ ◆計3部屋の会議室(6名×2、8名×1) ◇共用部に男女別お手洗い ◆25名前後用の広々とした執務室 詳細は是非お問い合わせください。 ========================================================================== ⇓⇓ まずはご相談ください ⇓⇓ 『こんな物件をさがしている』 『現在のオフィスを居抜きで退去したい』 などのご相談も多く承っております。 お客様に合ったご提案が可能ですので、まずはお気軽にご相談ください。
| 物件名 | 非公開 |
|---|---|
| 現況 | 募集終了 |
| 賃料 | お問合せください |
| 管理費 | 相談 |
| 敷金・礼金 | 相談・相談 |
| 専有面積 | お問合せください |
| 所在地 | 東京都港区 |
| 最寄り駅 | 東京地下鉄南北線 六本木一丁目駅 |
| 構造/規模 | - |
| 竣工年 | - |
| 設備 | - |