赤坂 溜池山王 約50坪
物件ID: hr068
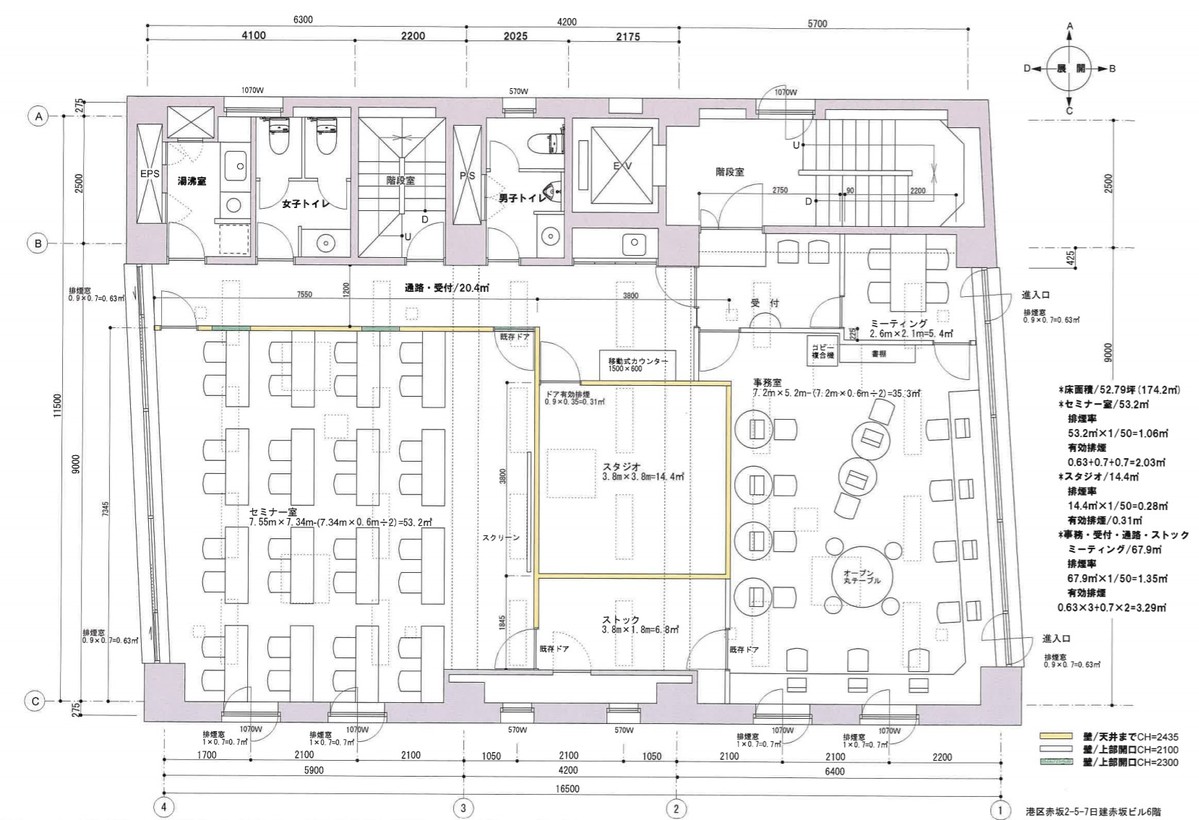
セミナールーム完備! オンラインミーティングにも使えるクロマキー合成が可能な個室もあります! 外堀通り沿いの為窓からの景色は抜けており眺望も抜群!開放的な執務スペースです! (問合せ:陽川: rhikawa@at-office.co.jpに直接メールお願いします。) 今回のように居抜き案件は非公開の情報も多く入って参ります。 ◆こんな物件探している! ◆今のオフィスを居抜きで出たい! とお伝えいただくと、新物件が出たら非公開も含め先行してご紹介ができます。 居抜きオフィスでは、いろんな方に居抜きの情報を提供させていただき、マッチング協力していきます。 ご検討宜しくお願いします!! ★★その他の居抜き物件はこちら↓↓↓↓★★ https://www.at-office.jp/inuki/
更新料:無
| 物件名 | 非公開 |
|---|---|
| 現況 | 募集終了 |
| 賃料 | お問合せください |
| 管理費 | 相談 |
| 敷金・礼金 | 相談・相談 |
| 専有面積 | お問合せください |
| 所在地 | 東京都港区 |
| 最寄り駅 | 南北線 溜池山王駅 |
| 構造/規模 | - |
| 竣工年 | - |
| 設備 | - |