【外苑前・表参道 140坪 居抜き物件】
物件ID: id079
◆◆人気エリア外苑前・表参道の格安おしゃれな居抜き物件◆◆
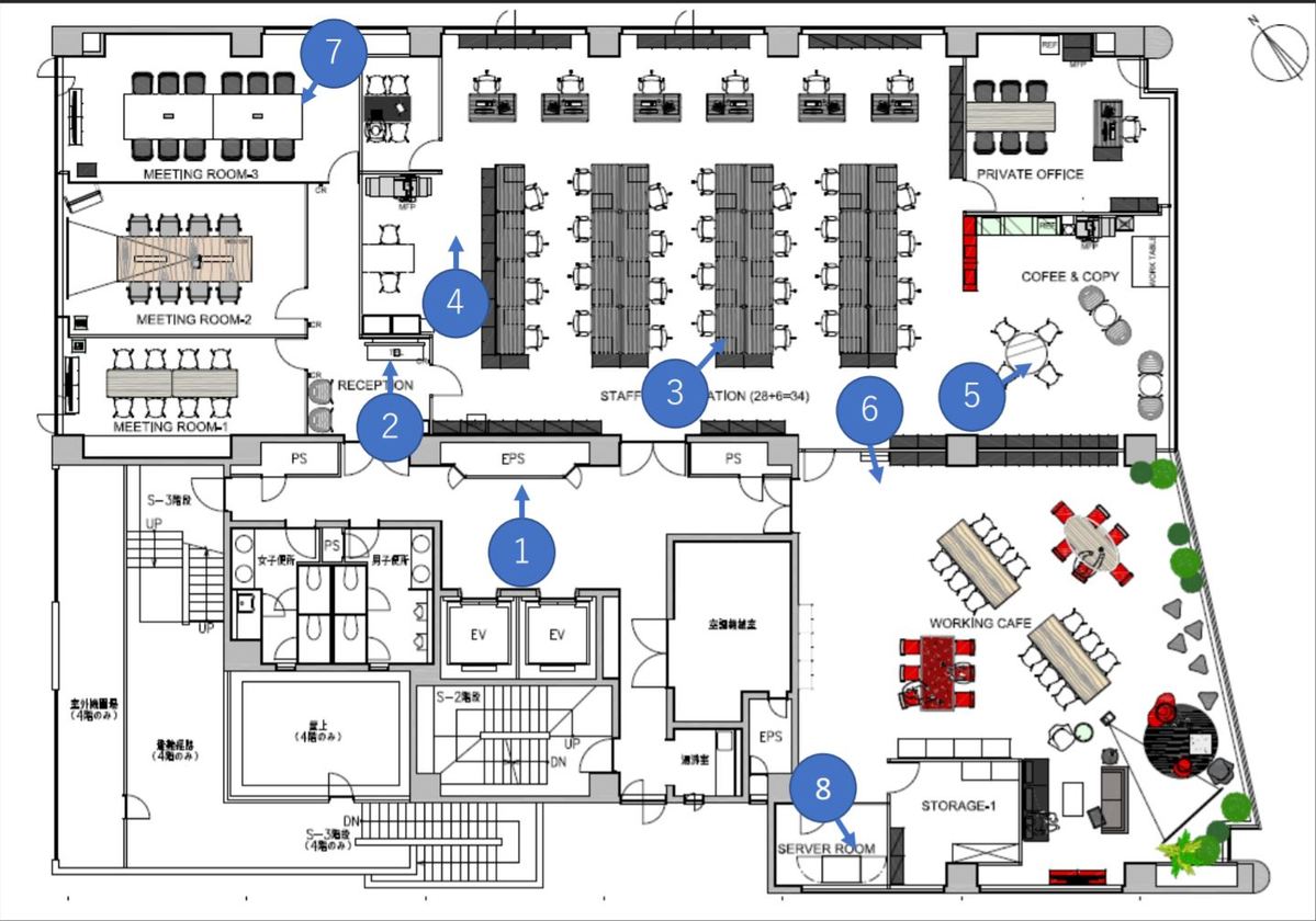
外苑前・表参道エリア大型居抜き物件!! 青山通り沿い視認性抜群です! 重厚感あるエントランスで、来客がある業種もオススメです! カフェのようなフリースペースもあり、自由に働ける空間があります! サーバールームもあり、IT系の企業にオススメ! それ以外の業種での倉庫等でのご利用可能です! 少しでも興味を持った方は是非お気軽にご連絡下さい! (問い合わせ:石井 dishii@at-office.co.jp) 今回のように居抜き案件は非公開の情報も多く入って参ります。 「こんな物件を探している」 「今のオフィスを居抜きで出たい」 というようなご要望がございましたら是非お力添えさせていただきます!! 居抜きオフィスでは、いろんな方に居抜きの情報を提供させていただき、マッチング協力していきます。 ご検討宜しくお願いします!! ★★その他の居抜き物件はこちら↓↓↓↓★★ https://www.at-office.jp/inuki/
| 物件名 | 非公開 |
|---|---|
| 現況 | 募集終了 |
| 賃料 | お問合せください |
| 管理費 | 相談 |
| 敷金・礼金 | 相談・相談 |
| 専有面積 | お問合せください |
| 所在地 | 東京都港区 |
| 最寄り駅 | 銀座線 外苑前駅 |
| 構造/規模 | - |
| 竣工年 | - |
| 設備 | - |