新橋 約21坪【セットアップ】
物件ID: ma2-011
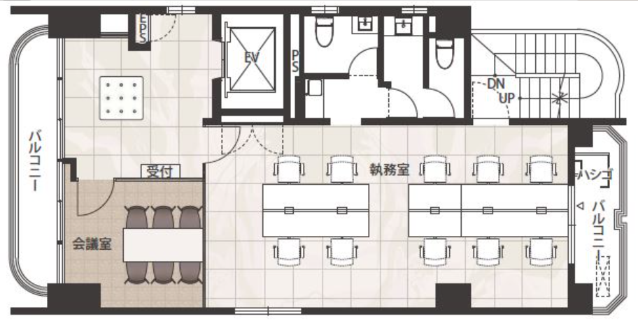
白基調の明るい高級感のあるデザイナーズセットアップオフィス◎
天井スケルトンで大理石調の外観がおしゃれなセットアップです! ・受付、エントランス ・6名用会議室 ・男女別お手洗い 詳細は是非お問い合わせください。 ============================================================ この物件の他にも多数の居抜き物件情報を取り扱っております。 また、居抜きで退去したいといったご相談もお受けしており、 専任担当者をお付けし、居抜き入退去のお手伝いをさせていただいております。 ご連絡お待ちしております! ⇓⇓ お問い合わせフォーム or 電話はこちらから ⇓⇓
| 物件名 | 非公開 |
|---|---|
| 現況 | 募集終了 |
| 賃料 | お問合せください |
| 管理費 | 相談 |
| 敷金・礼金 | 相談・相談 |
| 専有面積 | お問合せください |
| 所在地 | 東京都港区 |
| 最寄り駅 | 東京都三田線 御成門駅 |
| 構造/規模 | - |
| 竣工年 | - |
| 設備 | - |