三田 約25坪【セットアップ】
物件ID: ma2-216
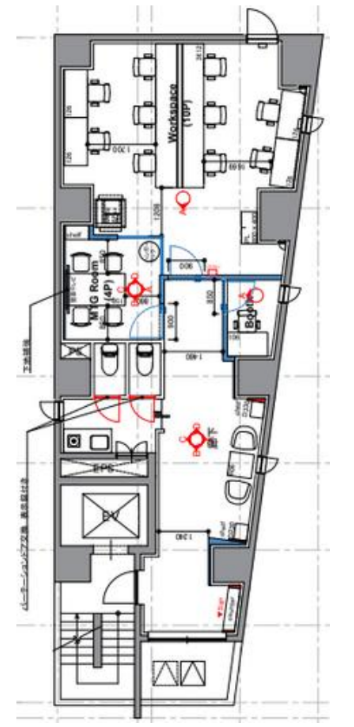
オフィスの人気の三田エリアに内装・家具付きのフルセットアップオフィスが登場・:*+.
・4名用会議室1部屋 ・エントランススペース ・待合兼ラウンジスペース ・執務室外に男女別お手洗い 機能的でレイアウト効率の高い、家具付きセットアップオフィスです◎ 詳細はぜひお問い合わせください!! ============================================================ 都内最大級を誇る物件数と累計10,000件以上の移転支援実績を生かし、 貴社にピッタリなオフィスをお探しします! 「居抜きで退去したい」といったご相談や 「相場を知りたい」といったご要望にもお応えします! 皆さまからのご連絡お待ちしております! ⇓⇓ お問い合わせフォーム or 電話はこちらから ⇓⇓
| 物件名 | 非公開 |
|---|---|
| 現況 | 募集終了 |
| 賃料 | お問合せください |
| 管理費 | 相談 |
| 敷金・礼金 | 相談・相談 |
| 専有面積 | お問合せください |
| 所在地 | 東京都港区 |
| 最寄り駅 | 浅草線 三田駅 |
| 構造/規模 | - |
| 竣工年 | - |
| 設備 | - |