市ヶ谷 約105坪【セットアップ】
物件ID: ma2-232
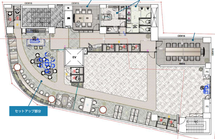
1階と6階にシェアラウンジ付きのおしゃれなハーフセットアップオフィスが誕生・:*+.
・専有部に会議室2部屋(6名用×1,12名用×1) ・テレカンブース9室 ・ラウンジスペース(什器付き) 約50名用想定の執務空間! 曙橋・市ヶ谷・四谷など好アクセス☆彡 1階と6階に共用シェアラウンジと共用会議室もあり!! 2026年4月入居可能予定の物件です!! 詳細は是非お問い合わせください。 ============================================================ 都内最大級を誇る物件数と累計10,000件以上の移転支援実績を生かし、 貴社にピッタリなオフィスをお探しします! 「居抜きで退去したい」といったご相談や 「相場を知りたい」といったご要望にもお応えします! 皆さまからのご連絡お待ちしております! ⇓⇓ お問い合わせフォーム or 電話はこちらから ⇓⇓
| 物件名 | 非公開 |
|---|---|
| 現況 | 募集中 |
| 賃料 | お問合せください |
| 管理費 | 相談 |
| 敷金・礼金 | 相談・相談 |
| 専有面積 | お問合せください |
| 所在地 | 東京都新宿区 |
| 最寄り駅 | 東京都新宿線 曙橋駅 |
| 構造/規模 | - |
| 竣工年 | - |
| 設備 | - |