五反田 約60坪【セットアップ】
物件ID: ma2-304
3駅利用可能!好立地なデザイナーズオフィス・:*+.
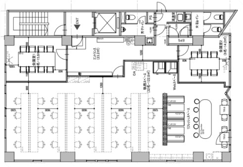
・会議室2部屋(6名・8名用×1) ・テレカンブース2部屋 ・カウンタースペース ・ソファースペース ・リフレッシュスペース ・男女別お手洗い ベージュを基調としたおしゃれなセットアップオフィスです・:*+. 不動前、五反田、目黒駅の3駅利用可能で好アクセス◎ 山手通り沿いで視認性抜群なガラス張りの美築ビルです!! ~2026年1月入居予定~ 詳細は是非お問い合わせください!
| 物件名 | 非公開 |
|---|---|
| 現況 | 募集中 |
| 賃料 | お問合せください |
| 管理費 | 相談 |
| 敷金・礼金 | 相談・相談 |
| 専有面積 | お問合せください |
| 所在地 | 東京都品川区 |
| 最寄り駅 | 東急目黒線 不動前駅 |
| 構造/規模 | - |
| 竣工年 | - |
| 設備 | - |