秋葉原 約15坪【セットアップ】
物件ID: ma2-306
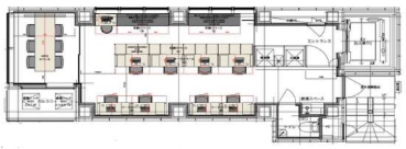
本郷通り沿いで視認性抜群!小規模デザイナーズオフィス☆彡
・6名用会議室 ・9名用執務室のデスク・いす ・エントランス 共用部の屋上にテラスもございます!! 秋葉原・お茶の水エリアで築浅のおしゃれなビルです。 詳細はぜひお問い合わせください◎ ============================================================ 都内最大級を誇る物件数と累計10,000件以上の移転支援実績を生かし、 貴社にピッタリなオフィスをお探しします! 「居抜きで退去したい」といったご相談や 「相場を知りたい」といったご要望にもお応えします! 皆さまからのご連絡お待ちしております! ⇓⇓ お問い合わせフォーム or 電話はこちらから ⇓⇓
| 物件名 | 非公開 |
|---|---|
| 現況 | 募集終了 |
| 賃料 | お問合せください |
| 管理費 | 相談 |
| 敷金・礼金 | 相談・相談 |
| 専有面積 | お問合せください |
| 所在地 | 東京都文京区 |
| 最寄り駅 | 東京地下鉄丸ノ内線 御茶ノ水駅 |
| 構造/規模 | - |
| 竣工年 | - |
| 設備 | - |