約23坪 御成門【セットアップ】
物件ID: mu3-049
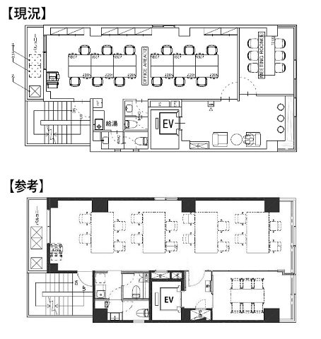
周辺が静かなオフィスエリア環境のセットアップオフィス!
御成門駅徒歩4分に約23坪のセットアップオフィスが登場! オフィスエリアのため周辺環境も静かで落ち着いて仕事ができます! ============================================================ この物件の他にも多数の居抜き物件情報を取り扱っております。 また、居抜きで退去したいといったご相談もお受けしており、 専任担当者をお付けし、居抜き入退去のお手伝いをさせていただいております。 ご連絡お待ちしております! ⇓⇓ お問い合わせフォーム or 電話はこちらから ⇓⇓
| 物件名 | 非公開 |
|---|---|
| 現況 | 募集終了 |
| 賃料 | お問合せください |
| 管理費 | 相談 |
| 敷金・礼金 | 相談・相談 |
| 専有面積 | お問合せください |
| 所在地 | 東京都港区 |
| 最寄り駅 | 東京都三田線 御成門駅 |
| 構造/規模 | - |
| 竣工年 | - |
| 設備 | - |