約61坪 芝公園【居抜き】
物件ID: mu3-092
倉庫付き居抜きオフィス!
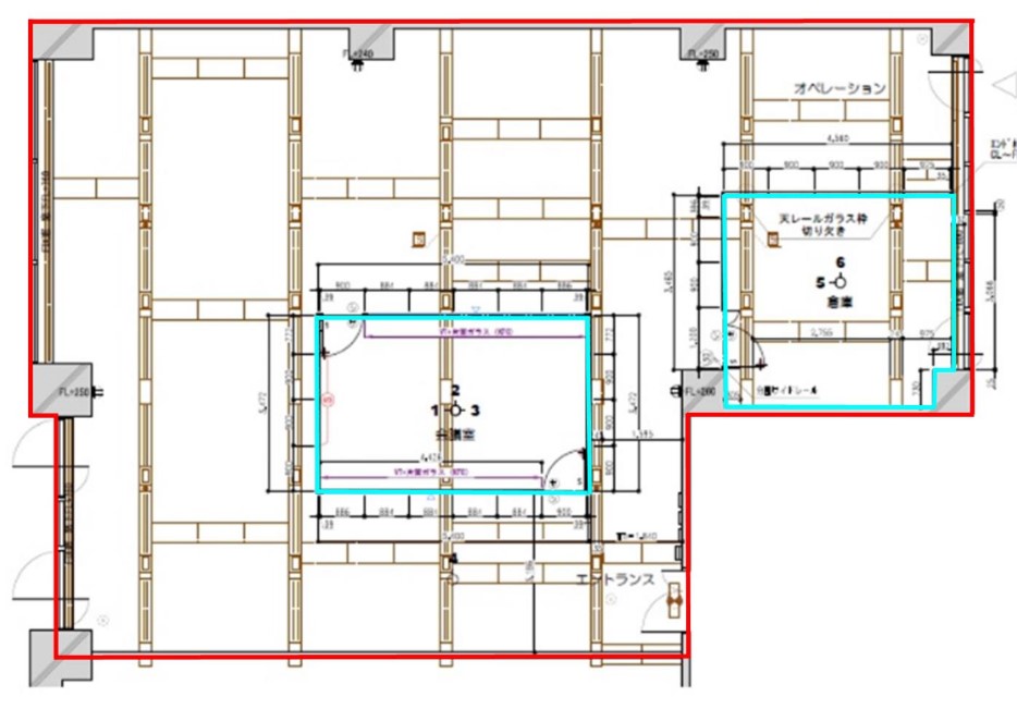
芝公園駅徒歩3分に約61坪の居抜きオフィスが登場! 会議室1部屋と倉庫1部屋が既に造作としてつくられており、 物が多い企業様でも安心です! ※什器は撤去予定です。 ============================================================ 都内最大級を誇る物件数と累計10,000件以上の移転支援実績を生かし、 貴社にピッタリなオフィスをお探しします! 「居抜きで退去したい」といったご相談や 「相場を知りたい」といったご要望にもお応えします! 皆さまからのご連絡お待ちしております! ⇓⇓ お問い合わせフォーム or 電話はこちらから ⇓⇓
| 物件名 | 非公開 |
|---|---|
| 現況 | 募集終了 |
| 賃料 | お問合せください |
| 管理費 | 相談 |
| 敷金・礼金 | 相談・相談 |
| 専有面積 | お問合せください |
| 所在地 | 東京都港区 |
| 最寄り駅 | 東京都三田線 芝公園駅 |
| 構造/規模 | - |
| 竣工年 | - |
| 設備 | - |