約67坪 芝公園【セットアップ】
物件ID: mu3-099
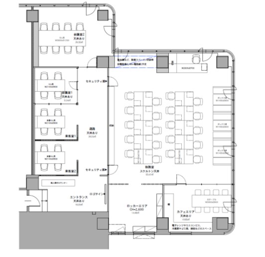
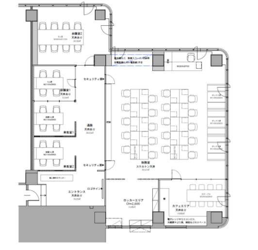
カフェエリアやロッカーエリア付きのフルセットアップオフィス!
芝公園駅徒歩1分に約67坪のフルセットアップオフィスが登場! 6名用会議室×1、4名用会議室×1、来客室×2、執務席20席、カフェエリア/ロッカーエリアがございます。 24/11月完成したばかりの綺麗な区画です!是非一度ご内見ください! ============================================================ 都内最大級を誇る物件数と累計10,000件以上の移転支援実績を生かし、 貴社にピッタリなオフィスをお探しします! 「居抜きで退去したい」といったご相談や 「相場を知りたい」といったご要望にもお応えします! 皆さまからのご連絡お待ちしております! ⇓⇓ お問い合わせフォーム or 電話はこちらから ⇓⇓
| 物件名 | 非公開 |
|---|---|
| 現況 | 募集終了 |
| 賃料 | お問合せください |
| 管理費 | 相談 |
| 敷金・礼金 | 相談・相談 |
| 専有面積 | お問合せください |
| 所在地 | 東京都港区 |
| 最寄り駅 | 三田線 芝公園駅 |
| 構造/規模 | - |
| 竣工年 | - |
| 設備 | - |