【浜松町60坪~80坪】
物件ID: n017
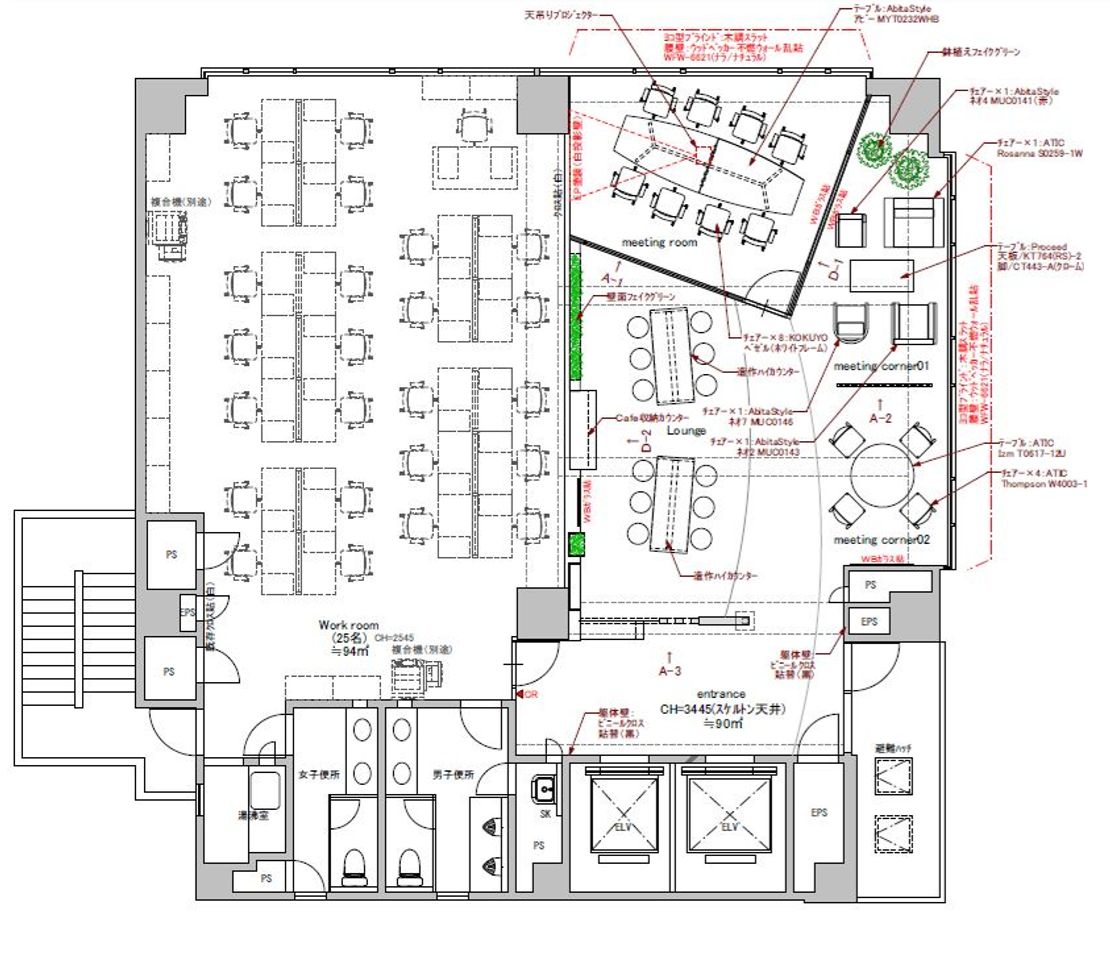
今回なんと港区に内に内装付きオフィス物件が誕生しました!! まだ、内装完成前で完成予定図でのご紹介です。 まるで、静かな芝生公園を思わせるような内装は集中力を高め、ハイパフォーマンスを発揮できる空間になると思います!! 20名から30名でオフィスをお探しのベンチャー企業様! 是非1度ご内見に足を運んでください!!
| 物件名 | 非公開 |
|---|---|
| 現況 | 募集終了 |
| 賃料 | お問合せください |
| 管理費 | 相談 |
| 敷金・礼金 | 相談・相談 |
| 専有面積 | お問合せください |
| 所在地 | 東京都港区 |
| 最寄り駅 | 浅草線 大門駅 |
| 構造/規模 | - |
| 竣工年 | - |
| 設備 | - |