東京都中央区築地に位置する「築地242ビル」と「築地第3長岡ビル」は、それぞれ独自の魅力を持ち、ビジネス環境において優れた特性を提供するオフィスビルです。本文では、これらのビルの特徴、立地、設備などを詳細に紹介し、ビジネスにおけるそれぞれの利点を明確にします。 【築地242ビル】 1991年に竣工した築地242ビルは、中央区築地2丁目に位置し、地上9階・地下2階建ての構造を持ちます。特徴的なガラスカーテンウォールのファサードがこのビルのアイコンであり、高級感あふれるエントランスロビーが訪問者を迎えます。基準階面積は66坪で、長方形に近いレイアウトが可能なため、オフィスの設計において柔軟性があります。また、個別空調やOAフロアを備え、機械式警備とカードリーダーによるセキュリティシステムが導入されています。新富町駅から徒歩1分、築地駅から徒歩2分という絶好の立地は、従業員や来客のアクセスに優れています。 【築地第3長岡ビル】 1982年に竣工した築地第3長岡ビルもまた、中央区築地に位置する耐震オフィスビルです。このビルは、新富町駅から徒歩1分という至近距離にあり、アクセスの良さが顕著です。男女別のトイレ設備と24時間利用可能な環境、機械警備による安心のセキュリティ体制を整えています。周辺は中小規模のオフィスビルや商業ビルが立ち並び、コンビニや飲食店も充実しており、ビジネスに必要なサポート環境が整っています。 両ビルともに、中央区役所や京橋税務署、郵便局などの公共施設が徒歩圏内にあり、ビジネス運営における利便性が高い点が魅力です。加えて、周辺には築地市場や築地本願寺などの歴史的・文化的スポットがあり、ランチタイムや仕事帰りに楽しむことができる点も、従業員の福利厚生の観点から見て魅力的です。 築地242ビルと築地第3長岡ビルは、それぞれが提供する独自の魅力とビジネス環境における利点を持っています。これらのビルを拠点にすることは、企業のブランドイメージの向上や従業員の働きやすさ、ビジネスの効率化を促進する大きな機会と言えるでしょう。
東京の耐震基準の賃貸オフィス・賃貸事務所
検索結果 2,577棟3,978フロア
新宿国際ビルディング新館は、ビジネスの中心地、西新宿に位置する1985年竣工の高品質オフィスビルです。総合的な機能性と快適性を兼ね備えたこの物件は、新宿区西新宿におけるビジネスの拠点として理想的な環境を提供しています。立地、設備、セキュリティの三拍子が揃ったこの物件の魅力を深掘りします。 ### 立地の優位性 新宿国際ビルディング新館は、西新宿駅からわずか徒歩4分というアクセスの良さを誇ります。さらに、大江戸線の都庁前駅が徒歩6分、新宿駅にも徒歩13分と、3駅以上が利用可能な好立地に位置しており、都内各所へのアクセスが非常に便利です。ビジネスの機会を最大限に活かすための絶好の地点にあります。 ### 高スペック設備 1985年に竣工された新宿国際ビルディング新館は、耐震性に優れたオフィスビルです。共用部には2基のエレベーターが設置されており、セントラル空調、OAフロア、男女別の室外トイレなど、テナントのニーズに応える高度な設備が整っています。また、24時間警備員巡回警備や機械式駐車場の設置など、セキュリティ面でも安心の仕様となっています。 ### 利便性と快適性 地下1階には飲食店やショッピング施設が入る「ヒルトピア」があり、日々のビジネスライフをサポートします。また、向かいのビルには郵便局やコンビニ、カフェ等が揃っており、ビジネスマンの忙しい日常に小さな潤いと利便性を提供します。レイアウトしやすい間取りとなっており、テナントのニーズに合わせたオフィス空間のカスタマイズも可能です。 新宿国際ビルディング新館は、ビジネスの中心地において最高のパフォーマンスを発揮するためのすべてを提供します。立地の良さ、充実した設備、そして快適なオフィスライフをサポートする環境が、あなたのビジネスを成功へと導くでしょう。この物件は、将来性豊かなビジネスの展開にふさわしい場所を求める企業にとって、理想的な選択肢です。
新宿三井ビルディングは、新宿区西新宿に位置し、1974年に竣工された歴史あるビルです。しかし、その外観は時間が経過してもなおモダンでスタイリッシュ、黒を基調としたハーフミラーのファサードが印象的で、新宿の高層ビル群の中でも一際目を引く存在です。基準階面積は500坪を超える広大なスペースを誇り、効率的なレイアウトと無柱空間により、様々なビジネスニーズに対応可能です。 アクセス面では、大江戸線都庁前駅から徒歩2分、丸の内線西新宿駅から5分、JR新宿駅からは10分と、3駅以上利用できる好立地にあります。これにより、ビジネスでの移動が非常に便利で、クライアントとの打ち合わせや社外での活動にもスムーズに対応できます。 ビルの設備面でも、最新のリニューアルを経て、高いスペックを維持しています。共用部の清潔感、30基のエレベーターによる待ち時間の短縮、OAフロアや予備電源の確保、そして新耐震基準をクリアした構造は、テナント企業にとっての安心感に直結します。また、ICカードセキュリティシステムと24時間有人警備体制により、安全性も高く評価されています。 ビル内の貸会議室や、広々としたエントランス、待ち合わせに便利な待合席など、ビジネスの場としての機能性も十分。加えて、多くの飲食店やコンビニエンスストア、銀行などが入居しており、オフィスワーカーの日常生活をサポートする施設も充実しています。 新宿三井ビルディングは、立地、設備、機能性を兼ね備え、ビジネスシーンを強力にバックアップするオフィスビルです。これらの特徴から、企業のプレステージ向上にも寄与し、従業員にとっても働きやすい環境が提供されています。新宿区西新宿での賃貸オフィスをお探しの方に、新宿三井ビルディングは最適な選択肢と言えるでしょう。
K’S西麻布(港区西麻布)は、洗練されたビジネスの舞台を提供する賃貸オフィスビルです。この物件は、1995年に竣工された8階建ての耐震構造ビルで、基準階面積は約51坪となっており、長方形に近い間取りによりレイアウトの自由度が非常に高くなっています。天井高は2500mmと広々としており、シンプルながらも効率的なワークスペースを実現します。また、各階にはバルコニーが完備されており、開放感あふれるオフィス環境を提供しています。 設備面では、個別空調、男女別トイレ、給湯設備が整っており、オフィス内は清潔感に満ちています。セキュリティ面ではエレベーターの不停止機能を採用しており、24時間利用可能なオフィスビルとしての安心感を提供しています。 立地においてもK’S西麻布は特筆すべきポイントがあります。外苑西通り沿いに位置し、六本木ヒルズまで徒歩6分、東京メトロ千代田線の乃木坂駅、東京メトロ日比谷線と都営大江戸線が利用可能な六本木駅といった主要駅へのアクセスが徒歩10分程度という便利さです。さらに、飲食店が豊富なエリアに位置し、コンビニや郵便局も近く、ビジネスに必要なあらゆるサポート環境が整っています。 K’S西麻布は、その立地の良さ、高いレイアウト自由度、充実した設備、そしてセキュリティ面での配慮など、ビジネスを推進するためのすべてを兼ね備えたオフィスビルです。この物件は、ビジネスの可能性を広げるための理想的な場所を求める企業にとって、最適な選択となることでしょう。視認性に優れた外観と、管理が行き届いた清潔感のあるエントランスが、来訪者に良い印象を与えます。K’S西麻布で、あなたのビジネスを一歩前進させませんか?
東京都千代田区神田和泉町に位置する三恵ビルは、昭和通り沿いの好立地に建つオフィス賃貸物件です。この地域は、オフィスビルが立ち並び、ビジネスの中心地としての活気を感じることができます。また、飲食店やコンビニが徒歩圏内に点在しており、日々の勤務に必要な便利さを提供しています。 三恵ビルは1983年に竣工し、新耐震基準に基づいて施工された安全性の高い建物です。10階建てのこのビルは、基準階約112坪の賃貸オフィススペースを提供しており、特に室内は柱のない少し特殊な形状で、レイアウトの自由度が高く、企業のニーズに柔軟に対応可能です。個別空調システムにより、各テナントが快適な室温を保つことができます。 エントランスホールは石造りでシックな雰囲気を醸し出し、ビジネスの顔としての印象を強くします。エレベーターは2基設置されており、ビル内の移動もスムーズです。さらに、ビル内に駐車場があり、空き状況に応じて利用することが可能であり、秋葉原駅から徒歩3分、浅草橋駅からも徒歩8分というアクセスの良さは、ビジネスにおける大きな利点となります。 三恵ビルの周辺は、路地裏に飲食店が多く軒を連ねるなど、様々な業種の企業が活動するエネルギッシュなエリアです。昭和通りを渡れば、さらに多くのチェーン店が並び、ビジネスマンの日常に便利さをもたらしています。 この物件は、ビジネスの拠点としての機能性と快適な勤務環境、そして卓越した立地条件を兼ね備えています。三恵ビルは、新しいビジネスの展開や企業の成長に最適な環境を提供する、千代田区神田和泉町における賃貸オフィスの優れた選択肢です。
【松尾松濤ビルのご紹介】 今回ご紹介するのは、渋谷区松濤1丁目に位置する「松尾松濤ビル」です。このビルは1990年に竣工された、渋谷区で際立つ存在の貸事務所ビルでございます。渋谷駅から徒歩6分、神泉駅から徒歩5分という絶好の立地に加え、周囲が静かで落ち着いた環境という、ビジネスに最適な条件を兼ね備えています。 【立地の魅力】 松尾松濤ビルの最大の魅力は、その立地にあります。渋谷の喧騒から少し離れた松濤エリアにありながら、渋谷駅まで徒歩圏内という利便性を持っています。また、東急百貨店のすぐ近くに位置しているため、お仕事の合間にショッピングや食事を楽しむことも可能です。ビジネスとプライベート、どちらも充実させたい方には最適な環境です。 【ビルの特徴】 このビルは、1フロア1テナントという構造を採用しており、テナント様は広々とした空間でのオフィスライフをお楽しみいただけます。また、1990年竣工と歴史を感じさせつつも、綺麗にメンテナンスされた建物内外は、クライアントを迎えるビジネスシーンにも最適な印象を与えます。さらに、エレベーターが1機設置されており、スムーズな移動をサポートします。 【ビジネスにおける利点】 松尾松濤ビルは、ビジネスの拠点として数多くのメリットを提供します。渋谷という日本を代表するビジネスエリアにおいて、静かで落ち着いた環境を確保できるのは大きな利点です。集中して仕事に取り組むことができ、また、渋谷駅へのアクセスの良さは、国内外のクライアントとのミーティングにも便利です。1フロア1テナントのため、プライバシーが保たれることも、ビジネス上の重要なポイントと言えるでしょう。 いかがでしたでしょうか。松尾松濤ビルは、ビジネスの成功を追求する皆様にとって、最適なオフィス環境を提供します。静かで落ち着いた立地、そして渋谷というビジネスの中心地へのアクセスの良さ。これらを兼ね備えた松尾松濤ビルで、新たなビジネスのステージを迎えてみませんか。ご興味を持たれた方は、ぜひお問い合わせください。あなたのビジネスの成功を、私たちは全力でサポートいたします。
【南青山の新たなビジネスの拠点、VORT外苑前Ⅱのご紹介】 港区南青山、ビジネスと洗練が交差するこのエリアに位置するVORT外苑前Ⅱは、1990年に竣工した、地上8階建ての賃貸オフィスビルです。この物件は、基準階約33坪というサイズで、中小企業やスタートアップにぴったりのオフィス空間を提供しています。ここでは、その特徴と、ビジネスの場としての魅力をご紹介します。 立地面では、VORT外苑前Ⅱは、東京メトロ銀座線の外苑前駅から徒歩わずか3分というアクセスの良さを誇ります。また、表参道駅と青山一丁目駅も徒歩圏内にあり、複数の路線が使えることで、都心への移動が非常に便利です。外苑西通りに面していることから、視認性も高く、来訪者にも説明しやすい立地となっています。 設備面では、安心の24時間セキュリティが整っており、機械警備による安全なオフィス環境が確保されています。また、白を基調としたスタイリッシュなエントランスは、訪れる方々に良い印象を与えます。オフィス内には11人乗りのエレベーターが1基設置されており、快適な移動が可能です。個別空調やOAフロア、男女別トイレなど、働く人々のニーズに合わせた施設が整っています。 周辺環境も充実しており、徒歩圏内には外苑前郵便局や、バンキングニーズに応える三井住友銀行南青山三丁目出張所、みずほ銀行青山支店があります。また、檜町公園や青山霊園といった緑豊かなスポットも近く、オフィスでの忙しい日々の中で、心地よい息抜きを提供してくれます。飲食店やカフェ、PASSAGEAOYAMAでのショッピングなど、アフター5を充実させる施設も豊富に揃っています。 VORT外苑前Ⅱは、新耐震基準を満たした構造で、安全性にも配慮されており、ビジネスの拠点として、また、企業の顔としても最適なオフィスビルです。立地の良さ、充実した設備、そして周辺環境の豊かさが、ビジネスの成功を後押しします。南青山での新たなスタートに、ぜひVORT外苑前Ⅱをお選びください。
自由が丘第2ビルは、東京都目黒区に位置する賃貸オフィスビルで、自由が丘の中心部にあるマリクレール通り沿いに建っています。1986年に竣工されたこの建物は、地上5階建てで、モダンな設計と機能性を兼ね備えていることが特徴です。ビルには1基のエレベーターが設置されており、各階へのアクセスをスムーズにします。 立地として、自由が丘駅から徒歩1分という非常に便利な位置にあります。この駅は東急大井町線に加えて東急東横線も利用可能で、渋谷や横浜へのアクセスも容易です。また、奥沢駅からも徒歩7分の距離にあり、複数の交通オプションが利用者の利便性を高めています。 周辺環境には、飲食店、カフェ、銀行など日常的に必要とされる施設が充実しており、ビジネスに必要なサポート環境が整っています。徒歩圏内にはセブン-イレブン目黒自由が丘1丁目東店や松屋自由ヶ丘店、エクセルシオールカフェ自由が丘マリクレール通り店などがあり、ビジネスランチや打ち合わせの場としても便利です。 ビルの設計は、効率的なオフィスレイアウトを可能にする柔軟な空間構成を採用しており、様々なタイプの企業が自社のニーズに合わせて利用できます。また、ビルの入口やエレベーターホールは、プロフェッショナルで清潔感のあるデザインが施され、訪れるクライアントやビジネスパートナーに好印象を与えます。 自由が丘第2ビルは、その優れた立地、充実した周辺施設、効率的なオフィススペースといった特徴を持ち合わせており、多くの企業にとって魅力的なオフィスの選択肢となるでしょう。ビジネスの拠点として、または新たな事業展開の場として、そのポテンシャルを存分に発揮できる環境がここにはあります。
目黒区青葉台に位置する「フォートレス渋谷ビル」は、1993年に竣工された地上5階建てのオフィス賃貸ビルです。この物件は、新耐震基準に則って建設され、安全性に優れています。ビルは渋谷駅から徒歩10分以上というアクセスの良さに加え、神泉駅からはわずか徒歩5分の距離にあります。ビル周辺は住宅地とオフィスが混在しており、日々の通勤に便利な立地条件を備えています。 「フォートレス渋谷ビル」は、基準階約23坪の貸室を提供しており、各フロアは1テナントが利用するプライベートな空間です。貸室は縦長の間取りで、自然光がたっぷりと入る設計になっています。これにより、明るく快適なオフィス環境が確保されています。また、各フロアには個別空調システムが完備されており、快適な温度管理が可能です。さらに、トイレは室外に設置されており、利便性が高くなっています。 ビルの外観は黒を基調としたスタイリッシュなデザインで、現代的なビジネスシーンに相応しい印象を与えます。セキュリティは機械警備が整っており、安心して業務を行うことができます。また、ビル内には駐車場も設けられており、車での通勤も考慮されています。 周辺環境としては、コンビニエンスストアが徒歩圏内に複数存在し、日々の小さな買い物にも困りません。また、飲食店も点在しており、ビジネスランチやアフター5の利用に便利です。さらに、近くには神泉児童遊園地やコメダ珈琲店渋谷道玄坂上店があり、休日のリフレッシュにも最適です。 「フォートレス渋谷ビル」は、その立地、設備、安全性を兼ね備えた賃貸オフィスビルとして、多様なビジネスニーズに応える環境を提供しています。オフィス移転を考える企業や新たにオフィスを設立しようとするビジネスパーソンにとって、魅力的な選択肢の一つと言えるでしょう。
渋谷区神宮前に位置する「神宮前松井ビル」は、ビジネスの成功を追求する企業にとって最適な選択肢です。このビルは、渋谷駅から徒歩5分、明治神宮前〈原宿〉駅からは徒歩7分という、羨望の立地に恵まれています。そのアクセスの良さは、従業員や顧客にとって大きな魅力となるでしょう。 「神宮前松井ビル」の基準階面積は約28坪で、ほぼ正方形の室内は余計な柱がなく、非常にレイアウト効率が高いことが特徴です。1フロア1テナント制を採用しており、24時間利用可能なため、他テナントや時間に気兼ねなく仕事ができる環境が整っています。これは、起業家やクリエイティブな業務を行う企業には特に魅力的です。 周辺環境も見逃せません。比較的閑静なエリアに位置しており、近くには神社もあり、落ち着いて仕事に取り組むことができます。また、徒歩圏内にはカフェやコンビニが充実しており、ランチタイムやちょっとした打ち合わせにも困りません。 建物自体は1989年に竣工し、新耐震基準に適合した4階建ての物件です。エレベーターは1基設置されており、エントランスやエレベーターホールは管理が行き届いており、清潔感あふれる空間が広がっています。通常のオフィス時間外でも、通用口からの出入りが可能で、利便性が高いことも特筆すべき点です。 「神宮前松井ビル」は、立地の良さ、利便性、働きやすい環境を兼ね備えた賃貸オフィス物件です。ビジネスをさらに成長させたい企業にとって、この物件は非常に魅力的な選択となるでしょう。渋谷区神宮前にあるこのビルは、企業のニーズに応えるために、必要なすべてを提供しています。
汐留AZビルは、東京都港区東新橋に位置する賃貸オフィスビルです。1985年に竣工されたこのビルは、新耐震基準に適合し、2005年にはエントランスおよび共用部のリニューアルが行われました。その結果、現代のビジネスニーズに応える機能的かつ快適なオフィス空間を提供しています。 本ビルの立地は、都営大江戸線の汐留駅から徒歩約4分というアクセスの優れた位置にあります。加えて、JR各線や都営浅草線の新橋駅からも徒歩6分の距離にあり、都営三田線・御成門駅、都営大江戸線・大門駅、JR線・浜松町駅からも徒歩10分弱で到達可能です。この地域は、複数の駅と路線が利用可能であり、東京の主要ビジネスエリアへのアクセスが非常に便利です。 ビルの基準階貸室面積は約35坪で、長方形に近い執務スペースを提供しています。これにより、効率的なオフィスレイアウトが可能となり、様々な企業のニーズに対応する柔軟性を持っています。また、個別空調システムを備えており、オフィス内の環境を快適に保つことができます。セキュリティ面では、機械警備システムを導入し、ビル内の安全を確保しています。 周辺環境も魅力的で、ビルの近くにはコンビニエンスストアや飲食店があり、ビジネスマンの日常のニーズに応える充実した施設が揃っています。さらに、徒歩圏内には「イタリア街」と呼ばれるショップやレストランが並ぶエリアがあり、ビジネスの合間にリフレッシュする場所も豊富にあります。 汐留AZビルは、その耐震性能、快適なオフィス環境、優れたアクセス性、そして充実した周辺環境により、様々な企業にとって魅力的なオフィススペースを提供しています。これらの特徴は、ビジネスの効率化と従業員の働きやすさを高める上で、非常に重要な要素です。ご興味のある企業様は、是非一度、汐留AZビルの内見をご検討ください。
一広グローバルビルは、東京都千代田区内神田2丁目に位置する、2020年10月に竣工した新築オフィスビルです。このビルは、現代のビジネス環境において必要不可欠な要素を総合的に取り入れており、その設備と立地によって、多くの企業にとって魅力的な選択肢となっています。 立地において、一広グローバルビルは、複数の交通アクセスが可能な理想的な位置にあります。JR各線をはじめ、東京メトロ等、複数の路線が利用可能な「神田」駅から徒歩3分、「大手町」駅からは徒歩5分というアクセスの良さは、日々の通勤はもちろん、ビジネスでの外出時にも大きな利点となります。また、周辺には飲食店や専門店、コンビニなどが充実しており、ビジネスシーンのみならず日常生活においても大きな便利さを提供します。 ビルの構造に関して、一広グローバルビルは鉄骨造による耐震性に優れた建築であり、安心して業務を遂行することができます。また、建物内には1基のエレベーターが設置されており、スムーズな移動を可能としています。加えて、個別空調システムにより、各テナントが独自に環境設定が可能であり、快適なオフィス環境を実現します。 SOHO物件としての利用も可能であることは、一広グローバルビルの大きな特徴の一つです。住まいと仕事場の兼用は、移動時間の削減やライフスタイルの多様化に寄与し、ワークライフバランスの向上に貢献します。 一広グローバルビルは、その立地の利便性、先進的な設備、そして耐震性能により、ビジネスの成長をサポートする理想的なオフィス空間を提供します。新しいビジネスの形態を求める企業や、快適で効率的なオフィスを望む組織にとって、最適な選択と言えるでしょう。
NBFプラチナタワー、それは単なるオフィスビルではありません。このビルは、21世紀のビジネスを象徴するランドマークであり、東京都港区白金1-17-3に位置するこの優雅な高層ビルは、仕事と生活の調和を重視する現代のビジネスパーソンにとって、理想的な選択肢です。2005年に竣工したこの建築物は、新耐震基準を満たし、安全性と快適性を兼ね備えています。地上26階、地下2階建てのこのビルは、総延床面積15,315坪、基準階面積約391坪で、広大な無柱の空間が特徴です。これにより、テナントは自由度の高いレイアウトを実現し、効率的かつ快適なオフィス環境を構築することが可能です。 立地においても、NBFプラチナタワーは群を抜いています。白金高輪駅直結という抜群のアクセス性を誇り、東京メトロ南北線・都営三田線が利用可能で、JR線の目黒駅へは2駅、バスを利用すれば品川駅へも7分と、都内外への移動が極めてスムーズです。また、麻布通り沿いの視認性の高い立地は、ビジネスの可能性を広げます。 設備面においても、NBFプラチナタワーは最先端を行きます。地震のエネルギーを吸収する制震構造、3回線受電によるスポットネットワーク受電システム、非接触型ICカードによるセキュリティシステムなど、テナントの安全と快適性を最優先に考えた設備が整っています。また、床荷重500kg/㎡(800kg/㎡のヘビーデューティーゾーンあり)、天井高2,700mm、OAフロアや個別空調システムなど、テナントのニーズに応える設備が充実しています。 さらに、周辺の環境も魅力の一つです。プラザ棟には、コンビニやスーパーマーケット、飲食店、ドラッグストアなどが入っており、ビジネスに必要なものはすべて手の届く範囲にあります。このように、NBFプラチナタワーは、高い耐震性能と安全性、交通の利便性、快適なオフィス環境という、ビジネスにおける三大要素を完璧に兼ね備えています。 NBFプラチナタワーは、ただのオフィススペースを提供するだけでなく、ビジネスの成功を後押しする、最高のパートナーです。あなたが求めるビジネスの未来を、ここでぜひ実現させてください。
神楽坂Uビルは、新宿区天神町に位置する賃貸オフィス物件で、利便性と快適性を兼ね備えた魅力的な選択肢です。1996年1月に竣工され、地上8階建て、地下1階の建物です。エレベーターが1基設置されており、各フロアへスムーズにアクセスできます。 このビルは東京地下鉄東西線の神楽坂駅から徒歩2分、さらに有楽町線の江戸川橋駅からは徒歩8分、大江戸線の牛込神楽坂駅からは徒歩9分と、複数の駅に近接しているため、アクセスの良さが際立っています。特に神楽坂駅からは徒歩わずか5分弱の距離に位置しており、通勤の利便性が高いです。 神楽坂Uビルの貸室は、2面採光による十分な明るさが特徴で、快適な作業環境を提供します。室内には水回りが完備されており、機能的な設備が整っています。さらに、セキュリティ面でも機械警備を導入しており、24時間体制で安全性が確保されています。 ビルの前面は早稲田通りに面しており、周囲にはコンビニエンスストアや飲食チェーン店が多く立ち並び、日常の利便性も抜群です。周辺は住宅エリアが多く、喧騒から離れて静かな環境が保たれているため、落ち着いた環境で業務に集中できます。 このように、神楽坂Uビルはアクセスの良さ、充実した設備、そして静かな環境という魅力を兼ね備えており、事務所をお探しの方にとって理想的な物件です。ぜひ一度、その魅力を現地で感じてください。
ウィンド小伝馬町Ⅱビルをご紹介します。このビルは、ビジネスの中心地である東京都中央区日本橋小伝馬町に位置する、デザイナーズ賃貸オフィスビルです。1983年に新耐震基準に準拠して建設され、2008年には内外装ともに全面リニューアルを施されました。この物件の最大の魅力は、その立地と設備にあります。小伝馬町駅から徒歩わずか3分、さらにJR馬喰町駅からも徒歩5分の好立地にあり、3駅以上利用可能な交通の利便性は、多忙なビジネスパーソンにとって大きなメリットとなるでしょう。 物件は、間接照明を多用した洗練されたデザインが特徴で、ソフィスティケートされたビジネス環境を提供します。ゆとりを感じさせるオフィス空間は、クリエイティブな仕事に従事する方々にも最適です。また、ビル内に駐車場を備えているため、車での移動が多いビジネスパーソンにとっても便利です。空き状況については随時お問い合わせいただけます。 ビルは1機のエレベーターを装備しており、機械警備完備という点も、セキュリティ面での安心感を提供します。1983年の竣工以来、耐震性にも優れており、安心してビジネスを行うことができます。全面リニューアルを経て、より快適で現代的なオフィス環境が整っています。 ウィンド小伝馬町Ⅱビルは、その立地、デザイン、設備を通じて、ビジネスの成功を支える環境を提供します。新耐震基準に準拠した建築と、交通の利便性、洗練されたオフィス空間は、様々な業種の企業にとって魅力的な選択肢であること間違いありません。ご興味のある方は、ぜひ一度、内見をご検討ください。このビルが、あなたのビジネスに新たな風をもたらすことを確信しています。
テレコムセンター駅すぐの大型物件です。上層階には研修室や食堂などもあり、設備の充実した施設となっております。貨物用のエレベーターも完備され、搬入の多い企業様にもおすすで、湾岸の眺望はとても綺麗です。
- 住所
- 東京都江東区青海2丁目4-32
地図をみる - 駅徒歩
- テレコムセンター駅(ゆりかもめ)徒歩2分
- 東京国際クルーズターミナル駅(東京臨海新交通臨海線)徒歩7分
- 青海駅(東京臨海新交通臨海線)徒歩11分
- 竣工
- 1996年1月
- 規模
- 地上19階・地下1階建て
半蔵門KDビルは、千代田区平河町1丁目、首都の中心部に位置する賃貸オフィスビルです。半蔵門駅からわずか徒歩3分、麹町駅からは徒歩5分という抜群のアクセスの良さを誇ります。この立地は、ビジネスの機会を追求する企業にとって理想的な環境を提供します。 1985年に竣工し、鉄骨鉄筋コンクリート造りのこのビルは、耐震性に優れており、安心してビジネスを展開することができます。8階建ての建物には、効率的な業務をサポートするための光ファイバーによる高速通信環境が整備されており、現代のビジネスニーズに対応した設備が整っています。 セキュリティ面においても、機械警備により24時間体制で安全が確保されており、入居企業様はいつでも安心してご利用いただけます。また、給湯室をはじめ、男女共用トイレ、クリニック向けの設備など、利便性と快適性を兼ね備えた設備が充実しています。ビル内には駐車場も設けられており、来客の際にもスムーズな対応が可能です。 ビルの周辺には、飲食店やコンビニが豊富にあり、ビジネスマンの日常生活に欠かせないサービスが身近に利用できます。ランチタイムや仕事帰りの食事、ちょっとした買い物にも困りません。半蔵門通りから一本入った立地は、ビジネスシーンにふさわしい落ち着いた雰囲気を提供し、集中して仕事に取り組むことができる環境を実現しています。 半蔵門KDビルは、立地、設備、安全性を兼ね備えた賃貸オフィスビルとして、あらゆるビジネスのニーズに応えることができる物件です。ビジネスの拠点として最適なこのビルで、新たなステージを迎える企業様を心よりお待ちしております。
日土地西新宿ビルは、新宿区西新宿に位置する、2002年に竣工した23階建てのモダンで高機能な賃貸オフィスビルです。その立地は、東京メトロ丸ノ内線「西新宿」駅からわずか徒歩3分という、ビジネスの中心地である新宿の心臓部にあります。さらに、都営大江戸線「都庁前」駅、JR線・小田急小田原線・京王線・東京メトロ丸ノ内線・都営新宿線「新宿」駅からも徒歩圏内という、3駅以上の利用が可能な絶好のアクセスを誇ります。 基準階面積は約272坪という広さを有し、OAフロアや個別空調システム、光ファイバーの導入など、企業が求める最先端のオフィス環境を提供しています。天井高2800mmの広々とした空間は、無柱でL字型に設計されており、柔軟なレイアウトを可能としております。これにより、効率的なオフィス環境の構築が可能です。 さらに、ビルのセキュリティはICカードと機械警備の併用により、24時間体制で安全が保障されています。1階には飲食店舗が充実しており、貸し会議室も完備されています。これにより、ビル内でビジネス以外の時間も充実したオフィスライフが送れます。また、隣接する新宿オークタワーとエントランスを共有しているため、ビル周辺のビジネス施設との連携もスムーズです。 このビルは、最新の耐震基準にも適合しており、地震発生時の安全性にも配慮されています。また、エレベーターは合計8基設置され、快適な移動を約束します。立地の良さ、設備の充実度、セキュリティの高さなど、ビジネスに最適な環境が整っており、新宿区西新宿エリアでオフィスを構える企業にとって、最良の選択肢の一つです。 日土地西新宿ビルは、ビジネスを成功に導くための高スペックな設傼と、革新的なオフィス環境を提供することで、企業の成長をサポートします。このビルで、あなたのビジネスも新たなステージへと進みましょう。
元大ビルは、東京都台東区花川戸1丁目に位置するオフィス賃貸物件で、ビジネス環境として非常に優れた立地条件を備えています。特に、公共交通機関の利便性が高く、東京地下鉄銀座線浅草駅から徒歩2分、また東京都浅草線浅草駅からも徒歩5分という、都心へのアクセスが非常に良好な地点にあります。この立地は、ビジネスの迅速な展開や、クライアントやパートナーとの円滑なコミュニケーションを支援する要素となります。 建物の設備面においては、新耐震基準を満たしているため、地震などの災害時にも比較的安全性が高く、企業活動の継続性を保証する重要な要素となります。オフィスビルとしての基本的な機能をしっかりと備えており、エレベーターが1機設置されています。これは、中小規模の企業やベンチャー企業にとって十分な設備であり、日常の業務遂行においても快適な環境を提供します。 元大ビルの独自の魅力として、浅草という文化と歴史が豊かな地域に位置している点が挙げられます。浅草は観光地としても有名で、国内外から訪れる多くの観光客が集まるエリアです。このため、観光業やホスピタリティ業界、あるいはその関連業務を行っている企業にとっては、絶好のロケーションと言えます。また、様々な文化イベントや祭りが頻繁に開催されるエリアでもあり、ビジネスと文化が交わる独特の環境が、企業のブランディングやマーケティング活動にも寄与することでしょう。 さらに、近隣には多様な飲食店やカフェ、ショッピングモールなどが点在しており、社員のランチタイムやアフターファイブのリフレッシュ、ビジネスパートナーとの会食などに利用できる施設が充実しています。これにより、社員の満足度や業務効率の向上が期待できます。 総じて、元大ビルは、立地の優位性、設備の充実度、そして浅草という地域特性を活かした独自の魅力を兼ね備えたオフィス賃貸物件です。企業にとっては、ビジネスの成長と発展を支えるための理想的な環境を提供する一方、文化的な要素を取り入れることで、他の地域では得られないユニークな価値を創出することができます。ビジネスの拠点として、是非ご検討いただきたい物件です。
中央区八丁堀に位置する藤和八丁堀ビルは、1988年に竣工された、地上8階建ての現代的なオフィスビルです。耐震性に優れており、安心してご利用いただける機構を備えています。このビルの最大の特徴は、その立地の良さにあります。八丁堀駅からわずか徒歩2分の距離にあり、茅場町や宝町駅からもアクセス可能で、都心への移動が非常に便利です。新大橋通りから一本入った場所に位置し、オフィスビルが立ち並ぶ活気あるエリアにありながら、落ち着いた環境を提供しています。 ビルのエントランスは、白を基調とした石造りで、清潔感と高級感を演出しています。エレベーターは2基設置されており、スムーズな移動が可能です。また、各階には男女別トイレと給湯室が完備されており、オフィス環境を快適に保つための配慮が随所に見られます。貸室内には、一部柱があるものの、入り口が複数あるため、レイアウトの自由度が高く、効率的なオフィス空間の設計が可能です。 周辺環境も魅力的で、ビルのすぐそばには飲食店が充実しており、ランチやビジネスミーティングの際にも便利です。さらに、八丁堀駅前にはさまざまな商業施設があり、仕事後のショッピングや食事にも困りません。 藤和八丁堀ビルは、その立地、設備、周辺環境の全てにおいて、ビジネスの成功を支える理想的なオフィススペースを提供します。優れたアクセス性と快適なオフィス環境を求める企業にとって、このビルは最適な選択肢となるでしょう。ビジネスの拠点として、または新たな事業展開の場として、藤和八丁堀ビルで新しい一歩を踏み出しませんか?私たちは、ビルの魅力を最大限に活かし、皆様のビジネス成功を全力でサポートいたします。
田中ビルのご紹介 田中ビルは、1993年に竣工し、新耐震基準に準拠した安全性の高いオフィスビルです。その立地は西新宿8丁目、西新宿駅からわずか徒歩2分という絶好のロケーションにあります。ビジネスの中心地である新宿区に位置し、新宿駅からも歩いてアクセス可能なこのビルは、企業がオフィスを構えるにあたり最適な環境を提供します。 このビルの特徴は、まず安全性の高さにあります。1993年に新耐震基準で建設されたことで、地震への強さを確保しており、テナント企業および従業員の方々に安心感を提供します。また、駐車場をビル内に設けており、空き状況に応じて従業員や訪問客の利便性を高めています。 内装についても、男女別のトイレ設備を完備するなど、利用者の快適性を考慮した設計がなされています。エレベーターは鏡面の扉が2つ付いたホールに設置されており、外出前の身だしなみを整えるのにも便利です。 立地の魅力としては、西新宿の高層ビル群を抜けた青梅街道の北側に位置していることから、閑静ながらもビジネスに必要な環境を備えています。路地を東に向かうと飲食店が多く、青梅街道沿いにはコンビニやファミレスなどが立ち並び、ランチタイムや仕事後の食事にも困りません。 田中ビルは、優れた耐震性、駅近の便利な立地、従業員の利便性を考慮した設備を備え、ビジネスの成長をサポートする理想的なオフィススペースを提供します。このビルは、新たなビジネスの拠点として、または企業の成長を促す環境として、お求めの企業様にとって最適な選択肢となるでしょう。
「千代田区九段南に誇りを持ってご紹介する、ニューライフビル。このオフィスビルは、1992年に竣工された7階建ての賃貸オフィス物件で、一日中活気に満ちたビジネスの中心地に位置しています。基準階約50坪の広さを誇り、長方形に近いL字型の間取りは、効率的なオフィスレイアウトを可能にします。個々の空間には個別空調とOAフロアが完備されており、男女別トイレと給湯設備も室内に設置されています。24時間利用可能な貸室は、ビジネスが求める柔軟性を提供します。 立地に関しては、市ヶ谷駅から徒歩8分と、交通アクセスの良さが際立ちます。さらに、半蔵門駅へも徒歩圏内であり、東京メトロ有楽町線・南北線、JR総武線など複数の路線が利用可能です。この立地は、都心へのスムーズなアクセスを必要とするビジネスパーソンにとって理想的です。また、周辺には飲食店、コンビニ、郵便局などがあり、日々の業務に必要なあらゆるサービスが手の届くところにあります。 ニューライフビルは、落ち着いた色調の外観と、ビル1階に入る小型スーパーマーケットが大きな特徴です。このビルが提供するのは、ただのオフィススペースではなく、働く人々の生活を豊かにする環境です。機械警備によるセキュリティの導入で、安心してビジネスに集中できる環境が整えられています。 文教地区である千代田区番町に隣接し、教育施設も多いこのエリアは、知的な雰囲気に包まれています。このような環境は、企業のブランドイメージを高めるには最適な場所です。2面採光で自然光が溢れるオフィスは、明るく活気ある職場環境を作り出します。 ニューライフビルは、機能性とアクセスの良さ、そして快適な職場環境を提供する、あなたのビジネスを次のレベルへと引き上げるための理想的な選択肢です。このオフィスビルで、新たなビジネスライフをスタートしませんか?」
TFT東館ビルは、江東区有明3丁目に位置する大規模オフィスビルで、東京ビッグサイト駅から徒歩わずか1分の利便性を誇ります。 地上9階、地下1階のこの建物は、新耐震基準に基づいて1996年に建設されており、安心して利用できる環境を提供しています。特に、ワンフロア約2000坪という広大な貸室面積は、多様なレイアウトに対応可能で、企業の成長に伴う柔軟なオフィス運営を支援します。募集時期やフロアによっては、分割区画も多数用意されています。 ビルの特長として、全体に大きな窓が配置され、2,700mmの天井高が確保されているため、明るく開放感のある執務空間を実現しています。さらに、圧倒的な眺望も魅力の一つで、レインボーブリッジや東京スカイツリーなど、東京を象徴する景観を楽しむことができます。 施設内には、会議室や研修室、クリエイティブサポートセンターなど、多彩な機能を備えた施設が揃っています。また、ショッピングモール「ワンザ有明ベイモール」や飲食店、コンビニが入居しており、日常の利便性も高いです。機械警備や集中空調、24時間利用可能な環境など、オフィス運営をサポートする設備も充実しています。 交通アクセスも非常に良好で、ゆりかもめ・東京ビッグサイト駅に直結し、国際展示場駅や有明駅も徒歩圏内です。都内各所や横浜、大宮、羽田・成田空港へのアクセスもスムーズです。このような条件が揃ったTFT東館ビルは、企業の成長を力強く支える理想的なオフィススペースです。ぜひ一度、その魅力を実際にご覧ください。
FDC麹町ビルは、東京都千代田区麹町2丁目に位置する、2009年に竣工した現代的なオフィスビルです。このビルは、東京メトロ半蔵門線の半蔵門駅から徒歩わずか1分という、非常に便利な立地条件を誇ります。さらに東京メトロ有楽町線の麹町駅と南北線の永田町駅も徒歩圏内にあり、3路線のアクセスが可能となっており、ビジネスの拠点として最適な環境を提供します。 ビルの構造は鉄骨造で、新耐震基準を満たした設計になっているため、安全性にも配慮されています。地上11階建て(地下2階)のこのビルは、約62坪の基準階面積を持ち、OAフロアが設置されているため、ケーブル類を床下に納めてオフィス内をすっきりと保つことができます。また、個別空調システムにより、オフィス環境を快適に保つことが可能です。 セキュリティ面では、機械警備システムが導入されており、24時間利用可能な環境が整っています。さらに、高速通信が求められるビジネスシーンに対応するため、光ファイバーの設備も完備されています。ビル内には男女別トイレがあり、女性用には複数の洗面台が設けられており、細やかな配慮が感じられます。 立地についても、周辺には飲食店や専門店、コンビニエンスストアが充実しており、ビジネスだけでなく、日々の生活にも便利な環境です。また、近隣には銀行や郵便局も複数あり、ビジネスのサポート環境も整っています。 FDC麹町ビルは、その最新の耐震基準に適合した安全性、3路線のアクセス可能な立地、そして快適なオフィス環境の提供という3つの大きな魅力を持つ、ビジネスの拠点として最適なオフィスビルです。これらの特徴を活かし、様々な業種の企業にとって、効率的で快適なビジネスライフをサポートする環境を提供しています。
東京オペラシティタワーは、東京都新宿区西新宿に位置する、文化施設を含む複合ビルです。このビルは、1996年に竣工し、耐震性能に優れたオフィスビルとしての機能を有しています。京王新線「初台」駅から直結しており、アクセスの便利さが非常に高い立地にあります。敷地面積は東京ドームに匹敵する広さを誇り、西新宿を代表する著名ビルの一つとして知られています。 ビルの主要な特徴の一つは、その大規模な基準階面積であり、600坪を超える広大なオフィス空間が提供されています。また、30基のエレベーターが完備されており、待ち時間を最小限に抑えることができます。さらに、各階に給排水施設が完備されているため、テストキッチンやカフェラウンジなど、多様な用途に応じた施設の設置が可能です。 東京オペラシティタワーは、新国立劇場と直結しており、文化施設としての側面も兼ね備えています。このため、イベントスペースを必要とする企業にとって、非常に魅力的な選択肢となります。ビル内には、フルオーケストラ対応のコンサートホール「タケミツメモリアル」や、アートギャラリーなど、芸術に触れることができる施設が充実しています。 オフィスフロアは、無柱の広大なスペースを提供しており、テナントのニーズに合わせた自由度の高いレイアウトが可能です。高い設備基準を満たし、OAフロアやセキュリティシステム、高性能な空調システムを完備しています。また、最上階には展望レストランがあり、西新宿の美しい眺望を楽しむことができます。 立地においては、新宿区の主要な大通りに面しており、車でのアクセスも容易です。周辺には、銀行、郵便局、飲食店など、ビジネスに必要な施設が揃っており、テナント企業の日常業務をサポートします。 東京オペラシティタワーは、その立地、設備、文化施設の充実度から、多様なビジネスシーンに対応可能な、優れたオフィスビルです。企業が求める機能性と快適性を兼ね備えた環境を提供し、テナント企業の成功を支援します。
新橋エリアに位置する「新橋I-Nビル」は、ビジネスの中心地として理想的な立地にあります。2006年に竣工されたこのビルは、新耐震基準に満たす構造で、地上9階建ての鉄骨造りです。基準階面積は約84坪と広々しており、各フロアは独立性が高いワンフロア・ワンテナント方式で、あらゆるビジネスニーズに応える設計となっています。 ビルのエントランスは24時間開放されており、9人乗りのエレベーターが2基設置されているため、待ち時間なくスムーズな移動が可能です。また、駐車場が5台分用意されており、機械警備や光ファイバーの完備など、セキュリティーとインフラも充実しています。 内装においては、天井高2,600mmで開放感があり、個別空調システムやOAフロアを導入しており、快適なオフィス環境を提供しています。男女別トイレにはウォシュレットが完備されており、細部にわたって配慮が行き届いています。 立地に関しては、都営地下鉄三田線「内幸町」駅から徒歩2分、JR「新橋」駅からは徒歩4分と、複数の鉄道路線が利用可能なアクセス抜群の場所にあります。日比谷通りに面しており、視認性も高いため、来客の案内もスムーズです。周辺には多様な飲食店が立ち並び、ランチタイムも充実。コンビニや銀行など生活に必要な施設も徒歩圏内に揃っています。 新しいビルであること、優れたアクセス、そして快適なオフィス環境を兼ね備えた「新橋I-Nビル」は、ビジネスの拠点として最適な選択肢です。明るくスタイリッシュなエントランスから始まる毎日は、従業員のモチベーションを高め、ビジネスの成功へと導くでしょう。ぜひ一度、内覧にいらしてください。
MS芝浦ビルは、東京都港区芝浦4-13-23に位置する、都心の利便性と快適なオフィス環境を兼ね備えた賃貸事務所ビルです。このビルは、JR山手線と京浜東北線が乗り入れる「田町」駅から徒歩8分、都営三田線・都営浅草線「三田」駅から徒歩9分の好立地にあり、アクセスの良さが特徴です。また、1988年に竣工し、2013年に共用部やトイレ、2014年に空調システムがリニューアルされたことで、設備面でも高い評価を得ています。 ビルの規模は地上13階建てで、基準階の面積は約593坪。ワンフロアが広々としており、特に高層階からの眺望は東京湾を望むことができ、開放的なオフィス環境を提供しています。内装に関しては、天井高2600mmと広々としており、OAフロアや光ファイバー対応の設備も完備されています。空調システムは1フロアを約30坪ごとに分けた18ゾーンの個別制御が可能で、働く人々の快適性を重視しています。 MS芝浦ビルのもう一つの魅力は、その立地です。芝浦エリアは、オフィスビルや高層マンションが立ち並び、近代的な都市風景を形成しています。ビルの周辺には飲食店が充実しており、ランチやアフター5の時間を楽しむことができます。さらに、ビル1階にはコンビニやカフェが入居しているため、日常の利便性が非常に高い点も見逃せません。 ビジネスの観点から見ても、MS芝浦ビルは多くの利点を持っています。郵便局や銀行ATMが1階にあるため、ビジネスに必要な手続きをビル内で済ませることができます。また、UPSの集荷ポストがあるため、国内外への送付業務もスムーズに行える点は、グローバルに活動する企業にとって大きなメリットと言えるでしょう。 このようにMS芝浦ビルは、その立地、設備、周辺環境ともにビジネスに最適な条件を備えています。快適なオフィスライフを送りたい企業や、効率的なビジネス運営を目指す企業にとって、最良の選択肢の一つと言えるでしょう。
三浦ビルは、東京都渋谷区千駄ヶ谷1丁目に位置する、1999年に新耐震基準で施工された現代的なオフィスビルです。この物件は、ビジネスの中心地である渋谷区において、最新の安全基準に適合したことで注目を集めています。渋谷区は多くの企業が集まるエリアで、イノベーションとクリエイティビティが交差する場所として知られています。そのため、三浦ビルはビジネスチャンスを追求する企業にとって最適な立地を提供しています。 物件の一際目立つ特徴は、ビル内に駐車場が完備されている点です。渋谷区のような都心部では、駐車スペースが非常に限られており、このような設備は貴重です。従業員や訪問客がビル内で直接駐車できることは、ビジネスの利便性を大きく向上させます。空き状況に関してはお問い合わせください。 また、エレベーターが1機設置されているため、建物内の移動もスムーズに行えます。このビルは、地震に対する安全性を重視した現代の建築基準に基づいて建てられており、テナントにとって安心して業務を行える環境が整っています。 立地に関して言えば、三浦ビルは交通アクセスが優れています。主要な公共交通機関へのアクセスが容易で、都内各地への移動が便利です。ビジネスの拠点としての立地条件は、企業にとって非常に重要な要素です。この地域の賃貸相場は、新耐震基準に対応したモダンな設備と安全性を求めるニーズの高まりに伴って、安定した価値を保っています。 三浦ビルは、その優れた設備、安全性、そして利便性の高い立地により、様々な業種の企業にとって魅力的なオフィス空間を提供しています。特に、新しいビジネスの展開や、安全性を重視する企業にとって、このビルは理想的な選択肢となるでしょう。ビジネスの成功には、良いオフィス環境が不可欠です。三浦ビルは、その点でテナントのニーズに応える物件であることをお約束します。
ビリーヴ新宿ビルは、東京都新宿区新宿1-26-9に位置する、オフィス用途に特化した賃貸物件です。1990年に竣工したこの鉄骨鉄筋コンクリート造の9階建てビルは、新耐震基準を満たしており、企業のオフィススペースとしての安全性と機能性を兼ね備えています。基準階貸室面積は43.11坪となっており、ワンフロア・ワンテナントの貸室は、使い勝手が良く、レイアウトの自由度が高いことが特徴です。 立地においては、ビリーヴ新宿ビルは靖国通り沿い、外苑西通りとの富久町西交差点に面しており、視認性が非常に高いことが大きな利点です。東京メトロ丸ノ内線の新宿御苑前駅からは徒歩7分圏内、また、東京メトロ副都心線・都営新宿線の新宿三丁目駅からは徒歩9分圏内と、アクセスの良好さはビジネスにおける大きなメリットと言えるでしょう。さらに、都営新宿線曙橋駅も徒歩10分圏内に位置しています。 ビリーヴ新宿ビルの外観は、鏡面ガラスを使用した美しいデザインが特徴的で、エントランスは石貼りで落ち着いた雰囲気を演出しています。エレベーターは11人乗りを1基設置しており、平日の開放時間は7:00~20:00までとなっています。セキュリティは機械警備システムによって24時間体制で管理されており、オフィスビルとしての安全性を確保しています。 設備面では、各フロアに給湯室と男女別トイレが設置されており、快適なオフィス環境を提供しています。窓面が多く、自然光が豊富に入るため、明るく開放感のある室内空間が魅力です。また、個別空調と光ケーブルの引込みも完備していますので、テナントのニーズに合わせた快適なオフィスライフをサポートします。 ビリーヴ新宿ビルの周辺環境も、オフィスにとって大変魅力的です。新宿御苑が徒歩圏内にあり、緑豊かな環境で仕事の合間のリフレッシュが可能です。また、飲食店やカフェが豊富に存在するため、ビジネスランチやアフター5の時間を楽しむことができます。新宿駅方面へは、ショッピングモールやデパートが多数あり、仕事終わりの買い物にも便利な立地です。 このように、ビリーヴ新宿ビルは立地、設備、安全性、周辺環境と、オフィスビルとして求められる要素を高いレベルで満たしています。ビジネスの拠点として最適な環境をお探しの企業にとって、ビリーヴ新宿ビルは最良の選択肢の一つであることは間違いありません。
恒倉ビルは、東京都千代田区神田神保町2-20-6に位置する、地上7階建てのオフィスビルであり、その外観はグレーのタイル張りで、エントランスには重厚感のある御影石が使用されていることが特徴です。このビルは、神保町駅A4出口から徒歩わずか2分の場所にあり、アクセスの良さはテナントにとって大きな利点です。神保町は、東京都内でも有数のビジネス街であり、周辺には飲食店、喫茶店が多く、ビジネスパーソンにとって非常に便利な立地条件を備えています。 恒倉ビル内の賃貸オフィスは、基準階約55坪のL字型で、その設計は利用者の作業効率を高めるよう考慮されています。また、1階と地下1階はセットで貸し出され、その広さは約63坪となっており、さまざまなビジネスニーズに対応する柔軟性を提供します。ビル内は機械式警備を採用しており、セキュリティ面でも安心してビジネスを行うことができます。 周辺環境としては、中小規模のオフィスビルが集まるエリアに位置しているため、落ち着いた雰囲気の中で業務に集中できる環境が整っています。また、近隣には公園や専門学校、大学が見られ、働く人々の生活やレクリエーションの場としても適しています。さらに、お弁当屋や文具と事務用品の店など、日常生活に必要な店舗も充実しており、ビジネスのみならず日常生活にも便利な立地と言えるでしょう。 恒倉ビルは、ビジネス街の中心に位置しながらも、静かで落ち着いた環境を提供するオフィスビルです。そのアクセスの良さ、柔軟な賃貸オフィスの提供、充実した周辺環境は、多様なビジネスニーズに応えることができます。これらの特徴は、ビルをテナントにとって魅力的な選択肢としており、ビジネスのさまざまな可能性を広げてくれるでしょう。
品川シーサイドキャナルタワーは、東京都品川区東品川4-12-6に所在し、2002年に竣工された地上22階建て(地下2階)の新耐震基準に則ったモダンなオフィスビルです。本物件は、りんかい線「品川シーサイド」駅から徒歩1分という、利便性の高い立地に位置しており、京浜急行本線「青物横丁」駅からも徒歩9分圏内でアクセス可能です。この立地は、都心への移動が容易でありながら、品川シーサイドフォレストという再開発エリアの一角にあり、ビジネスと生活の利便性を兼ね備えています。 基準階面積は約403坪となっており、広大な空間を提供しています。これは、大規模な企業や、成長段階にある企業にとって、柔軟なオフィスレイアウトを実現することが可能な点で魅力的です。内部は、セントラル空調・OAフロアを備え、高いオフィス環境を提供しています。また、天井高2,700mmとすることで、開放感ある室内空間を実現しています。 建物は、充実した設備を誇り、駐車場を257台分併設しており、ビル内にはエレベーターが13基設置されています。このような設備は、来訪者や従業員にとって大きな利便性をもたらします。さらに、制震構造を採用しており、万が一の地震に対しても安心の設計となっています。 周辺環境も魅力の一つで、オフィスビルが多く立ち並ぶエリア内にありながら、近隣にはイオンなどの大型ショッピングセンターや、飲食店、公園、産業技術大学院大学があり、ビジネスだけでなく生活面でも利便性が高いです。また、オーバルガーデンのような開放的なレストラン街があり、ランチタイムやアフター5の時間を楽しむための選択肢も豊富です。 品川シーサイドキャナルタワーは、その優れた立地、広大なオフィス空間、高い設備基準、そして周辺環境の充実により、企業の成長をサポートする理想的なオフィス環境を提供します。この物件は、ビジネスの今と未来のニーズを満たすために設計されており、企業にとって最適なオフィススペースとなるでしょう。
【万代芝ビルのご紹介】 万代芝ビルは、東京都港区芝2-9-3に位置する賃貸オフィスビルです。1989年に竣工したこのビルは、地上5階建てで、新耐震基準に適合しています。そのため、安心してご利用いただける構造となっています。基準階坪数は20坪未満となっており、各フロアは長方形に近い間取りで効率的なオフィスレイアウトが可能です。一つのフロアを一つのテナントが使用するワンフロアワンテナント形式で、広々とした空間をお楽しみいただけます。 設備面では、室内にトイレが設置され、空調は個別空調システムを採用しており、各テナントが快適な環境を個別に調整できます。また、ビルは24時間使用が可能で、光ファイバーへの対応も可能です。これにより、さまざまな業種の企業がテクノロジーを最大限利用しながら、柔軟な働き方を実現できます。 立地においては、芝公園駅から徒歩約5分、大門駅からは徒歩約10分の好位置にあります。芝公園駅では都営三田線が、大門駅では都営浅草線と都営大江戸線が利用でき、2駅で3路線が利用可能なため、東京都内はもちろん、都外へのアクセスも非常に便利です。さらに、浜松町駅も徒歩圏内にあり、山手線を利用した都心への移動も容易です。 周辺環境は、中小規模のオフィスビルが多く、静かなオフィス街としての雰囲気を持っています。飲食店やコンビニなどが徒歩圏内にあり、日常の利用に便利です。高層ビルが隣接していないため、採光も良好で、快適なオフィス環境を提供します。 万代芝ビルは、安心の耐震性、効率的なオフィスレイアウト、便利な立地、そして豊富な周辺施設といった点で、ビジネスの拠点として最適な環境を提供します。特に、テクノロジーを駆使したビジネスを展開する企業や、アクセスの良さを重視する企業にとって、理想的なオフィススペースと言えるでしょう。
ザイマックス八王子は、横山町にある 八王子駅から徒歩5分の駅近物件です。1993年に竣工しました。鉄骨鉄筋コンクリート造により耐震性があります。エレベーターは2基です。個別空調のため、管理しやすくコスト削減になります。高速通信向けの光ファイバーにより、ノンストレスです。駐車場があります。店舗向けの物件です。24時間利用が可能です。周辺に飲食店や専門店、コンビニがあり、急用時も困りません。大通りの交差点に位置するため、見通しの良い場所です。カーシェアリングやバス停に近いため、移動に便利なエリアです。
ハーモニータワーは、本町1丁目にある高層ビルです。中野坂上駅から徒歩1分の駅近物件です。1997年に竣工しました。鉄骨造により耐震性に優れています。床下にケーブルやコンセントを納められるOAフロアです。エレベーターが17基あります。個別空調付きです。機械式駐車場があります。クリニックとして利用できます。周辺には飲食店や専門店、三井住友銀行があります。近隣にはオフィスビルが立ち並んでいます。隣接した建物が少なく大通りに面しているため、見通しの良い場所です。駅前の商業地に位置するため、利用しやすいエリアです。
中央区日本橋浜町に位置する「浜町野島ビル」は、近代的な設備と優れた立地条件を備えた賃貸オフィスビルです。このビルは1991年に竣工し、耐震性能にも優れた7階建ての建築物として、多くの企業にとって魅力的なオフィス環境を提供しています。ここでは、浜町野島ビルの主要な特徴、立地、設備について詳述し、その独自の魅力を探ります。 【特徴】 浜町野島ビルの最大の特徴はその立地にあります。日本橋浜町3丁目に所在し、浜町駅から徒歩5分という駅近の好立地に加え、3駅以上の利用が可能であり、ビジネスアクセスに優れています。ビルのデザインは、黒いガラスで造られた半円形のエントランスが印象的で、白のパネル張りのファサードとのコントラストがモダンな雰囲気を演出しています。このようなデザインは、訪れるクライアントに対してプロフェッショナルな印象を与えます。 【立地】 中央区日本橋浜町という立地は、ビジネスの中心地としての利便性と、穏やかな周辺環境のバランスが取れている点が特筆されます。浜町駅や人形町駅からのアクセスが容易でありながら、ビル前面の路地は人通りが少なく、落ち着いた環境が広がっています。ただし、近くを首都高が走っているため、騒音のチェックも重要です。 【設備】 竣工は1991年となっておりますが、機械警備完備で、1機のエレベーターが設置されております。オフィスのレイアウトは四角い貸室で、レイアウトしやすいこともこのビルの魅力の一つです。耐震性にも配慮されているため、安心してビジネスを行うことが可能です。 【独自の魅力】 浜町野島ビルの独自の魅力は、そのスタイリッシュなデザイン、優れた立地、そしてビジネスに必要な設備が整っている点にあります。これらの要素は、企業がオフィスを選ぶ際の重要な判断基準となり得ます。特に、駅近でありながら静かな環境を併せ持つことは、都心でのビジネスを行う上で大きな利点と言えるでしょう。 このように、浜町野島ビルは、その立地、設備、デザインを通じて、ビジネスの成功を支える魅力的なオフィス環境を提供しています。これらの特性を理解し、各企業のニーズに合わせた最適なオフィス選びをサポートすることが重要です。
新宿区新宿1丁目に位置するカテリーナ柳通りビルは、1989年に竣工された、現代のビジネスニーズに適応する賃貸オフィスビルです。この9階建ての物件は、新耐震基準を満たす安全性と、機能性を兼ね備えた設計が特徴です。1機のエレベーターが設置されており、基準階約35坪のオフィススペースが提供されています。 カテリーナ柳通りビルの最大の魅力は、その立地にあります。東京メトロ丸の内線「新宿御苑前駅」からわずか徒歩2分、また「新宿3丁目駅」からもアクセス可能で、ビジネスの中心地新宿の利便性を享受できます。周辺には多様な飲食店やコンビニが立ち並び、オフィスで働く人々の日常生活をサポートする環境が整っています。 2019年には、水回りを中心にリニューアルが行われ、清潔で現代的なオフィス環境が提供されています。各オフィスには個別空調が設置されており、快適な室温管理が可能です。また、大きな柱のない開放的な空間設計は、レイアウトの自由度を高め、働きやすいオフィス環境を実現します。 セキュリティ面では、機械警備システムを導入しており、テナントの安全を確保しています。加えて、1階には飲食店が入居しており、ビル利用者の利便性をさらに高めています。 カテリーナ柳通りビルは、新耐震基準に適合した安全な建物でありながら、新宿というビジネスの中心地に位置する立地の良さ、そしてリニューアルされた快適なオフィス環境を低めの単価で提供している点が大きな魅力です。これらの特性は、新宿でビジネスを展開しようとする企業にとって、大きな利点となるでしょう。カテリーナ柳通りビルは、新宿でのオフィス探しに最適な選択肢の一つです。
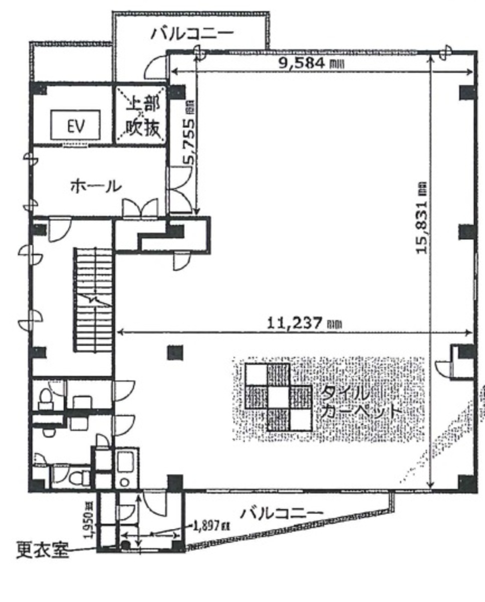
新富町駅から徒歩4分、築地駅から徒歩5分、東銀座駅から徒歩7分という、東京都心のビジネスエリアに位置する本物件は、高いアクセス性を誇ります。その立地の利便性は、ビジネスの機動性を大幅に向上させる可能性を秘めています。 本ビルの基準階面積は約30坪となっており、L字型の間取りは余計な柱がなく、空間利用の効率性を高めます。これにより、テナントにとってはオフィスレイアウトを自由に設計できる柔軟性が提供されます。また、天井高は2.6メートルとなっており、大きな窓面による自然光の導入は、作業空間に明るく開放的な雰囲気を与えます。これは、オフィスで過ごす従業員の心理的な満足度と生産性の向上に寄与することが期待できます。 安全性においても本物件は優れています。機械警備とオートロックのシステムを導入しており、テナント企業の貴重な資産と情報を守るためのセキュリティは万全です。さらに、中央区役所や築地警察署が近隣に位置しており、業務上での緊急時にも迅速な対応が期待できる地理的メリットがあります。 立地の利便性、空間の自由度、安全性の三つの要素は、ビジネスの成長と発展をサポートするための重要な基盤を形成します。本ビルは、これらの要素をバランス良く兼ね備えた物件として、様々な業種の企業にとって魅力的な選択肢となるでしょう。特に、クリエイティブ産業やスタートアップ企業など、柔軟な発想と高い機動力が求められるビジネスモデルを持つ企業にとって、その価値は計り知れないものがあります。 このように、本物件はその立地、設備、安全性の高さを活かして、テナント企業のビジネスを力強くサポートします。都心でのビジネス展開を考える企業にとって、確かな選択となることでしょう。
ドヒビルは、東京都渋谷区神宮前1丁目に位置する、ビジネスの中心地にふさわしい洗練されたオフィスビルです。この地域は、渋谷と原宿の間に位置し、ファッション、文化、そしてビジネスの融合点として知られています。ビルは基準階面積が261.816坪という大型で、企業が成長するための十分なスペースを提供しています。 ドヒビルの特徴として、まずその立地の良さが挙げられます。渋谷や原宿といった東京の主要なビジネスとエンターテイメントの地区へのアクセスが容易であり、多くの企業にとって魅力的な場所となっています。加えて、周辺には多様な飲食店やショッピング施設が充実しており、ビジネスの合間にリフレッシュするのにも理想的な環境が整っています。 ビルの設備面にも注目です。エレベーターは1機しかありませんが、このビルはその効率的な管理と運用によって、ビル内の移動がスムーズであることが特徴です。また、最新のセキュリティシステムが導入されており、入居企業とその従業員に安心と安全を提供します。さらに、ビルは洗練されたデザインで、企業のブランディングにも寄与する外観をしています。 このビルの独自の魅力は、ビジネスにおける利点としても大きなものがあります。立地の良さは、クライアントやパートナー企業とのアクセスのしやすさを意味し、ビジネスチャンスを広げる可能性があります。また、充実した設備は、従業員の働きやすさを向上させ、結果として企業の生産性の向上にもつながります。 最後に、ドヒビルは、東京の中心にあるビジネスの地に立地しているにもかかわらず、落ち着いた環境を提供しています。このバランスの取れた特性は、新しいオフィスを求める多くの企業にとって、最適な選択肢であること間違いありません。 総じて、ドヒビルは、その立地、設備、そしてビジネスの可能性を最大限に引き出す設計によって、東京でビジネスを展開する企業にとって理想的なオフィス空間を提供しています。
私たちが今回ご紹介するのは、千代田区神田三崎町に位置する「グラン水道橋」、かつての小林ビルです。このオフィスビルは、1986年に竣工し、賃貸オフィス市場において確固たる位置を築いています。5階建てで、基準階は約27坪となっており、中小企業やスタートアップ企業にとって理想的なサイズを提供しています。ビル内には1基のエレベーターが設置されており、建物の利便性を高めています。 立地においては、この物件は水道橋西通りから少し入った場所にあり、落ち着いたオフィスエリアに位置しています。この地域は、大通りに沿って多くの飲食店が集まっており、ビジネスランチやアフター5の食事には困りません。また、最寄りの水道橋駅からのアクセスが良好で、九段下駅からのアクセスも可能です。これにより、都内各所からのアクセスの良さがビジネスにおける大きな利点となっています。 このビルの設備面では、24時間使用可能な点が特に魅力的です。これにより、従業員の働き方の多様性に柔軟に対応し、ライフスタイルに合わせた効率的なビジネス運営が可能となります。また、基準階約27坪の広さは、オフィスのレイアウトを自由に設計することができるため、企業のアイデンティティを反映したオフィス環境の構築に最適です。 総じて、グラン水道橋は、その立地、設備、そしてサイズ感から、中小企業やスタートアップ企業にとって理想的なオフィス空間を提供しています。ビジネスの成長を見据え、都心におけるアクセスの良さと働きやすい環境を求める企業にとって、グラン水道橋は最適な選択肢の一つでしょう。
東京の中央区入船2丁目に位置するHKビルは、ビジネス環境において理想的なオプションを提供する賃貸オフィスビルです。1988年に竣工したこの物件は、新耐震基準に則って建てられ、安全性に優れています。地上7階建てであるこのビルは、鉄骨鉄筋コンクリート造りで、基準階は約37坪の広さがあります。 立地については、東京メトロ有楽町線の新富町駅から徒歩4分という駅近の利便性を誇ります。また、JR京葉線・東京メトロ日比谷線の八丁堀駅や、東京メトロ日比谷線の築地駅からも徒歩圏内にあるため、複数路線のアクセスが可能です。このように、交通の便が良いため、ビジネスの拠点としての機能を最大限に発揮します。 ビル内の設備には細心の注意が払われています。1基のエレベーターが設置されており、ビル内の移動をスムーズにします。また、男女別トイレ、個別空調システム、機械警備などの基本設備に加え、バスルームが設置されている区画もあるなど、テナントのニーズに合わせた多様なオプションが用意されています。室内は2面採光で明るく、快適なオフィス環境を実現しています。 周辺環境も魅力の一つです。オフィスビルが立ち並ぶ一方で、緑豊かな公園や住宅があり、落ち着いた雰囲気の中でビジネスを行うことができます。また、近隣には飲食店やコンビニ、銀行などが揃っており、日常の利便性も高いです。特に、新大橋通りに面しているため、バスでのアクセスも良好で、東京駅へのアクセスも容易です。これらの点は、従業員の働きやすさやビジネスの効率化にも寄与するでしょう。 総合すると、HKビルは立地の良さ、充実した設備、そして快適な周辺環境を兼ね備えた賃貸オフィスビルです。これらの特徴は、様々な業種の企業にとって魅力的なオプションとなり得ます。ビジネスの拠点としての利用だけでなく、従業員の満足度を高める環境を提供することも可能です。HKビルは、これからも多くの企業にとって最適な選択肢の一つとなるでしょう。
青山通りに面した魅力溢れる貸事務所、クローバー青山・ONEビルの世界へようこそ。2008年に竣工されたこの物件は、最新の耐震基準に準拠しており、安全性と快適性を兼ね備えた築浅のオフィスビルです。青山一丁目駅からわずか徒歩1分という抜群の立地に加え、三つの駅が利用可能な好立地は、このビルがビジネスの中心地として絶好の位置にあることを証明しています。 外観は、通行人の目を引くガラスウォールで構成され、都市の景観に新たな息吹をもたらしています。そのデザインは、現代性と洗練された美しさを象徴しており、企業のイメージアップにも寄与することでしょう。また、大きな窓からは自然光がたっぷりと室内に流れ込み、作業空間を明るく快適に保ちます。 このビルは、OAフロアを完備し、天井も高く設計されているため、広々とした空間での仕事が可能です。これは、クリエイティブな作業や集中力を要する業務を行うにあたり、大いに役立つことでしょう。また、24時間利用可能で機械警備も完備されており、セキュリティ面でも安心して業務を行うことができます。 北青山1丁目(港区)に所在し、SOHOや事務所利用が相談可能なこの物件は、多様なビジネスニーズに対応できる柔軟性を持っています。ビル内には駐車場も設けられており、空き状況に関してはお問い合わせいただくことが可能です。エレベーターは1機設置されており、スムーズな移動をサポートします。 クローバー青山・ONEビルは、その立地、設備、安全性を兼ね備えたハイグレードなオフィスビルとして、ビジネスの拠点となる場所をお探しの企業に最適な選択肢です。このビルでのオフィスライフは、従業員にとっても、訪れるクライアントにとっても、快適で印象深いものとなるでしょう。クローバー青山・ONEビルで、あなたのビジネスを次のレベルへと導いてみませんか?
エディフィチオトーコービルは、東京都港区東新橋2丁目に位置し、2003年に竣工された、新耐震基準に則って建設された賃貸オフィスビルです。このビルは、汐留シオサイトの5区イタリア街にあり、その地区全体がヨーロッパの町並みを模していることで知られています。この地区の独特の雰囲気は、テレビドラマや映画のロケ地、雑誌の写真撮影などにも頻繁に利用され、ビジネス街でありながらも観光地としての人気も高いです。 エディフィチオトーコービルの外観は、イタリア街にふさわしく洋館を思わせるデザインで、淡いオレンジと黄色の外壁が明るい印象を与えます。ビルのエントランスやエレベーターホールには絵画や鉢植えが置かれ、上品な雰囲気を醸し出しています。内部は、採光に優れ、無柱であるため、オフィスレイアウトの自由度が高く、企業のニーズに合わせたオフィス環境の構築が可能です。また、個別空調、機械警備、駐車場といった設備も整っており、ビル内には2基のエレベーターが設置されているため、待ち時間を最小限に抑えることができます。 立地においては、エディフィチオトーコービルは、都営地下鉄大江戸線の汐留駅、ゆりかもめの汐留駅、JR各線の新橋駅、東京メトロ銀座線の新橋駅、地下鉄浅草線の新橋駅から徒歩7分、さらに都営地下鉄大江戸線の御成門駅からは徒歩9分という、複数の路線が利用可能なアクセスの良さが特徴です。この立地は、通勤や来客にとっても非常に便利であり、ビジネスの機会を最大限に引き出すことができます。 さらに、イタリア街内には様々な商業施設があり、食事や買い物にも便利な環境です。静かで落ち着いた雰囲気の中で、業務に必要なさまざまなサービスを身近に利用することができるため、ビジネスの効率化にも寄与します。 エディフィチオトーコービルは、その優れた立地、設備、そして環境により、企業にとって魅力的なオフィス空間を提供しています。このビルは、ビジネスの拠点としてだけでなく、働く人々にとっても快適で刺激的な環境を提供し、企業の価値向上に貢献することでしょう。