※このサイトに記載がある賃貸条件は、敷金・保証金などの預かり金を除き、別途消費税がかかります。
物件情報
設備詳細
| 空調 | 個別空調 |
|---|---|
| トイレ | - |
| 床仕様 | - |
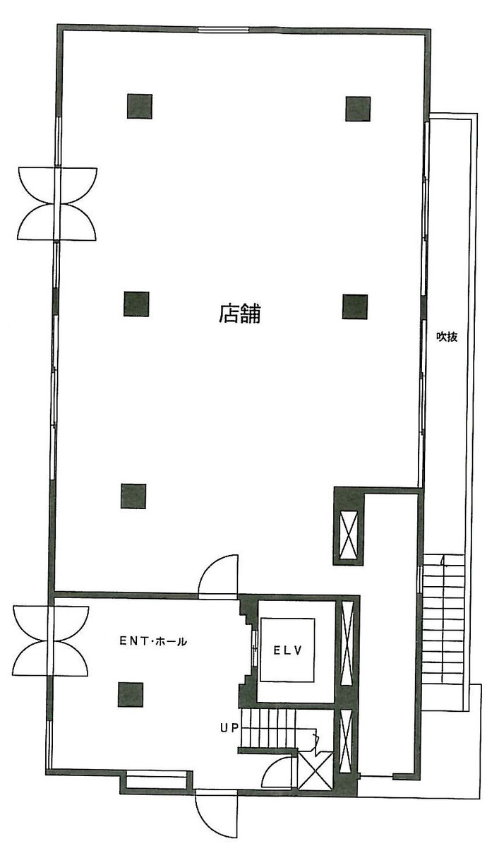
| エレベータ | 1 基 |
| 駐車場設備 | - |
| その他 | 新耐震基準 / 機械警備 |
AK-1ビルの賃貸オフィス・事務所に関するお問い合わせ
AK-1ビルについて
目黒区青葉台に位置するAK-1ビルは、現代のビジネスニーズに応える洗練されたオフィス空間を提供します。このビルは目黒駅から徒歩わずか8分という利便性の高い立地にあり、中目黒駅と代官山駅も近接しており、東京の主要エリアへのアクセスが容易です。この地域は、ビジネスと文化が交錯する活気あるエリアであり、多くのクリエイティブ産業が集まる場所でもあります。 AK-1ビルは、特にデザイン関連の企業やアパレル業界のテナントに最適な環境を提供しています。ビル内には大きな窓が設けられており、自然光が豊富に室内に流れ込みます。これにより、作業空間は明るく開放的で、クリエイティブな思考を刺激する理想的な環境を形成しています。また、1台のエレベーターが設置されており、スムーズな移動が可能です。 ビルの設計には、モダニズムの影響が色濃く反映されており、シンプルで機能的ながらもスタイリッシュな外観が魅力です。内装には質の高い素材が使われており、洗練された印象を与えるとともに、耐久性とメンテナンスの容易さも考慮されています。 周辺環境もビルの魅力の一つです。多様な飲食店、カフェ、ショップが立ち並び、ビジネスアワー後のリラクゼーションやインフォーマルな会議にも最適な場所が豊富にあります。また、エリア内には多くのアートギャラリーやデザインスタジオも点在しており、クリエイティブな刺激を常に受けることができる環境です。 AK-1ビルは、これらの設備と立地条件を活かして、テナント企業がその業界内で一層の成長と成功を遂げるための基盤を提供します。ビル内で働くすべての人々が快適で、生産性の高い環境で日々を送ることができるよう配慮されています。このビルは、ただのオフィススペース以上の価値を提供し、テナントの皆様の事業が次のステージへと進むための場として最適な選択肢です。
AK-1ビルのこだわり
自分で探すより問い合わせる方が早いことがあります
WEB非公開物件があるから
オーナー様のご希望により「WEBでは非公開」にしている物件があります。 それらはWEBでいくら検索しても見つかりません。 先ずは条件などお知らせ頂けましたら非公開物件含め ピッタリのオフィスをご提案させて頂きます。 無理なお勧めはしておりませんので、お気軽にお問い合わせください。
対面でのご相談も受け付けております
ご来店も歓迎です
オフィス移転は社内・社外ともに非公開に行われることが殆どです。そのためアットオフィスでは、基本的に訪問によるコンサルティングを行っておりますが、ご来店の相談も歓迎です。お一人おひとりに親身にご対応させて頂きたい為、要予約とさせて頂いております。ご来店の際は先ずは下記よりご予約下さい。
募集終了のテナント区画
| 階数 | 坪数 | 賃料 + 共益費 | 敷金/礼金敷金 礼金 | 検討 |
|---|---|---|---|---|
| 1階 | 36.53坪 (120.76m²) | 募集終了 | - | - |
| 1階 | 10.16坪 (33.58m²) | 募集終了 | - | - |
| 2階 | 37.84坪 (125.1m²) | 募集終了 | - | - |
| 4階 | 19.4坪 (64.14m²) | 募集終了 | - | - |
読込中...
近くのエリアで探してみる
目黒/中目黒/青葉台エリアでAK-1ビルに似た条件の物件
読込中...
| 取扱様態 | 仲介 |
|---|---|
| 取扱会社 | 株式会社 アットオフィス |