アトム麹町タワーの賃料条件
| 階数 | 坪数 | 賃料 + 共益費 | 敷金/礼金敷金 礼金 | 検討 |
|---|---|---|---|---|
| 4階 | 42.24坪 (139.64m²) | お問合せ下さい (坪:-) | 12ヶ月 無12ヶ月/無 | |
| 7階 | 42.24坪 (139.64m²) | お問合せ下さい (坪:-) | 12ヶ月 無12ヶ月/無 |
※このサイトに記載がある賃貸条件は、敷金・保証金などの預かり金を除き、別途消費税がかかります。
物件情報
設備詳細
| 空調 | 個別空調 |
|---|---|
| トイレ | 男女別トイレ / 男女別トイレ室内 |
| 床仕様 | OA対応床(フリーアクセス) |
| エレベータ | 1 基 / エレベーター有 |
| 駐車場設備 | 機械式駐車場 / 敷地内駐車場 |
| その他 | 機械警備 / 24時間利用可 / 天井高2600mm以上 / 新耐震基準 / 居抜き / オフィス居抜き特集 |
アトム麹町タワーの賃貸オフィス・事務所に関するお問い合わせ
アトム麹町タワーについて
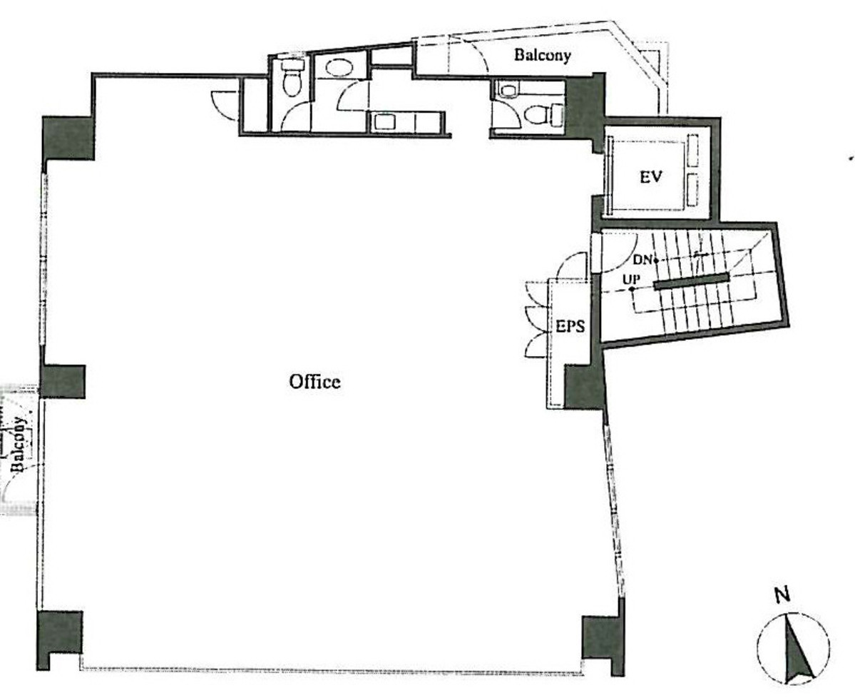
アトム麹町タワー、東京都千代田区麹町に位置するこのオフィスビルは、現代のビジネスニーズに応える設備と立地を兼ね備え、2006年の竣工以来、多くの企業にとって魅力的な選択肢となっています。その最大の特徴は、東京メトロ有楽町線「麹町」駅から徒歩3分、JR中央線・総武線、東京メトロ丸ノ内線「四ツ谷」駅から徒歩6分という抜群のアクセスです。この立地は、従業員やクライアントにとって最適な利便性を提供し、ビジネスの機会を広げることでしょう。 アトム麹町タワーは12階建てで、基準階面積は約42坪。その間取りは正方形に近く、無柱空間であるためレイアウト効率が非常に高いという利点があります。また、新宿通り沿いに面しており、大通りに面した広大な窓からは充分な自然光が入ることで、オフィス内は明るく開放的な空間となっています。天井高は2.7mとゆとりがあり、快適なワーキングスペースを提供します。 ビルの設備面では、個別空調システム、OAフロア、機械式駐車場、そして駐輪場が完備され、24時間利用可能なセキュリティ体制も整っています。これらは、現代のビジネス環境において求められる機能を網羅しており、企業の運営をサポートする十分な設備が揃っています。 周辺環境もまた、アトム麹町タワーの魅力の一つです。ビルの近くには、銀行、郵便局、コンビニエンスストアがあり、日々の業務に必要なサービスを手軽に利用できます。また、皇居や最高裁判所が近くにあり、治安が良く閑静な街並みは、ビジネスの拠点として理想的な環境を提供します。 アトム麹町タワーは、ビジネスの可能性を広げる立地、効率的なオフィスレイアウト、充実した設備、そして落ち着いた周辺環境と、企業が求めるすべてを持ち合わせています。これらの特徴は、新しいオフィスを探している企業にとって、アトム麹町タワーを魅力的な選択肢の一つにしています。
自分で探すより問い合わせる方が早いことがあります
WEB非公開物件があるから
オーナー様のご希望により「WEBでは非公開」にしている物件があります。 それらはWEBでいくら検索しても見つかりません。 先ずは条件などお知らせ頂けましたら非公開物件含め ピッタリのオフィスをご提案させて頂きます。 無理なお勧めはしておりませんので、お気軽にお問い合わせください。
対面でのご相談も受け付けております
ご来店も歓迎です
オフィス移転は社内・社外ともに非公開に行われることが殆どです。そのためアットオフィスでは、基本的に訪問によるコンサルティングを行っておりますが、ご来店の相談も歓迎です。お一人おひとりに親身にご対応させて頂きたい為、要予約とさせて頂いております。ご来店の際は先ずは下記よりご予約下さい。
募集終了のテナント区画
| 階数 | 坪数 | 賃料 + 共益費 | 敷金/礼金敷金 礼金 | 検討 |
|---|---|---|---|---|
| 1階 | 30坪 (99.17m²) | 募集終了 | - | - |
| 2階 | 42.24坪 (139.64m²) | 募集終了 | - | - |
| 3階 | 42.24坪 (139.64m²) | 募集終了 | - | - |
| 5階 | 42.24坪 (139.62m²) | 募集終了 | - | - |
| 6階 | 42.24坪 (139.64m²) | 募集終了 | - | - |
| 8階 | 42.24坪 (139.64m²) | 募集終了 | - | - |
| 9階 | 42.24坪 (139.64m²) | 募集終了 | - | - |
| 10階 | 42.24坪 (139.64m²) | 募集終了 | - | - |
| 11階 | 42.24坪 (139.64m²) | 募集終了 | - | - |
| 12階 | 42.24坪 (139.64m²) | 募集終了 | - | - |
読込中...
番町/麹町/平河町エリアでアトム麹町タワーに似た条件の物件
読込中...
| 取扱様態 | 仲介 |
|---|---|
| 取扱会社 | 株式会社 アットオフィス |