BBNo.23階の賃貸情報
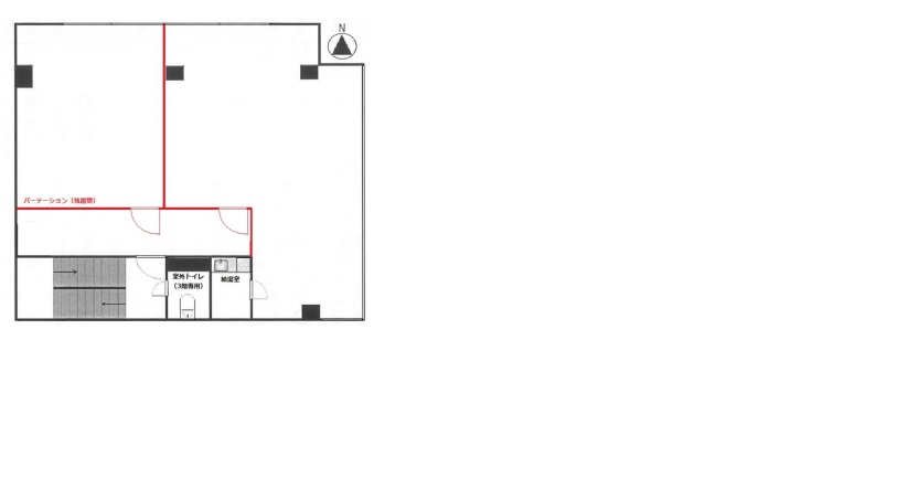
24.79 坪 (81.98m²)
180,000円 (坪:7,260 円)
※このサイトに記載がある賃貸条件は、敷金・保証金などの預かり金を除き、別途消費税がかかります。
BBNo.2の建物概要
設備詳細
| 空調 | 個別空調 |
|---|---|
| トイレ | 男女共用トイレ・室外 |
| 床仕様 | - |
| エレベータ | 1 基 |
| 駐車場設備 | - |
| その他 | 新耐震基準 / 東京賃料が坪11000円以下 |
BBNo.23階の賃貸オフィス・事務所に関するお問い合わせ
BBNo.2について
BBNo.2は、墨田区両国3丁目に位置する地上4階建ての事業用物件です。総武線「両国駅」まで徒歩4分、東京都大江戸線「両国駅」へも徒歩4分、また総武・中央緩行線「両国駅」も徒歩5分で利用可能な立地となっています。複数路線の駅がいずれも徒歩5分圏内にあり、都内各所への移動や周辺エリアとの行き来に対応しやすい環境です。住所は墨田区両国3丁目で、周辺にはビジネスや生活に関わる施設も点在しています。地上4階建ての構造は、多様な規模や用途のオフィスや事務所の設置に適しており、フロアごとにレイアウトを柔軟に検討することも可能です。新耐震基準を満たしているため、建物としての安全性にも配慮されています。詳細はお問い合わせください。
自分で探すより問い合わせる方が早いことがあります
WEB非公開物件があるから
オーナー様のご希望により「WEBでは非公開」にしている物件があります。 それらはWEBでいくら検索しても見つかりません。 先ずは条件などお知らせ頂けましたら非公開物件含め ピッタリのオフィスをご提案させて頂きます。 無理なお勧めはしておりませんので、お気軽にお問い合わせください。
対面でのご相談も受け付けております
ご来店も歓迎です
オフィス移転は社内・社外ともに非公開に行われることが殆どです。そのためアットオフィスでは、基本的に訪問によるコンサルティングを行っておりますが、ご来店の相談も歓迎です。お一人おひとりに親身にご対応させて頂きたい為、要予約とさせて頂いております。ご来店の際は先ずは下記よりご予約下さい。
墨田区エリアでBBNo.2に似た条件の物件
読込中...
BBNo.2と同じ最寄駅の物件
読込中...
| 取扱様態 | 仲介 |
|---|---|
| 取扱会社 | 株式会社 アットオフィス |