ユニゾ蛎殻町北島ビルは、東京都中央区日本橋蛎殻町1丁目に位置する、ビジネスシーンに最適化された賃貸オフィスビルです。1992年に竣工し、新耐震基準に則って建設されたこのビルは、地上5階・地下2階建ての堅牢な構造を誇ります。ビルの外観はグレーの御影石で仕上げられ、重厚感と落ち着きを演出しています。エントランスおよび共用部分は大理石調でデザインされ、高級感あふれるビジネス空間を提供しています。 立地において、ユニゾ蛎殻町北島ビルは抜群のアクセスを誇ります。「人形町」駅から徒歩3分、「水天宮前」駅から徒歩4分という駅近物件であり、茅場町駅も徒歩圏内です。3つの駅で4路線(浅草線、日比谷線、半蔵門線、東西線)が利用可能で、ビジネスの利便性が非常に高いことが特徴です。周辺には飲食店が豊富にあり、ビジネスランチやアフター5の利用にも便利です。また、ローソン、まいばすけっと、日本橋小網町郵便局といった生活に必要な施設も徒歩圏内に揃っており、オフィスワーカーの日常生活を支えます。 設備面においても、ユニゾ蛎殻町北島ビルは高い水準を備えています。個別空調システムにより、各テナントの快適な室温管理を可能とし、男女別のトイレ等、清潔で使いやすい共用設備を完備しています。セキュリティ面では、機械警備システムを導入しており、テナント企業の安全を確保します。また、ビル内に駐車場があり、車での通勤やビジネス利用にも対応しています。 ビルのレイアウトは、細長い変形のL字型をしており、最大ワンフロアーは約100坪の広さがあります。この形状はレイアウトの自由度が高く、企業のニーズに応じたオフィス空間のカスタマイズが可能です。上階は良好な採光が期待でき、開放感ある執務空間を提供します。 ユニゾ蛎殻町北島ビルは、耐震性能、立地の便利さ、高品質な設備、そして柔軟なレイアウト可能性を兼ね備え、様々なビジネスシーンでの活躍が期待できる賃貸オフィスビルです。これらの特徴は、テナント企業が快適かつ効率的なビジネス環境を構築するのに最適です。ユニゾ蛎殻町北島ビルは、貴社の新たなビジネス拠点として、最高の選択肢となることでしょう。
森下駅の賃貸オフィス・賃貸事務所
検索結果 225棟317フロア
東京都中央区に位置するイクソン日本橋ビルは、1987年に竣工された新耐震基準に準拠したオフィスビルであり、ビジネスの中心地としての立地は、企業活動にとって理想的な環境を提供します。このビルは東日本橋2-27-24に所在し、馬喰町駅および浅草橋駅から徒歩4分というアクセスの良さが特徴です。交通の便に優れたこの立地は、従業員や顧客の移動をスムーズにし、ビジネスの機動性を高める要素となり得ます。 ビル自体は、内部の空間構成に独特の特徴を持つことがあります。窓面が多く、アーチ状の室内デザインを採用しているため、自然光が十分に室内に入り込む設計となっております。これにより、明るく開放感のあるオフィス環境を実現し、労働生産性の向上にも寄与することが期待されます。一方で、レイアウトには工夫が必要ですが、これを機に新しいオフィス環境の創造を図ることも可能です。 設備面では、ビル内に駐車場を完備しており、来客用や従業員用の駐車スペースとしての利便性を提供します。また、エレベーターは1機設置されておりますが、これはビルの利用効率を高め、円滑な人の移動を支援します。ビルの安全性においては、1987年の新耐震基準施工後に竣工しているため、地震などの自然災害時においても安心して利用できる構造となっています。 イクソン日本橋ビルは、その立地、設備、デザインの面で、多くのビジネスのニーズに応えることができるオフィスビルです。特に、アクセスの良さと明るいオフィス環境は、企業のイメージアップにも寄与し得る要素です。これらの特性を活かし、効率的かつ快適なビジネス環境を求める企業にとって、イクソン日本橋ビルは魅力的な選択肢となるでしょう。
東京の中心、中央区日本橋浜町に位置する日本橋中央ビルは、ビジネスと生活の両方に最適な環境を提供しています。このビルは地上11階、地下1階建てで、外壁の茶色が特徴的な建物です。1階から5階までが貸事務所となっており、その上層階は「メゾン日本橋」という住居スペースになっているため、オフィスと居住の両方で利用されています。 基準階の貸室は100坪を超える広さで、ほとんどの階が複数のテナントによる分割区画で構成されています。これにより、大小さまざまなビジネスに対応する柔軟性を持っています。また、ビル内には2基のエレベーターが設置されており、快適な移動をサポートします。1階にはカフェも入っており、ビジネスの合間にリフレッシュする場所としても最適です。 セキュリティ面では、機械式警備を採用しており、テナント企業の安全をしっかりと守ります。また、ビル内には駐車場も完備されており、車でのアクセスにも便利です。 立地においても、このビルは非常に魅力的です。金座通りと浜町緑道が交差する久松警察署前交差点に面しており、久松警察署や日本橋消防署人形町出張所が近くにあるため、安全性が高いという利点があります。清洲橋通りに出ると、コンビニや銀行のATM、さらには歴史ある明治座など、日常生活に必要な施設が充実しています。 ランチスポットとしても周辺に多くの選択肢があり、歩いて3分の人形町駅周辺には多種多様な飲食店が揃っています。また、浜町駅をはじめとする複数の駅が徒歩10分圏内にあり、東京都内へのアクセスも非常に便利です。 このように、日本橋中央ビルは、その立地の良さ、充実した設備、そしてビジネスと居住の両方に対応した柔軟性を兼ね備え、ビジネスマンにとって理想的な環境を提供しています。働く人々のライフスタイルを豊かにするこのビルは、あらゆる企業にとって魅力的な選択肢となるでしょう。
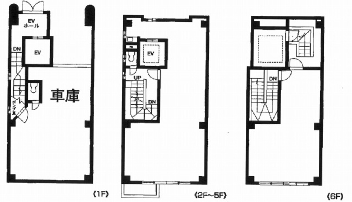
原ビルへようこそ。この度は、中央区日本橋人形町に位置する、ビジネスの中心地に相応しい高機能オフィスビルのご紹介を致します。1981年に竣工された原ビルは、地上5階・地下1階建ての耐震構造を誇ります。このビルは、最先端のビジネスニーズに対応するための設備と、戦略的な立地により、企業活動をサポートする理想的な環境を提供します。 まず、原ビルの立地の利点を強調します。人形町駅からわずか徒歩1分という抜群のアクセス性を誇るだけでなく、3線利用可能という交通の便の良さは、従業員や来訪者にとって大きなメリットです。また、水天宮前駅へも徒歩5分と近く、ビジネスの機会を広げる上で絶好のロケーションにあります。 ビル自体の設備においても、原ビルは高いスペックを誇ります。基準階の貸事務所は約32坪と広々としており、タイルカーペットや火災報知器、ガス給湯設備など、働く環境を快適に保つための設備が整っています。また、エレベーターが1機備えられており、ビル全体の利便性と効率性を高めています。 外観においては、アーチ型の高い天井が特徴的な外壁を持ち、レトロでありながらも洗練された雰囲気を演出しています。エントランスは横路地に面しており、訪れる人々に安らぎを提供します。1階表側には600円定食のお店が入居しており、周囲にはコンビニやカフェ、豊富な飲食店が立ち並び、ビジネスの合間の息抜きにも最適です。また、江戸情緒が色濃く残るこの地域は、ランチタイムや仕事帰りの食事にもバリエーション豊かな選択肢を提供します。 ビル管理もしっかりしており、入居企業が安心してビジネスに専念できる環境が整っています。郵便局へのアクセスも良好で、日常の業務運営に必要なサポート機能も充実しています。 原ビルは、立地、設備、周辺環境の3つの面でビジネスの成功をサポートする理想的なオフィススペースを提供します。ビジネスの拠点として、あなたの企業が新たな一歩を踏み出すための最適な環境を、ぜひ原ビルで実現してください。
初音森ビルは、東京都中央区東日本橋2-27-9に位置する、地上13階、地下1階建てのオフィスビルです。1974年の新耐震基準制定以前に竣工されたこの物件は、2011年に外装改修工事を受け、現代のビジネス環境に適した設備とデザインでリニューアルされました。本ビルは、基準階約60坪の賃貸事務所スペースを提供しており、無柱の間取りにより、テナントのニーズに応じたレイアウト変更の自由度が高いことが特徴です。 立地においては、初音森ビルは非常に優れています。浅草橋駅から徒歩3分の距離にあり、東日本橋駅、馬喰町駅、馬喰横山駅が至近に位置しており、4つの駅が徒歩圏内にあるため、複数の路線が利用可能です。これにより、東京都内はもちろん、関東圏外へのアクセスも容易であり、ビジネスの機動性を高める立地条件を備えています。 設備面では、ビル内に月極駐車場を備えており、都心部での駐車スペースの確保が可能です。また、ビルは24時間利用が可能で、2基のエレベーターが設置されており、快適なオフィス環境をサポートします。加えて、オフィス内は個別空調システムを採用しており、各テナントが自由に温度管理ができ、作業環境を最適化できます。トイレは男女別で、利便性とプライバシーを重視しています。 ビルの周辺環境も魅力の一つです。飲食店が充実しているため、ビジネスランチやアフター5の利用に便利です。また、隣接する郵便局や、近隣の銀行ATM、コンビニ等の生活関連施設が充実しており、日々の業務に必要なサービスが身近に揃っています。 初音森ビルは、その利便性の高い立地、柔軟なレイアウトが可能なオフィススペース、充実した設備、そして周辺環境の良さを兼ね備え、多様なビジネスニーズに応える賃貸オフィスビルです。ビジネスの拠点として、または新たな事業展開の場として、高いポテンシャルを秘めたこの物件は、企業の成長を支える環境を提供します。
誠文堂ビルは、その立地と設備において、ビジネスの拠点として最適なオフィス賃貸ビルです。このビルは、日本橋人形町1丁目、中央区の経済的および歴史的文脈に位置しており、東京の中心部におけるビジネス活動の中心地にふさわしい環境を提供します。基準階面積が131.109坪の大型ビルであり、広大なスペースを有することで、企業が必要とする柔軟性と成長の機会を提供します。 立地について詳しく見ていきましょう。日本橋人形町は、東京の伝統と現代が融合する地区であり、ビジネスだけでなく、文化や食の面でも魅力に溢れています。多くの歴史的な建物と現代的な施設が共存し、ビジネスに必要なインフラが整っています。交通アクセスも良好で、都内各地への移動が容易であるため、ビジネスの機会を最大限に活用することができます。 設備面では、誠文堂ビルは最新のビジネスニーズに対応するための機能を備えています。エレベーターは1機設置されており、スムーズな移動をサポートします。ビル全体が快適で効率的なワークスペースを提供するよう設計されており、働く人々の生産性と満足度の向上に貢献します。また、安全性にも配慮された構造となっており、企業が安心して業務を行える環境が整っています。 誠文堂ビルの独自の魅力は、その歴史的な立地と現代的な設備が融合している点にあります。伝統的なビジネス地区の中心にありながら、最新のビジネス要求に応える設計となっているため、企業は過去と未来をつなぐビジネスの場として最適な環境を手に入れることができます。また、広大なオフィス空間は、企業が成長する過程での変化にも柔軟に対応できるため、長期的なビジネス展開にも最適です。 このビルは、企業が求める立地、設備、空間を兼ね備えており、ビジネスの成功に不可欠な要素を全て提供します。誠文堂ビルで、あなたのビジネスの未来を拓きましょう。
塚田ビルは、東京都中央区日本橋箱崎町に位置する、ビジネスシーンにおいて理想的なオフィス賃貸施設です。このビルは、その立地、設備、そして環境において、企業にとっての最適なオフィス空間を提供します。以下では、塚田ビルの特徴、立地、設備について詳細に解説し、なぜこのビルがビジネスにおける利点を提供するのかを明らかにします。 【特徴】 塚田ビルは、現代的な建築スタイルと機能性を兼ね備えたオフィスビルです。多様な企業のニーズに応える柔軟なレイアウトが可能で、中小企業から大企業まで幅広いクライアントの要望に対応しています。また、エネルギー効率の高い設備を導入することで、環境に配慮した運営が行われており、サステナブルなビジネス環境を求める企業には最適な選択肢となっています。 【立地】 塚田ビルは、東京の中心地である中央区に位置し、ビジネスの中心地へのアクセスが抜群です。最寄り駅である水天宮前駅や茅場町駅から徒歩で容易にアクセス可能であり、東京メトロや都営地下鉄を利用して東京都内はもちろん、周辺地域への移動も容易です。この立地は、ビジネスの機会を最大化し、クライアントやパートナーとの会議・商談においても非常に便利な環境を提供します。 【設備】 塚田ビル内のオフィススペースは、最新の設備が整っており、快適かつ効率的なビジネス運営をサポートします。高速インターネット接続、セキュリティシステム、24時間利用可能なセキュリティカードアクセスなど、企業が求める機能を備えています。また、ビル内には会議室や休憩スペースも設けられ、社員がリラックスして仕事をするための環境も整っています。 【ビジネスにおける利点】 塚田ビルがビジネスにおける利点を提供する最大の理由は、その立地と設備の充実にあります。中央区という東京のビジネス中心地にありながら、周辺環境は静かで落ち着いた雰囲気を保っており、集中して仕事をするのに理想的な場所です。また、ビルの設備は最新のものが導入されており、企業活動をスムーズにし、生産性の向上に寄与します。 このように、塚田ビルは、立地の良さ、最先端の設備、そして快適な環境を提供することで、企業にとっての最高のオフィススペースを実現しています。ビジネスの成功を追求する企業にとって、塚田ビルは、その目標達成をサポートする理想的な場所です。
東京都中央区日本橋浜町3-41-4に位置し、1991年に竣工した旭光ビルは、その新耐震基準に適合した構造と駅近の利便性で、オフィススペースを探している企業にとって魅力的な選択肢となっています。地上9階建てのこのビルは、清潔感あふれる白い外壁と、大理石張りのエントランスが特徴で、ビジネスシーンにおいて洗練された印象を与えます。 旭光ビルの立地は、そのアクセスの良さからも高い評価を受けています。最寄り駅である都営新宿線の浜町駅からは徒歩5分という近さで、東京メトロ半蔵門線の水天宮前駅も徒歩圏内にあるため、複数の路線を利用できる点は通勤やビジネスシーンにおいて大きな利点となります。また、新大橋通りに面しており、視認性が高いため、来訪者の方への説明も容易です。 ビル内部の設備においても、旭光ビルは充実しています。基準階面積は約32坪で、ほぼ長方形の間取りはレイアウトしやすく、3面採光で明るい室内が確保されています。1機のエレベーターは、11人乗りと十分なキャパシティを誇り、ビル内は24時間使用可能で機械警備によるセキュリティも完備されているため、安心してビジネスを行うことができます。また、2015年にはリニューアルが施され、更に快適なオフィス環境が提供されています。 周辺環境も、オフィスビルとしての魅力を高めています。ビルの向かいには小さな商店やカフェがあり、浜町中ノ橋交差点にはコンビニや銀行が位置しているため、日常の買い物や手続きに便利です。郵便局も歩いて数分の距離にあり、ビジネスに必要なサポート環境が整っています。また、隅田川沿いの遊歩道や浜町公園といった自然環境も近く、オフィスでの疲れを癒やす場所としても最適です。 総合的に見ると、旭光ビルは耐震性能、アクセスの良さ、充実した設備、そして快適な周辺環境を兼ね備えた、ビジネスにおける様々なニーズを満たすオフィスビルです。新たな事業の拠点として、または現在のオフィス環境をアップグレードしたい企業にとって、旭光ビルは非常に魅力的な選択肢の一つと言えるでしょう。
ユニゾ日本橋富沢町洋和ビルのご紹介をさせていただきます。このビルは、東京都中央区日本橋富沢町に位置し、ビジネスの中心地である日本橋エリアにおける貴重な賃貸オフィススペースを提供しています。エレガントな外観と実用的な内装が特徴で、1機のエレベーターが設けられており、日々の業務におけるスムーズな移動をサポートします。 立地の面では、このビルは「人形町」駅や「東日本橋」駅といった複数のアクセスポイントに恵まれています。これらの駅は徒歩圏内にあり、ビジネスの拠点としてのアクセシビリティの高さを誇ります。また、大通りに面しているため、ビルへのアクセスは非常に便利です。この立地は、クライアントやビジネスパートナーとの打ち合わせにも理想的であり、日々の業務効率を高める要素の一つと言えるでしょう。 設備に関しては、ユニゾ日本橋富沢町洋和ビルは、現代のビジネスニーズに合わせた機能的なオフィス空間を提供しています。エレベーターのほか、高速インターネット接続、セキュリティシステム、快適な空調設備などが整っており、企業が効率的かつ快適に業務を行える環境が整っています。また、シンプルながらも洗練されたデザインの外観は、企業のイメージアップにも寄与します。 このビルの独自の魅力は、卓越した立地条件と、利便性と機能性を兼ね備えたオフィス空間にあります。日本橋エリアは、歴史と伝統が息づく一方で、革新的なビジネスの発展も見られる地域です。ユニゾ日本橋富沢町洋和ビルは、そんな日本橋エリアでビジネスを展開する企業にとって、最適な拠点を提供します。また、企業の成長に合わせて柔軟に対応できる空間設計は、長期的なビジネスの展望にも寄り添います。 総じて、ユニゾ日本橋富沢町洋和ビルは、立地の利便性、充実した設備、そしてビジネスの成長を支える柔軟な空間設計が魅力の賃貸オフィスビルです。日本橋エリアでビジネスを行う企業にとって、最適な選択肢の一つと言えるでしょう。
CIRCLES日本橋馬喰町ビルは、東京都中央区日本橋馬喰町1-5-12に位置する、2019年12月に竣工した最新の耐震基準に準拠したオフィスビルです。この物件は、その設計と機能性で、現代のビジネスニーズに適応する、洗練されたオフィス環境を提供します。 立地において、CIRCLES日本橋馬喰町は、JR総武線(快速)の馬喰町駅から徒歩1分圏内という抜群のアクセスを誇ります。さらに、都営新宿線の馬喰横山駅、都営浅草線の東日本橋駅、東京メトロ日比谷線の小伝馬町駅といった複数の路線が利用可能で、都内各所への移動が容易です。清洲橋通り沿いの角地に立地しており、視認性と採光性に優れています。 建物は地上11階建てで、最新の耐震技術が用いられており、安全性において非常に高い基準を満たしています。オフィスフロアは基準階約55坪で提供され、スケルトン天井による高い開放感とモダンな内装が特徴です。また、最上階には共用パントリーと屋上テラスがあり、ビル内でリフレッシュや非公式なミーティングスペースとして利用できます。 設備面では、個別空調システム、OAフロア、光ファイバー対応、給湯設備、室内男女別トイレ(温水洗浄機能付き)といった、オフィスワーカーの利便性と快適性を高める設備が充実しています。セキュリティは機械警備により24時間体制で、エントランス開閉時間外はセキュリティカードによる入退室が可能です。また、平置き駐車場がビル内に2台分備わっており、うち1台は荷捌きにも対応しています。 周辺環境も魅力の一つで、多数の飲食店やコンビニエンスストアが徒歩圏内にあり、日々のランチやちょっとした買い物にも困りません。また、ビルの1階にはカフェがあり、気軽に利用できることもビジネスパーソンにとっては大きな利点です。 CIRCLES日本橋馬喰町は、最新の設備と安全性、絶好の立地条件を兼ね備え、ビジネスシーンでの活躍をサポートするオフィスビルです。この物件は、企業のブランドイメージ向上や従業員の働きやすさを追求する企業に最適な選択肢と言えるでしょう。
7山京ビルは、東京都中央区日本橋箱崎町に位置する、ビジネスの中心地であることを象徴するオフィスビルです。この地域は、歴史と現代が交差する日本橋エリアの一角を成しており、企業が活動する上で理想的な環境を提供します。私たちはここに、あなたのビジネスを次のレベルへと押し上げるための完璧な場所があると確信しています。 まず、7山京ビルの最大の特徴は、そのレイアウト効率の良さと無柱空間にあります。正方形に近い形状をしているため、オフィススペースを最大限に活用することができ、柱がないために内装の自由度が格段に高まります。これは、創造性を重視する企業や、フレキシブルな働き方を推進する企業にとって理想的な環境です。空間を自由にカスタマイズすることで、社員一人ひとりが最も生産的になれるようなオフィス環境を作り出すことが可能になります。 次に、立地についても触れておきたいと思います。7山京ビルは、東京メトロ半蔵門線や都営地下鉄浅草線など、複数の交通網が利用可能な場所にあります。これにより、都内はもちろん、首都圏外からのアクセスも非常に良好です。また、周辺には飲食店や銀行、郵便局などの生活に必要な施設が充実しており、ビジネスに必要なサポート環境も整っています。 設備面においても、7山京ビルは最新のニーズに応える設計がなされています。高速インターネット接続やセキュリティシステム、快適な空調設備など、ビジネスをスムーズに進めるために必要な設備が整っています。また、エネルギー効率の良い設計により、企業の運営コスト削減にも貢献します。 7山京ビルは、レイアウトの自由度が高く、アクセスが良好で、生活環境が整っており、さらに最新のビジネスニーズに対応した設備を備えています。これらの特徴が融合することで、ビジネスの可能性を広げ、企業の成長をサポートする理想的なオフィス環境を提供します。あなたの会社が新たなステージへと進むために、7山京ビルでのオフィス開設を是非ご検討ください。
人形町双葉ビルは、東京都中央区日本橋人形町2丁目に位置する、地上10階建てのオフィスビルです。このビルは、約42坪の基準階貸事務所を提供しており、その室内は機能性と快適性を追求した2部屋が連結した形状をしています。人形町双葉ビルは、その立地の良さ、設備の充実さ、そして歴史ある周辺環境と合わせて、ビジネスの成功をサポートする理想的なオフィススペースを提供します。 まず、このビルの立地について述べると、人形町駅から徒歩1分の距離にあり、アクセスの利便性が非常に高いです。また、ビルはあまざけ横丁に面しており、視認性が高いことが特徴です。この地域は、江戸情緒が色濃く残る下町的な雰囲気が特徴で、多くの飲食店やお店が集積しています。ランチタイムやアフター5の利用に最適な環境が整っており、ビジネスパーソンにとっては大きな魅力と言えるでしょう。 ビルの設備に関しては、安全性と利便性に重点を置いています。セキュリティシステムには機械式警備を採用し、安心してビジネスを行える環境を提供。また、ビル内には1機のエレベーターが設置されており、スムーズな移動を支援します。1階には、明治40年創業の老舗店が入居しており、ビルの歴史と伝統を感じさせてくれます。エントランスは横路地側にあり、外には自販機や店舗の看板が設置されているため、来訪者を迎える際の印象も良好です。 ビルの周辺環境も魅力の一つです。近くには人形町今半などの有名店があり、ビジネスランチや接待に適した場所が豊富にあります。また、郵便局へのアクセスも容易で、ビジネスで必要な郵便サービスの利用にも便利です。さらに、水天宮前駅から歩いて3分ほどの場所には、東京シティエアターミナルがあり、空港リムジンバスを利用することで、国内外への移動もスムーズに行えます。 人形町双葉ビルは、その立地の良さ、充実した設備、そして周辺環境の豊かさを兼ね備えた、ビジネスにおける成功を後押しする理想的なオフィス環境を提供します。ここでのビジネスは、毎日が充実し、新たな可能性を見出すことでしょう。
人形町センタービルは、東京都中央区日本橋人形町1丁目に位置する賃貸オフィスビルです。1994年に竣工され、新耐震基準に準拠した建設が施されています。このビルは、東京メトロ日比谷線および都営浅草線の人形町駅から徒歩1分という、非常に便利な立地条件を有しています。また、水天宮前駅や小伝馬町駅も徒歩圏内にあり、複数の鉄道路線を利用できる点が大きな利点です。 ビルの特徴として、アルミカーテンウォールによる外観が現代的な印象を与え、ガラス張りの部分は自然光を室内に取り込むことで、オフィス内の明るい雰囲気を創出しています。基準階は約110坪の広さを誇り、OAフロア、光ケーブル、個別空調、男女別トイレといった設備が整っており、テナントのニーズに応じた快適なオフィス環境を提供します。 セキュリティ面では、機械警備システムが導入されており、24時間体制で安全が守られています。また、ビル内には2基のエレベーターが設置されており、円滑な移動をサポートします。ビル併設の駐車場は機械式であり、来客や社員の利便性を高めています。 周辺環境としては、人形町通りに面しており、飲食店、コンビニエンスストア、郵便局などが充実しており、ビジネスに必要なあらゆるサービスを身近に利用できる利点があります。 人形町センタービルは、その立地の良さ、充実した設備、そして安全性の高さを兼ね備えたオフィスビルとして、多くの企業にとって魅力的な選択肢となるでしょう。ビジネスの拠点として、または新たなオフィスの検討に際して、ぜひ検討いただきたい物件です。
東京の中央区、東日本橋1丁目に位置する丸大ビルは、ビジネスの拠点としての魅力を多方面から提供する賃貸オフィスビルです。1982年に竣工されたこの地上6階建ての建物は、その赤茶色のレンガタイル張りの外観が重厚感を醸し出しており、歴史と現代の融合を象徴しています。基準階約23坪のオフィススペースは、柱が少なく長方形に近いレイアウトが可能で、各企業のニーズに応じた空間設計が行える点が特徴です。 立地においても、東日本橋駅からわずか徒歩3分というアクセスの良さを誇ります。さらに、浜町駅や馬喰横山駅も徒歩圏内にあるため、都営浅草線をはじめ複数の路線が利用可能で、都内各所への移動が容易です。これは、ビジネスの機動性を高める上で大きな利点と言えるでしょう。 ビルの設備面でも、24時間利用可能なフレックスタイム制を採用しており、働く人々の生活スタイルに合わせた柔軟な勤務が可能です。また、各フロアに設置された空調設備は、快適なオフィス環境を一年中保ちます。エレベーターは1基ですが、ビルの規模に見合った運用がされているため、日常的な使用では大きな支障はありません。 周辺環境もビジネスを行う上で重要なポイントです。丸大ビルの周辺には、必要な日用品を手に入れることができるコンビニや郵便局があり便利です。また、飲食店は少なめですが、駅前エリアにはカフェやスーパーが充実しており、日々のランチタイムや仕事終わりの買い物に困ることはありません。 このように丸大ビルは、アクセスの良さ、柔軟なレイアウト可能なオフィス空間、利便性の高い周辺環境と、ビジネスを行う上で必要な要素を総合的に備えた賃貸事務所物件です。ビジネスの拠点として、あらゆる企業の成長を支えるポテンシャルを有しています。
霜ビル1は、江東区福住に位置する賃貸オフィスビルで、1977年に竣工しました。門前仲町駅から徒歩5分、越中島駅からも徒歩14分とアクセスが便利です。白いタイル張りの外観が印象的で、2面採光により室内が明るく、快適な環境を提供します。 ビルは地上6階建てで、区画ごとに20~30坪の広さがあります。貸室の間取りは区画によって異なり、内見時には柱の配置などを確認いただけます。便利なエレベーターが1基設置されており、各階へのアクセスもスムーズです。 霜ビル1の大きな特徴の一つに、24時間利用可能な点があります。これにより、フレキシブルな働き方を実現することが可能です。また、個別空調システムが導入されており、各テナントごとの温度調整ができます。機械警備が導入されているため、安心して利用できる環境が整っています。 トイレは男女別で、各階に設置されています。これは、利用者のプライバシーと快適さを確保するための配慮です。また、ビル周辺は住宅地が多い落ち着いたエリアに位置しており、静かで集中できる環境が整っています。近くには飲食店やコンビニもあり、日常の利便性も高いです。 霜ビル1は、立地の良さと充実した設備が融合したオフィスビルで、働く方々に快適な環境を提供します。内見や詳細については、お気軽にお問い合わせください。
Biz Feel 茅場町ビルは、ビジネスの中心地である人形町・茅場町エリアに立地する地上10階建ての賃貸オフィスビルです。その静かな環境と利便性の高さを兼ね備え、現代のビジネスパーソンに最適なワークスペースを提供します。 立地において、Biz Feel 茅場町ビルは人形町駅および茅場町駅からわずか徒歩5分の距離に位置し、5路線が利用可能な交通至便の地点にあります。ビジネスの機動力を高めるこの立地は、多忙なプロフェッショナル達の日々の移動を大いにサポートすることでしょう。 ビルのスペックに関しては、基準階25.96坪の貸室は、2.68mの天井高が生み出す開放感あふれる空間で、作業効率と快適性が追求されています。また、OAフロアを採用しており、テナントのニーズに合わせたフレキシブルなレイアウト変更が可能。個別空調システムにより、各テナントは自分達の働きやすい環境を自由にコントロールできる点も見逃せません。 加えて、男女別トイレやエレベーター(1基)など、テナントの利便性を高める設備も完備。ビル周辺には飲食店やコンビニ、郵便局などが揃っており、ビジネスの効率化だけでなく、日々の快適なオフィスライフをサポートします。 Biz Feel 茅場町ビルは、その優れた立地条件、高スペックなオフィス空間、そして利便性の高い周辺環境を兼ね備え、ビジネスの成功を後押しする理想的な環境を提供します。このビルが、これからのビジネスシーンにおいて、新たな価値を創造し、多くの企業やプロフェッショナル達の活躍の場となることを確信しています。
箱崎升喜ビルは、中央区日本橋箱崎町に位置する、質と機能性を兼ね備えた高級オフィスビルです。1992年に竣工されたこの6階建ての建物は、その重厚感あるグレーの石造りの外観で、一目見ただけでビジネスシーンにおける品格と信頼を象徴しています。基準階の貸事務所は約88坪と広々としており、L字型の間取りは柔軟なオフィスレイアウトを可能にします。床荷重は500kg/㎡と高く、重量のある機器も安心して設置できます。 ビルのエントランスは洗練されたデザインで、高級感溢れる空間を提供しています。セキュリティ面では、24時間対応の機械式警備が導入されており、入居企業とその従業員に安心と安全を提供しています。また、建物内には男女別の共用トイレがあり、清潔で快適な環境が保たれています。エレベーターは1基設置されており、スムーズな移動をサポートします。 立地においても、箱崎升喜ビルはビジネスに最適な環境を提供しています。水天宮前駅から徒歩3分、茅場町駅からもアクセス可能で、交通の利便性は抜群です。さらに、首都高速6号向島線の箱崎出入口が近いため、車での移動も容易です。周辺にはカフェやコンビニがあり、日々のビジネスライフをサポートする充実した環境が整っています。 箱崎升喜ビルは、その高い建物スペックと優れた立地、充実した設備を備え、企業のプレステージ向上に貢献するオフィスビルです。ビジネスの成功に必要なすべてを揃えたこのビルは、企業の成長を力強くサポートします。高品質なオフィス環境を求める企業にとって、箱崎升喜ビルは最適な選択肢の一つであることは間違いありません。
月村NO28ビルは、都心のビジネスシーンの中心地、中央区日本橋富沢町に位置する、SOHOや事務所利用に最適なマンションです。このエリアは、歴史と近代が融合する日本橋地区の一角を占め、経済活動が活発で、多くの企業が集まるビジネスの中心地です。そのため、月村NO28ビルは、ビジネスの拠点として非常に魅力的な立地条件を有しています。 ビルの主な特徴として、SOHOや事務所利用に柔軟に対応している点が挙げられます。現代の働き方に合わせ、フレキシブルなオフィス環境を提供しており、スタートアップ企業から中堅企業まで幅広いニーズに応えることが可能です。また、エレベーターは1機設置されており、快適な移動をサポートします。 設備面では、現代のビジネスニーズに合わせた最新の通信インフラが整備されており、高速インターネット接続やセキュリティシステムなど、安心して業務を遂行できる環境が整っています。加えて、ビルの管理体制も整っており、清潔で整頓された共用部分は、ビジネスの顔としての役割も果たしています。 立地に関しては、複数の交通網が利用可能な点も大きな魅力です。主要な鉄道路線が乗り入れる駅が徒歩圏内にあり、都内各所へのアクセスが非常に便利です。また、周辺には飲食店や商業施設が充実しており、ビジネスの合間にリフレッシュや必要な買い物を済ませることができます。 月村NO28ビルは、その立地の良さ、高度な設備、柔軟な利用が可能な空間を提供することで、ビジネスの成功をサポートします。スタートアップから成長途中の企業まで、様々なフェーズの企業が活動の拠点として選ぶ理由がここにはあります。このビルでビジネスの新たな一歩を踏み出し、夢を実現させましょう。
セキグチビルは中央区日本橋馬喰町1丁目、横山町馬喰町新道通り沿いに位置する、一棟貸しの貸事務所ビルです。その外観は、両側の円柱と細かく施された金網が特徴的で、街並みに新たな印象を与えています。ビル内の配置は、1~2階がそれぞれ14.8坪、3~5階が12.74坪となっており、各階の間取りの違いにより、物置や書庫など様々な用途に対応可能な柔軟性を持っています。また、エレベーターが1機設置されており、ビル内の移動もスムーズです。 立地において、セキグチビルは交通の利便性に優れています。馬喰町駅、馬喰横山駅、東日本橋駅が至近にあり、浅草橋駅も徒歩圏内と、複数の駅と路線が利用可能で、ビジネスの拠点として絶好の位置にあります。この地域は、かつて繊維問屋街として栄え、現在も服飾関連の店舗や関連企業が集まるエリアで、買い物客で賑わいを見せています。このような活気ある環境は、ビジネスチャンスを広げる上で大きな利点となります。 さらに、セキグチビルの周辺には、コンビニや飲食店が清洲橋通りや江戸通り沿いに多数存在し、日常の利便性も高いです。また、郵便局やメガバンクの支店・ATMが歩いて数分の範囲にあるため、ビジネス運営に必要なサービスアクセスも容易です。隅田川へのアクセスも良好で、休日の散歩やランチタイムのリフレッシュにも最適な環境を提供しています。 セキグチビルは、その特徴的なデザイン、柔軟な用途に対応する間取り、そして交通利便性と周辺環境の良さが魅力のオフィスビルです。これらを活かし、ビジネスの新たな拠点として、また多様な業種の企業が集まるコミュニティの形成に寄与することでしょう。日本橋馬喰町の地で、新たなビジネスの形を模索する企業にとって、セキグチビルは最適な選択肢の一つであることは間違いありません。
岩崎ビルは、東京都台東区浅草橋に位置する、1991年に竣工された賃貸オフィスビルです。このビルは、ビジネスの拠点として最適な立地と設備を兼ね備えており、SOHOや小規模事務所の利用に適しています。以下では、岩崎ビルの特徴、立地、設備について詳しく解説し、その魅力を紹介します。 # 特徴 岩崎ビルは、10階建てで、基準階の面積は約39坪です。L字型の独特な形状をしており、これにより部署毎に区切りやすいレイアウトが可能となっています。ビルのエントランスは清潔感があり、来客時の印象も良好です。また、エレベーターは1基設置されており、簡易の打ち合わせスペースとして利用できることも、このビルの大きな特徴の一つです。 # 立地 岩崎ビルは、「浅草橋駅」から徒歩2分という交通アクセスの良さが特徴です。江戸通りから少し入った場所に位置しており、周辺はオフィスやマンションが立ち並ぶ落ち着いた環境です。浅草橋の他、馬喰町駅や東日本橋駅、馬喰横山駅からも徒歩10分圏内でアクセス可能、複数の交通網を利用できるため、ビジネスの拠点として非常に便利な立地です。 # 設備 オフィスフロアは、光ファイバー完備で、個別空調システムを導入しています。これにより、各テナントは快適なオフィス環境を個別にコントロールできます。また、床はタイルカーペット仕様で、室内は柱が少なくコンパクトながらも機能的な空間を提供しています。男女別のトイレが共用部に設置されており、セキュリティは機械警備システムによって24時間体制で守られています。 # 魅力とビジネスにおける利点 岩崎ビルの魅力は、その立地の良さと機能的な設備にあります。中心地に近く、複数の交通機関にアクセスしやすい立地は、ビジネスの機会を拡大させます。また、コンパクトでありながらも機能的に設計されたオフィス空間は、SOHOやスタートアップ企業にとって最適な環境を提供します。このように、岩崎ビルは、ビジネスの拠点として、また、成長する企業のニーズに合致したオフィス空間として、高いポテンシャルを持っています。 岩崎ビルは、その立地、設備、環境の全てにおいて、ビジネスの成功をサポートする要素を備えています。これらの特徴からも、岩崎ビルは多くの企業にとって魅力的なオフィススペースであると言えるでしょう。
中央区日本橋蛎殻町に位置するNihonbashiOKBldgは、優雅な石造りのエントランスが特徴的な、1991年竣工の7階建て賃貸オフィスビルです。ビルの立地としては、人形町駅から徒歩6分というアクセスの良さを誇り、茅場町駅や水天宮前駅からも容易にアクセス可能で、ビジネスの中心地としてのポテンシャルを充分に秘めています。この物件は、約28坪の基準階面積を有し、柱が少なくレイアウトの自由度が高いため、様々な業種の企業が自社のビジョンに合わせたオフィス空間を実現できます。 セキュリティ面においては、機械警備とオートロックシステムを導入しており、入居企業と従業員の安全をしっかりと守ります。また、1基のエレベーターが設置されており、スムーズなビル内の移動をサポートします。 周辺環境としては、オフィスビルやマンションが立ち並ぶエリア内に位置し、日々の業務に必要な様々な施設が揃っています。徒歩1分の場所にコンビニがあり、日常の小さな用事も容易に済ませることができます。さらに、近くには郵便局や銀行、飲食店が充実しており、ビジネスシーンでの忙しい一日の中でも、様々なニーズに応えることができる便利な立地です。 NihonbashiOKBldgは、その高級感あふれるエントランスから始まり、安全性や利便性を兼ね備えた賃貸オフィスとして、多くの企業にとって理想的なビジネスの拠点となるでしょう。自然光が豊富に入る開放感のあるオフィス空間は、働く社員にとってのモチベーション向上にも寄与します。企業の成長と共に発展を遂げるための理想的な環境がここにはあります。是非とも、NihonbashiOKBldgで新たなビジネスの章を開始してみてはいかがでしょうか。
THE GATE 日本橋人形町(旧:サンエースビル)は、中央区日本橋富沢町7-16に位置する、ビジネスに最適な賃貸オフィスビルです。1992年に竣工し、2021年には1棟フルリノベーションを施されたことで、新築同様の設備と洗練された外装・内装を備えています。この物件は、基準階約70坪の広さを誇り、鉄骨鉄筋コンクリート造の地上9階建て(地下1階)で構成されており、耐震性にも優れています。 立地においては、東京メトロ日比谷線・都営浅草線の人形町駅から徒歩4分、都営新宿線の馬喰横山駅から徒歩6分、東京メトロ半蔵門線の水天宮前駅から徒歩7分と、複数の駅が徒歩圏内にあるアクセスの良さが魅力です。また、JR総武線(快速)の馬喰町駅も徒歩8分圏内にあり、ビジネスエリアへのスムーズな移動が可能です。 ビルの内装は、清潔感があり、広々としたエントランスホールが訪問者を迎えます。また、会議室付きの内装が用意されており、ビジネスシーンにおいての利便性も高いです。セキュリティ面では、機械警備が導入されており、24時間利用が可能で、承認した人以外が貸室まで上がることができない安心のシステムを採用しています。 各貸室内には、個別空調やOAフロアが完備されており、快適なオフィス環境を実現しています。また、トイレは室内に男女別で設置され、細部にわたる配慮も見受けられます。 周辺環境としては、オフィスビルが立ち並ぶ中、金座通りから一本入った静かな立地に位置しております。徒歩圏内に飲食店が豊富にあり、ランチや夕食の選択肢も多岐にわたります。また、日本橋三越本店やコレド室町が近く、ショッピングや日常のお買い物にも便利です。さらに、銀行や郵便局、税務署など、ビジネスをサポートする施設も充実しています。 THE GATE 日本橋人形町は、アクセスの良さ、洗練された設備、ビジネスに最適な立地と環境を兼ね備えたオフィスビルです。あらゆるビジネスの可能性を広げ、働く人々にとって最良のオフィス環境を提供します。
中野オイスタービルは、東京都中央区日本橋蛎殻町に位置する1988年竣工のオフィス賃貸ビルです。この物件は、地下鉄半蔵門線の水天宮前駅から徒歩4分というアクセスの良さが特徴であり、人形町駅や茅場町駅も徒歩圏内にあります。周辺には飲食店やコンビニ、銀行などが点在し、日常の買い物や食事にも便利な立地です。 ビルは5階建てで、基準階の規模は約57坪(約188平米)となっており、上階はセットバックにより30坪台の広さを提供しています。室内は細長い形状で柱がなく、オフィスレイアウトの自由度が高い点が魅力です。また、個別空調を備えており、働く環境を快適に保つことができます。室外に男女別トイレと給湯設備が設置されており、効率的なオフィス運営に貢献します。 セキュリティ面では、機械警備システムと夜間オートロックを採用し、テナントの安全を守ります。OAフロアや光ケーブルといった最新の施設も整っており、現代のビジネスニーズに適応した環境を提供します。エレベーターは1基あり、低層ビルのためテナント数が限られており、待ち時間のストレスも少ないです。また、窓が多く設けられているため、室内は非常に明るく開放感があります。 中野オイスタービルは、新耐震基準に適合しており、安全面でも安心してご利用いただけます。このビルは、立地の良さ、機能性、セキュリティの充実といった点で、多様なビジネスニーズに応える賃貸オフィスとして最適です。中央区日本橋蛎殻町というビジネスに適したロケーションで、あなたのビジネスをさらに発展させるための拠点としてご検討ください。
リガーレ日本橋人形町ANNEXビルは、ビジネスの中心地である東京中央区日本橋人形町に位置する、2007年竣工のモダンな賃貸オフィス物件です。この地域は、伝統と革新が交差するエリアとして知られ、多彩な業種の企業にとって理想的な立地条件を提供します。リガーレ日本橋人形町ANNEXビルは、その高いスペックと設備の良さで、企業の成長を支える環境を提供します。 ビルの外観は、モノトーン調のタイル張りでデザインされ、シンプルかつ洗練された印象を与えます。3階建てのこのビルでは、効率性と機能性を重視したデザインが特徴となっており、エレベーター1基を備えています。これは、スムーズな移動を実現し、日々の業務効率を高める重要な要素です。 1階には、飲食店やカフェなどの店舗が入居しており、ビルのテナントおよび来訪者に対して、快適な飲食の場を提供します。これは、ビジネス環境において、日々の慌ただしいスケジュールの中で、手軽に食事や休憩を取ることができる重要な利点です。 立地に関しては、リガーレ日本橋人形町ANNEXビルは、水天宮前駅から徒歩4分というアクセスの良さを誇ります。また、人形町駅も近く、東京の主要エリアへのアクセスが容易であるため、ビジネスの機会を広げるうえで重要な役割を果たします。周辺には、飲食店が豊富にあり、ビジネスシーンにおけるランチミーティングやアフター5の利用にも便利です。 ビル内の安全性と快適性を支える設備として、管理人の常駐もポイントです。これにより、テナント企業とその従業員は、日々の業務を安心して遂行できます。また、機械式駐車場の設置は、車を利用するテナントにとって大きなメリットとなります。 リガーレ日本橋人形町ANNEXビルは、その高いスペックと充実した設備、そして絶好の立地条件により、企業の成長を促進し、ビジネスの成功を支える理想的なオフィス環境を提供します。このビルで、あなたのビジネスを次のレベルへと導きましょう。
第5高野ビルのご紹介 第5高野ビルは、ビジネスの中心地である中央区東日本橋3丁目に位置する、賃貸オフィスビルです。このビルは、交通の利便性が非常に高く、都営地下鉄とJRの両方にアクセス可能であるため、ビジネスにおける重要な拠点として最適な立地条件を備えています。ここでは、第5高野ビルの特徴、立地、設備などについて、詳細にご紹介いたします。 【特徴】 第5高野ビルは、機能性とセキュリティを兼ね備えたモダンなオフィスビルです。ビル内には1機のエレベーターが設置されており、不停止機能が付いているため、セキュリティ面での安心感があります。この機能により、無関係な階へのアクセスを防ぎ、テナントのプライバシーと安全を守っています。 【立地】 中央区東日本橋3丁目に位置するこのビルは、複数の交通網に恵まれています。都営地下鉄とJRの駅が近くにあり、都心へのアクセスはもちろん、郊外への移動もスムーズです。この立地は、ビジネスの機会を広げるための理想的な環境を提供します。周辺には、飲食店やコンビニ、銀行などの生活に必要な施設も充実しており、日常の業務に便利な環境です。 【設備】 第5高野ビルは、機能的で使いやすいオフィス空間を提供しています。エレベーターの不停止機能をはじめ、光ファイバー対応のインターネット環境、セキュリティシステム、エネルギー効率の高い照明設備など、ビジネスの効率を高めるための様々な設備が整っています。 【ビジネスにおける利点】 第5高野ビルの最大の利点は、その立地と設備の良さにあります。都心へのアクセスの良さは、クライアントとの打ち合わせやビジネスチャンスの拡大に貢献します。また、セキュリティ面での配慮や、快適なオフィス環境は、従業員の働きやすさを向上させ、企業の生産性の向上にもつながります。 結論として、第5高野ビルは、立地の良さ、セキュリティの高さ、充実した設備を備えたビルとして、多くの企業にとって魅力的なオフィススペースと言えるでしょう。ビジネスの拠点として、また、企業の成長を支える環境として、第5高野ビルは最適な選択肢の一つです。
松井第1ビルは、東京都中央区日本橋馬喰町1丁目に位置する、ビジネスに最適なオフィス賃貸物件です。このビルは、1970年に竣工し、時を経るなかでその価値と機能性を維持してきました。立地は、馬喰町駅から徒歩わずか1分という近さに加え、周辺には馬喰横山駅、東日本橋駅、浅草橋駅といった複数の駅が徒歩圏内にあり、都内各地へのアクセスが非常に便利です。このような交通の利便性は、ビジネスの機動性を高め、幅広いクライアントやパートナーとの接触機会を提供します。 ビルの設備については、エレベーターが1機設置されており、室外にお手洗いがあります。この配置は、内部の貸室を長方形に近い形状で効率良く利用することを可能にし、オフィススペースを最大限に活用できるように設計されています。また、江戸通りから一本入った場所に立地しているため、交通量の少ない静かな環境で仕事に集中できるというメリットもあります。落ち着いた職場環境を求める企業にとって、このビルは魅力的な選択肢となるでしょう。 さらに、松井第1ビルは旧耐震基準の物件でありながら、その歴史と落ち着いた雰囲気が醸し出す独自の魅力があります。賃料も魅力的な設定となっており、コストパフォーマンスを重視する企業にとっては、非常に魅力的なオプションです。立地、設備、環境と三拍子揃ったこのビルは、多種多様なビジネスニーズに対応可能な柔軟性を持っています。 結論として、松井第1ビルは、交通の便利さ、効率的なオフィスレイアウト、落ち着いた働く環境、そして経済的な賃料という、ビジネスにおける重要な要素を兼ね備えています。これらの特徴は、さまざまな業種の企業が求める条件を満たし、長期的なビジネス展開においてもその価値を維持し続けるでしょう。心地よい職場環境を求め、かつコストパフォーマンスに優れたオフィススペースを探している企業にとって、松井第1ビルは最適な選択と言えるでしょう。
東京のビジネスシーンの中心地、中央区日本橋浜町に位置する「日本橋浜町3丁目ビル」(旧:ムゲン日本橋)は、その立地と設備の充実度から、多くの企業に選ばれている賃貸オフィス物件です。このビルは、1992年に竣工された8階建ての鉄骨造オフィスビルで、地震に対する新耐震基準を満たしています。そのため、安心してビジネスを展開することができます。 立地面では、最寄り駅の水天宮前駅から徒歩6分、浜町駅からは徒歩10分というアクセスの良さが魅力の一つです。また、近くにはT-CATがあり、羽田空港や成田空港へのアクセスも非常に便利です。このように、日本橋浜町3丁目ビルは地域内外への移動が容易であり、ビジネスの拠点としては理想的な立地条件を備えています。 設備面においても、このビルは特筆すべき点がいくつかあります。まず、基準階約39坪のオフィススペースは、白を基調とした清潔感のある室内で、レイアウトもしやすい設計となっています。また、個別空調システムを採用しており、各オフィスが最適な室温を保つことができます。男女別のトイレ、給湯スペースも完備されており、快適なオフィス環境を提供しています。 さらに、2020年にはエントランスや共用部分の改装工事が行われ、ビルの外観だけでなく、内部も現代的で洗練されたデザインに生まれ変わりました。これにより、訪れる人々に良い印象を与え、ビジネスの場としての価値をさらに高めています。 周辺環境も、ビジネスをサポートする上で魅力的です。清州橋通り沿いに位置しており、徒歩圏内にはスーパーマーケット、コンビニエンスストア、ドラッグストアなどがあり、日々の生活に必要なものを簡単に手に入れることができます。 日本橋浜町3丁目ビルは、その立地、設備、周辺環境ともに、ビジネスの成功をサポートするために必要な要素を備えています。このビルをビジネスの拠点とすることで、企業はより多くのチャンスを掴み、成長を加速させることができるでしょう。
ビジネスの進化に伴い、オフィス選びにも新たな基準が求められています。中央区日本橋富沢町に位置する「日本橋インテリジェントフラッツビル」は、その新たなニーズを満たす賃貸オフィス物件です。ここでは、この物件の特徴、立地、設備などを総合的に紹介し、ビルの魅力とビジネスにおける利点を明確にしていきます。 【特徴】 日本橋インテリジェントフラッツビルは、地上6階建てのオフィスビルで、1991年に竣工しました。ワンフロア約20坪の広さは、中小企業やスタートアップ企業に最適なサイズ感を提供します。長方形の間取りはレイアウトの自由度が高く、効率的なオフィス環境を実現します。また、各貸室にはトイレと給湯スペースが備え付けられており、利便性も抜群です。 【立地】 このビルは、東京の中心地、中央区日本橋富沢町に位置しています。馬喰横山駅・東日本橋駅から徒歩5分程度というアクセスの良さは、従業員の通勤はもちろん、ビジネスの機会を広げる上で大きな利点です。小伝馬町駅・馬喰町駅・人形町駅も徒歩圏内にあり、複数の路線が利用可能なため、都内各所へのアクセスも容易です。 【設備】 2012年には空調設備がリニューアルされ、快適なオフィス環境が整備されました。また、機械警備システムの導入により、セキュリティ面でも安心して業務に取り組むことができます。1フロア2テナントの構成で、専用のトイレを備えており、プライバシーも保たれます。エントランスの印象も良好で、訪問客にも好印象を与えることができるでしょう。 【総評】 日本橋インテリジェントフラッツビルは、その立地、設備、レイアウトの自由度など、ビジネスを進める上で重要なポイントを総合的に満たす賃貸オフィス物件です。中小企業やスタートアップ企業にとって、成長の基盤となるべき空間を提供しており、ここから新たなビジネスの展開を期待できます。この物件を選ぶことで、ビジネスの可能性を広げ、成功への一歩を踏み出すことができるでしょう。
日本橋人形町石井ビルは、東京都中央区日本橋人形町3丁目に位置する、1988年に竣工された9階建ての賃貸オフィスビルです。この物件は、最新の耐震基準に準拠した鉄骨鉄筋コンクリート造であり、地震発生時のビルの安全性に配慮されています。ビルの基準階貸室面積は約40坪となっており、多様なビジネスニーズに対応する柔軟なレイアウトが可能です。また、2019年にはエレベーターがリニューアルされ、利便性が一層向上しています。 日本橋人形町石井ビルの立地は、ビジネスの中心地である中央区にありながら、人形町駅から徒歩3分というアクセスの良さが特徴です。さらに、水天宮前駅からも徒歩7分と、複数の鉄道路線を利用することができるため、ビジネスの機動性を高める要素となります。ビルの周辺には、多様な飲食店やコンビニエンスストアが立地しており、日々の業務においても便利な環境が整っています。 ビル内の設備についても、個別空調や光ファイバー対応の高速通信インフラ、男女別トイレ等、テナント企業のニーズに応える充実した機能を備えています。さらに、セキュリティ面では機械警備システムを採用し、テナント企業及びその従業員の安心感を提供しています。また、1階オフィスはガラス張りであり、エントランスも広々としており、来訪者に対して好印象を与えることができます。 日本橋人形町石井ビルは、ビジネスの効率性と快適なオフィス環境を求める企業にとって、最適な選択肢であると言えるでしょう。その立地の良さに加え、機能的な設備と安全性を兼ね備えたこのビルは、多くの企業様のビジネスをサポートするための理想的な場所となることでしょう。この地域特有のビジネスと文化の融合した環境の中で、日々の業務をより充実させ、企業価値を高めていくための最適なステージを、日本橋人形町石井ビルは提供しています。
日本橋BSビルは、東京都中央区日本橋富沢町に位置し、清杉通りに面していることが特徴のオフィスビルです。このビルは1994年に竣工され、新耐震基準に適合する設計になっているため、地震発生時の安全性が高いという重要なメリットを有しています。基準階面積は約70坪で、L字型の間取りが採用されています。これにより、利用者には柔軟なレイアウト変更が可能であり、様々な業種の企業が最適なオフィス空間を実現できるでしょう。 ビルの内装においても、窓面が多く設計されているため、室内は自然光が豊富に差し込み、明るく快適な作業環境を提供します。また、エレベーターホールには大理石調の仕上げが施されており、訪れる人々に高級感あふれる印象を与えることができます。これは、来客時の印象向上に寄与し、ビジネスの信頼度を高める効果が期待できます。 立地に関しても、日本橋BSビルは非常に便利な位置にあります。東日本橋駅、馬喰町駅、馬喰横山駅から徒歩圏内にあり、3駅以上からのアクセスが可能です。これにより、従業員や来客の交通の利便性が高く、ビジネスの機動性を支援します。周辺には飲食店やコンビニも点在しており、ランチタイムや仕事後の時間も充実させることができます。 設備面では、OAフロアの採用で高い情報通信環境を整え、24時間利用可能な体制となっています。さらに、ビル内には月極駐車場が設けられ、機械警備システムにより安全性も確保されています。トイレは男女別で、リニューアルも完了しており、利用者の快適性を追求した設計となっています。 日本橋BSビルは、その立地の良さ、耐震性能、充実した設備、そして快適な作業環境を兼ね備えたオフィスビルです。これらの特性を活かして、多様なビジネスのニーズに応えることができるでしょう。企業が成長を遂げるための基盤として、または新たなビジネスの拠点として、日本橋BSビルは理想的な選択肢の一つであることは間違いありません。
森下駅について
### 森下駅周辺:落ち着いた雰囲気と利便性が魅力のエリア #### 魅力ある立地と交通アクセス 東京都江東区に位置する森下駅は、都営地下鉄新宿線と大江戸線が交差する利便性の高い駅です。東京駅まで約11分、新宿駅まで約13分と主要ビジネス拠点へのアクセスも抜群で、通勤・通学に非常に便利です。また、徒歩10分程度で利用できるJR両国駅も近く、多方面への移動がスムーズです。特に大江戸線は終電時刻が遅めになっているため、夜遅くまで仕事をするビジネスパーソンにも適したエリアといえます。 #### 駅周辺のエリア特性 森下駅周辺は下町情緒溢れるエリアとして知られ、どこか懐かしさを感じることができます。老舗料理店が立ち並ぶ「森下商店街」では、昔ながらの温かい雰囲気を楽しむことができ、地元の人々との交流も豊かです。また、コンビニやドラッグストアなどの生活利便施設も充実しており、日々の生活に困ることはありません。 歴史的にも興味深いこのエリアには、江戸時代の俳諧師松尾芭蕉ゆかりの「江東区芭蕉記念館」があり、歴史と文化を感じることができます。さらに、深川の地名の発祥となった「深川神明宮」も駅南側に立地しており、地域の歴史を身近に感じることができます。 #### 周辺環境と治安 隅田川が近く、川沿いには「隅田川テラス」という散策路が整備されています。ここでは、開放感溢れる風景を楽しむことができ、リフレッシュに最適です。駅周辺は大通りから少し入ると閑静な住宅街が広がっており、落ち着いた住環境が整っています。治安の良さから、初めての一人暮らしにもおすすめのエリアです。 #### ビジネスにおける利点 物件を探すビジネスパーソンにとって、森下駅周辺の利便性は大きな魅力です。主要ビジネスエリアへのアクセスの良さだけでなく、生活のしやすさや治安の良さもポイントです。また、駅周辺には飲食店が限られているため、自社ビル内に社員食堂を設けるなどの工夫も考えられます。さらには、森下駅が地下深くに位置するため、雨の日でも濡れずに移動できる点もメリットです。 #### 地域イベントと特産品 3年に一度行われる深川神明宮の水かけ祭は、地域の活気を感じることができるイベントです。この祭りは地域の一体感を高め、地元の人々との交流を深める絶好の機会となります。また、カレーパン発祥のパン屋さん「カトレア」もあり、地域ならではの特産品を楽しむことができます。 ### まとめ 森下駅周辺は、利便性の高い立地と落ち着いた住環境が魅力のエリアです。歴史と文化が息づくこの地域で、安心して快適な生活を送ることができるでしょう。ビジネス拠点としても優れた条件を備えており、初めての一人暮らしの方にもおすすめです。ぜひ、森下駅周辺の物件をご検討ください。