目白坂STビルの賃料条件
| 階数 | 坪数 | 賃料 + 共益費 | 敷金/礼金敷金 礼金 | 検討 |
|---|---|---|---|---|
| 4階 | 174.53坪 (576.96m²) | お問合せ下さい (坪:-) | 12ヶ月 無12ヶ月/無 | |
| 5階 | 174.53坪 (576.96m²) | お問合せ下さい (坪:-) | 12ヶ月 無12ヶ月/無 |
※このサイトに記載がある賃貸条件は、敷金・保証金などの預かり金を除き、別途消費税がかかります。
物件情報
設備詳細
| 空調 | 個別空調 |
|---|---|
| トイレ | - |
| 床仕様 | OA対応床(フリーアクセス) |
| エレベータ | 2 基 |
| 駐車場設備 | 空有 / 機械式駐車場 / 平置き駐車場 |
| その他 | 大型ビル / 新耐震基準 / 機械警備 |
目白坂STビルの賃貸オフィス・事務所に関するお問い合わせ
目白坂STビルについて
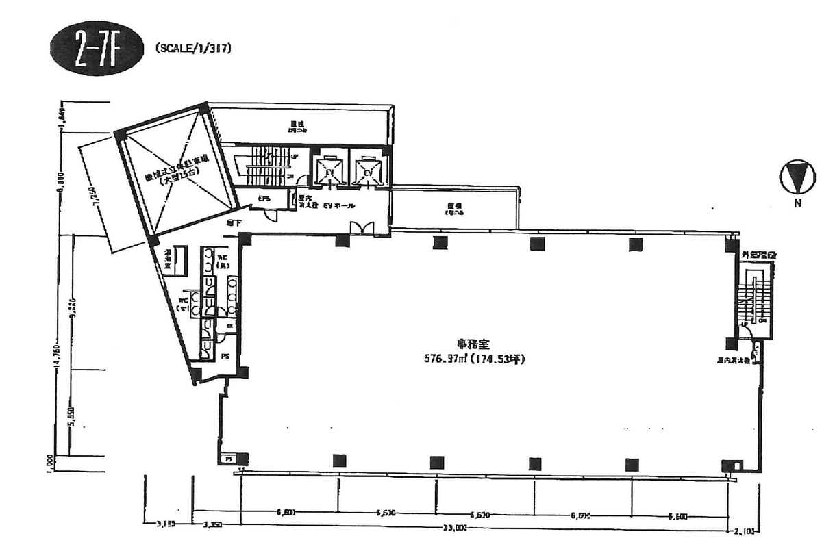
目白坂STビルは、東京都文京区関口に位置する、賃貸オフィスビルです。1994年に竣工されたこの建物は、新耐震基準に適合した安全性の高い構造で設計されています。7階建てのこのビルは、基準階約174坪の広々としたオフィススペースを提供しており、中規模から大規模な企業に適しています。 ビルの外観はタイル貼りで、洗練された都市的な印象を与えます。また、目白坂STビルは、機械式25台と平面式1台の計26台収容可能な駐車場を備えており、来訪者や従業員にとって非常に便利です。エレベーターは2基設置されており、ビル内の移動もスムーズです。 セキュリティ面では、機械警備システムを採用しているため、24時間体制で安全が確保されています。また、喫煙者の利便性を考慮し、喫煙スペースも設置されています。 立地については、目白坂STビルは江戸川橋駅から徒歩圏内に位置し、公共交通のアクセスが良好です。周辺は住宅が多く、スーパーマーケットやコンビニエンスストアが近くにあり、日常の買い物にも困りません。静かで落ち着いた環境ながら、ビジネスに必要な利便性を兼ね備えています。 ビル内には飲食店も入っており、ランチタイムや打ち合わせの際に利用することができます。また、個別空調、OAフロア、男女別トイレなど、オフィスとしての機能も充実しており、快適なワークスペースを提供します。 目白坂STビルは、その立地の良さ、充実した施設、洗練されたデザインが融合した魅力的なオフィス賃貸物件です。新耐震基準に準拠した安全性、そして日々の業務に必要な設備が整っており、さまざまな業種の企業にとって理想的なオフィス環境を提供します。
自分で探すより問い合わせる方が早いことがあります
WEB非公開物件があるから
オーナー様のご希望により「WEBでは非公開」にしている物件があります。 それらはWEBでいくら検索しても見つかりません。 先ずは条件などお知らせ頂けましたら非公開物件含め ピッタリのオフィスをご提案させて頂きます。 無理なお勧めはしておりませんので、お気軽にお問い合わせください。
対面でのご相談も受け付けております
ご来店も歓迎です
オフィス移転は社内・社外ともに非公開に行われることが殆どです。そのためアットオフィスでは、基本的に訪問によるコンサルティングを行っておりますが、ご来店の相談も歓迎です。お一人おひとりに親身にご対応させて頂きたい為、要予約とさせて頂いております。ご来店の際は先ずは下記よりご予約下さい。
募集終了のテナント区画
| 階数 | 坪数 | 賃料 + 共益費 | 敷金/礼金敷金 礼金 | 検討 |
|---|---|---|---|---|
| 2階 | 174.53坪 (576.96m²) | 募集終了 | - | - |
| 3階 | 174.53坪 (576.96m²) | 募集終了 | - | - |
| 6階 | 174.53坪 (576.97m²) | 募集終了 | - | - |
| 7階 | 174.53坪 (576.97m²) | 募集終了 | - | - |
読込中...
湯島/本郷/後楽園エリアで目白坂STビルに似た条件の物件
読込中...
| 取扱様態 | 仲介 |
|---|---|
| 取扱会社 | 株式会社 アットオフィス |