※このサイトに記載がある賃貸条件は、敷金・保証金などの預かり金を除き、別途消費税がかかります。
物件情報
設備詳細
| 空調 | 個別空調 |
|---|---|
| トイレ | 男女別トイレ室外 |
| 床仕様 | OA対応床(フリーアクセス) |
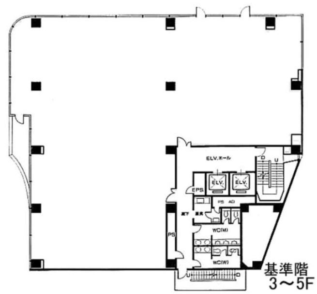
| エレベータ | 2 基 |
| 駐車場設備 | 空有 / 機械式駐車場 |
| その他 | 機械警備 / 24時間利用可 / 大型ビル / 光ファイバー / 新耐震基準 |
いちご本郷ビルの賃貸オフィス・事務所に関するお問い合わせ
いちご本郷ビルについて
文京区本郷に位置する「いちご本郷ビル」は、ビジネスと快適性を兼ね備えた賃貸オフィスビルです。1992年に竣工されたこのビルは、新耐震基準に適合し、安全性が高く評価されています。地上6階建てで、基準階面積は約158坪。デザインは高級感溢れる黒い石張りが印象的で、訪れる人々を魅了します。 立地の利便性もこのビルの大きな魅力の一つです。最寄りの春日駅からは徒歩わずか2分、複数の駅が徒歩圏内にあるため、東京都内の他のビジネスエリアへのアクセスも容易です。周辺には飲食店やコンビニ、銀行などが充実しており、日々のビジネス活動に必要なものがすぐに手に入る便利な環境が整っています。 ビルの内部設備も非常に充実しています。全室個別空調とOAフロアが完備されているため、快適なオフィス環境を整えることができます。また、男女別のトイレも室外に配置されており、室内のレイアウト自由度が高まります。エントランスは清潔感があり、訪問者を迎えるにふさわしい雰囲気を醸し出しています。ビル内には2基のエレベーターが設置されており、上層階へのアクセスもスムーズです。 セキュリティ面では、機械警備が導入されており24時間体制で安全が確保されています。さらに、ビル内には機械式の駐車場も完備されており、利用者の利便性をさらに高めています。ビルの使用時間に制限はなく、24時間利用可能です。 「いちご本郷ビル」は、その立地、設備、安全性を兼ね備えた賃貸オフィスビルとして、多くのビジネスパーソンにとって最適な選択肢です。文京区本郷という文化的な地域に位置するこのビルは、仕事と生活のバランスを重視する方々にもおすすめの物件です。
自分で探すより問い合わせる方が早いことがあります
WEB非公開物件があるから
オーナー様のご希望により「WEBでは非公開」にしている物件があります。 それらはWEBでいくら検索しても見つかりません。 先ずは条件などお知らせ頂けましたら非公開物件含め ピッタリのオフィスをご提案させて頂きます。 無理なお勧めはしておりませんので、お気軽にお問い合わせください。
対面でのご相談も受け付けております
ご来店も歓迎です
オフィス移転は社内・社外ともに非公開に行われることが殆どです。そのためアットオフィスでは、基本的に訪問によるコンサルティングを行っておりますが、ご来店の相談も歓迎です。お一人おひとりに親身にご対応させて頂きたい為、要予約とさせて頂いております。ご来店の際は先ずは下記よりご予約下さい。
募集終了のテナント区画
| 階数 | 坪数 | 賃料 + 共益費 | 敷金/礼金敷金 礼金 | 検討 |
|---|---|---|---|---|
| 1階 | 80.07坪 (264.69m²) | 募集終了 | - | - |
| 2階 | 164.63坪 (544.23m²) | 募集終了 | - | - |
| 3階 | 160.73坪 (531.33m²) | 募集終了 | - | - |
| 4階 | 156.44坪 (517.16m²) | 募集終了 | - | - |
| 5階 | 48.87坪 (161.58m²) | 募集終了 | - | - |
| 5階 | 107.81坪 (356.39m²) | 募集終了 | - | - |
読込中...
湯島/本郷/後楽園エリアでいちご本郷ビルに似た条件の物件
読込中...
| 取扱様態 | 仲介 |
|---|---|
| 取扱会社 | 株式会社 アットオフィス |