※このサイトに記載がある賃貸条件は、敷金・保証金などの預かり金を除き、別途消費税がかかります。
物件情報
設備詳細
| 空調 | 個別空調 |
|---|---|
| トイレ | 男女別トイレ室外 |
| 床仕様 | - |
| エレベータ | 1 基 |
| 駐車場設備 | - |
| その他 | 新耐震基準 |
アームズワンの賃貸オフィス・事務所に関するお問い合わせ
アームズワンについて
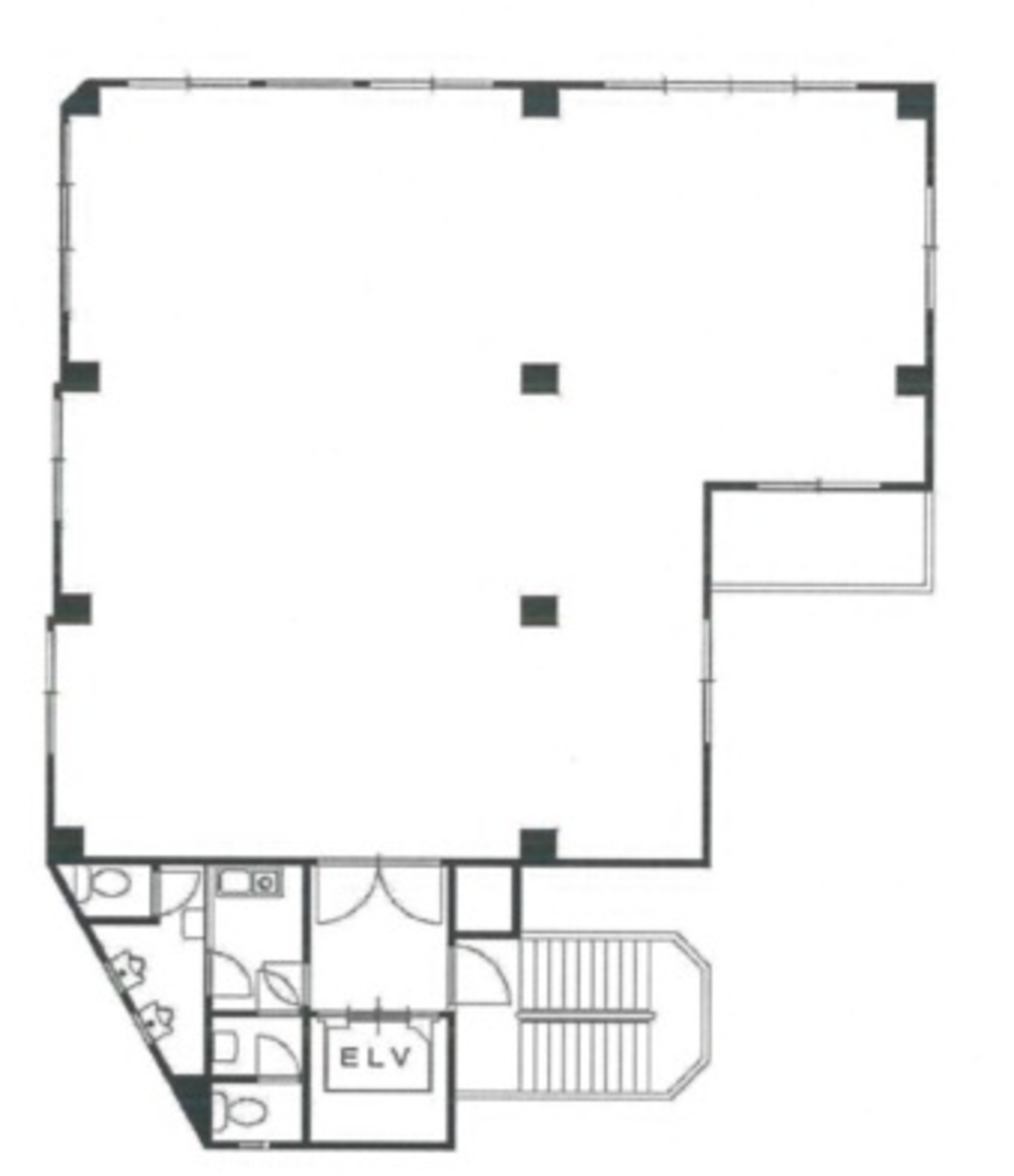
アームズワンビルは、1988年に竣工した渋谷区恵比寿西1丁目に位置する10階建ての賃貸オフィス物件です。このビルの位置するエリアは、東京のビジネスシーンの中心の一つであり、白いタイル張りの外観が洗練された印象を与えています。基準階約54坪の広々としたオフィススペースは、3面採光により自然光が豊富で、快適なワークスペースを提供します。 アームズワンビルの最も注目すべき特徴の一つは、その抜群の立地です。ビルは恵比寿駅から徒歩わずか5分というアクセスの良さを誇り、代官山駅からも近いため、多方面からのアクセスが可能です。このような立地は、従業員の通勤の利便性はもちろんのこと、ビジネスパートナーやクライアントとのミーティングにも最適です。 設備面では、エレベーターが1基設置されているほか、ビルのセキュリティシステムも充実しており、テナント企業の安全とプライバシーを守ります。また、周辺には飲食店やコンビニ、郵便局や銀行などが豊富にあり、ビルの利用者にとって非常に便利な環境が整っています。 アームズワンビルの最大の魅力は、明るく開放的なオフィススペースと、抜群の立地、そして高い設備水準を兼ね備えている点にあります。これらの特徴により、企業のイメージアップやブランディングに貢献し、働く従業員のモチベーション向上にも繋がるでしょう。アームズワンビルは、ビジネスを成功に導くための最適な環境を提供します。
アームズワンのこだわり
自分で探すより問い合わせる方が早いことがあります
WEB非公開物件があるから
オーナー様のご希望により「WEBでは非公開」にしている物件があります。 それらはWEBでいくら検索しても見つかりません。 先ずは条件などお知らせ頂けましたら非公開物件含め ピッタリのオフィスをご提案させて頂きます。 無理なお勧めはしておりませんので、お気軽にお問い合わせください。
対面でのご相談も受け付けております
ご来店も歓迎です
オフィス移転は社内・社外ともに非公開に行われることが殆どです。そのためアットオフィスでは、基本的に訪問によるコンサルティングを行っておりますが、ご来店の相談も歓迎です。お一人おひとりに親身にご対応させて頂きたい為、要予約とさせて頂いております。ご来店の際は先ずは下記よりご予約下さい。
募集終了のテナント区画
| 階数 | 坪数 | 賃料 + 共益費 | 敷金/礼金敷金 礼金 | 検討 |
|---|---|---|---|---|
| 6階 | 37.95坪 (125.45m²) | 募集終了 | - | - |
読込中...
近くのエリアで探してみる
恵比寿/代官山/広尾エリアでアームズワンに似た条件の物件
読込中...
| 取扱様態 | 仲介 |
|---|---|
| 取扱会社 | 株式会社 アットオフィス |