SIビル青山7階の賃貸情報
175.32 坪 (579.57m²)
※このサイトに記載がある賃貸条件は、敷金・保証金などの預かり金を除き、別途消費税がかかります。
SIビル青山の建物概要
設備詳細
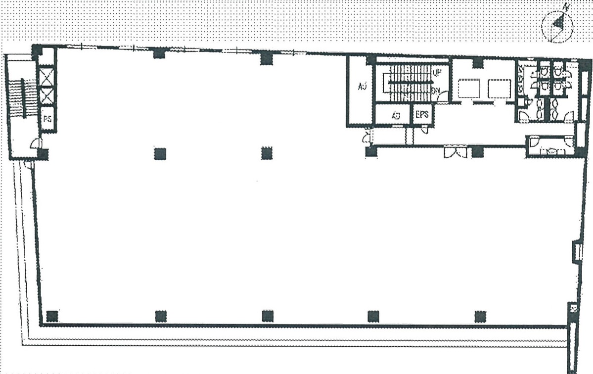
| 空調 | 個別空調 |
|---|---|
| トイレ | 男女別トイレ室外 |
| 床仕様 | OA対応床(フリーアクセス) |
| エレベータ | 2 基 |
| 駐車場設備 | 空有 |
| その他 | 機械警備 / 大型ビル / 光ファイバー / 24時間利用可 |
SIビル青山7階の賃貸オフィス・事務所に関するお問い合わせ
SIビル青山について
東京のビジネスの中心地、青山一丁目に位置する「SIビル青山」は、交通アクセスの利便性と機能性を兼ね備えたオフィスビルとして注目を集めています。このビルは、東京メトロ銀座線の青山一丁目駅からわずか徒歩1分の距離にあり、ビジネスの動きが活発なエリアの中心に位置しています。その立地条件は、企業がビジネス展開を行う上で大きな利点となります。 「SIビル青山」は、1969年に竣工した鉄骨鉄筋コンクリート造の建物で、地上8階、地下3階の構造を持ち、延床面積は約2,644坪に及びます。耐震補強工事を施された安全性の高いビルであり、1階には特に防火耐火性能が求められるガソリンスタンドが設置されているなど、ビル自体の安全性にも配慮がされています。 エントランスはエレガントなデザインで、訪れる人々に好印象を与えるだけでなく、ビル内は24時間体制の機械警備が完備されており、テナント企業は安心してビジネスに専念できる環境が整えられています。OAフロアの採用や、個別空調、光ファイバー対応などの最新設備も整っており、現代のビジネスニーズに応える機能性を備えています。 ビルの立地は、青山通りに面しているため、大通り沿いの見通しの良さや、広い歩道が企業や従業員の日々の通勤にも便利な環境を提供します。さらに、周辺には飲食店やショッピングモール、コンビニ等が豊富にあるため、ビジネスの合間に利用するのにも非常に便利です。 「SIビル青山」は、その立地の利便性、安全性、そして機能性を兼ね備えたビルとして、企業が東京でビジネスを行う上で最適な選択肢の一つです。全面リニューアル工事を経て、さらに魅力を増したこのビルは、ビジネスの可能性を広げるための理想的な空間を提供しています。
自分で探すより問い合わせる方が早いことがあります
WEB非公開物件があるから
オーナー様のご希望により「WEBでは非公開」にしている物件があります。 それらはWEBでいくら検索しても見つかりません。 先ずは条件などお知らせ頂けましたら非公開物件含め ピッタリのオフィスをご提案させて頂きます。 無理なお勧めはしておりませんので、お気軽にお問い合わせください。
対面でのご相談も受け付けております
ご来店も歓迎です
オフィス移転は社内・社外ともに非公開に行われることが殆どです。そのためアットオフィスでは、基本的に訪問によるコンサルティングを行っておりますが、ご来店の相談も歓迎です。お一人おひとりに親身にご対応させて頂きたい為、要予約とさせて頂いております。ご来店の際は先ずは下記よりご予約下さい。
青山エリアでSIビル青山に似た条件の物件
読込中...
SIビル青山と同じ最寄駅の物件
読込中...
| 取扱様態 | 仲介 |
|---|---|
| 取扱会社 | 株式会社 アットオフィス |