※このサイトに記載がある賃貸条件は、敷金・保証金などの預かり金を除き、別途消費税がかかります。
物件情報
設備詳細
| 空調 | 個別空調 |
|---|---|
| トイレ | - |
| 床仕様 | OA対応床(フリーアクセス) |
| エレベータ | 1 基 |
| 駐車場設備 | 空有 |
| その他 | 光ファイバー / 24時間利用可 / 新耐震基準 / 1階の物件 |
バティマン・イケダの賃貸オフィス・事務所に関するお問い合わせ
バティマン・イケダについて
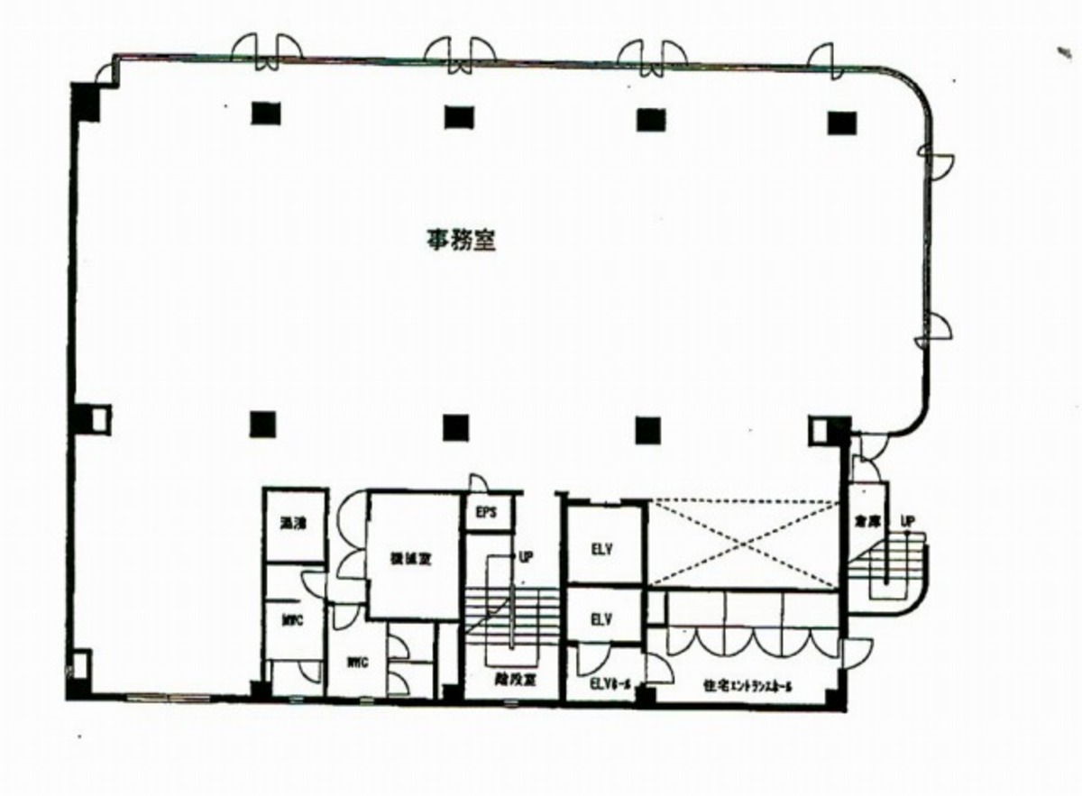
渋谷区神宮前に位置するバティマン・イケダビルは、ビジネスの中心地にふさわしい洗練された賃貸オフィス物件であり、その魅力と機能性を備えた設計には、多くの企業が注目しています。1983年に新耐震基準に従って竣工されたこの6階建てのビルは、安全性と快適性を兼ね備えております。 バティマン・イケダビルの最大の特徴は、その明るく開放的なオフィス空間です。窓面が多く設計されているため、自然光がたっぷりと入ることで、作業環境が明るく快適に保たれます。また、基準階約113坪の広々としたスペースがあり、コの字型の執務形状と複数の柱が特徴的な室内レイアウトは、柔軟なオフィスデザインを可能にします。 設備面では、ビル内に駐車場を完備しており、エレベーターは1基設置されています。セキュリティ面では、機械警備を導入しており、テナントの安全をしっかりと守ります。また、オフィス内の空調は個別空調となっており、各テナントが快適な環境を自由に調整できます。 立地においてもバティマン・イケダビルは魅力的です。外苑西通りに近接しており、最寄りの外苑前駅からは歩いてすぐ、表参道駅も徒歩圏内にあります。この立地はビジネスの機会を広げるだけでなく、周辺の充実した生活インフラも利用しやすいという点で、テナント企業の従業員にとっても大変便利です。周囲にはコンビニや郵便局、さらには商店街もあり、日々の生活に欠かせないサービスを手軽に利用できます。 バティマン・イケダビルは、その安全性、機能性、そして抜群の立地条件を兼ね備えた賃貸オフィスビルとして、あらゆるビジネスの成功をサポートします。明るく開放的なオフィス空間で、創造性と生産性を高め、ビジネスの可能性を広げるための理想的な環境を、ぜひバティマン・イケダビルで実現してください。
バティマン・イケダのこだわり
自分で探すより問い合わせる方が早いことがあります
WEB非公開物件があるから
オーナー様のご希望により「WEBでは非公開」にしている物件があります。 それらはWEBでいくら検索しても見つかりません。 先ずは条件などお知らせ頂けましたら非公開物件含め ピッタリのオフィスをご提案させて頂きます。 無理なお勧めはしておりませんので、お気軽にお問い合わせください。
対面でのご相談も受け付けております
ご来店も歓迎です
オフィス移転は社内・社外ともに非公開に行われることが殆どです。そのためアットオフィスでは、基本的に訪問によるコンサルティングを行っておりますが、ご来店の相談も歓迎です。お一人おひとりに親身にご対応させて頂きたい為、要予約とさせて頂いております。ご来店の際は先ずは下記よりご予約下さい。
募集終了のテナント区画
| 階数 | 坪数 | 賃料 + 共益費 | 敷金/礼金敷金 礼金 | 検討 |
|---|---|---|---|---|
| 2階 | 105.66坪 (349.29m²) | 募集終了 | - | - |
| 3階 | 112.47坪 (371.8m²) | 募集終了 | - | - |
| 4階 | 112.47坪 (371.8m²) | 募集終了 | - | - |
| 5階 | 112.47坪 (371.8m²) | 募集終了 | - | - |
読込中...
表参道/外苑前エリアでバティマン・イケダに似た条件の物件
読込中...
| 取扱様態 | 仲介 |
|---|---|
| 取扱会社 | 株式会社 アットオフィス |