※このサイトに記載がある賃貸条件は、敷金・保証金などの預かり金を除き、別途消費税がかかります。
物件情報
設備詳細
| 空調 | 個別空調 |
|---|---|
| トイレ | 男女別トイレ室外 |
| 床仕様 | OA対応床(フリーアクセス) |
| エレベータ | 3 基 / エレベーター有 |
| 駐車場設備 | 空有 / 機械式駐車場 / 平置き駐車場 |
| その他 | 大型ビル / 光ファイバー / 機械警備 / 新耐震基準 / 24時間利用可 / 管理人常駐 / フリーレント |
CN-1 BLDG.の賃貸オフィス・事務所に関するお問い合わせ
CN-1 BLDG.について
CN-1は、木場5丁目にある大型ビルです。木場駅から徒歩1分の駅近物件です。門前仲町駅からは徒歩10分です。1991年に竣工しました。鉄骨造により耐震性があります。エレベーターは3基です。個別空調のため、管理しやすくコスト削減になります。床下にケーブルを入れるOAフロアで、すっきりとした空間です。高速通信向けの光ファイバーにより、ノンストレスです。セキュリティ設備があります。周辺に飲食店やコンビニがあり、急用時も困りません。パーキングが点々とあるため、駐車場探しがスムーズです。大通りに面しており、見通しの良い場所です。駅前通りのため、移動時間が短縮しやすいエリアです。
自分で探すより問い合わせる方が早いことがあります
WEB非公開物件があるから
オーナー様のご希望により「WEBでは非公開」にしている物件があります。 それらはWEBでいくら検索しても見つかりません。 先ずは条件などお知らせ頂けましたら非公開物件含め ピッタリのオフィスをご提案させて頂きます。 無理なお勧めはしておりませんので、お気軽にお問い合わせください。
対面でのご相談も受け付けております
ご来店も歓迎です
オフィス移転は社内・社外ともに非公開に行われることが殆どです。そのためアットオフィスでは、基本的に訪問によるコンサルティングを行っておりますが、ご来店の相談も歓迎です。お一人おひとりに親身にご対応させて頂きたい為、要予約とさせて頂いております。ご来店の際は先ずは下記よりご予約下さい。
募集終了のテナント区画
| 階数 | 坪数 | 賃料 + 共益費 | 敷金/礼金敷金 礼金 | 検討 |
|---|---|---|---|---|
| 1階 | 110.18坪 (364.23m²) | 募集終了 | - | - |
| 2階 | 170.24坪 (562.78m²) | 募集終了 | - | - |
| 3階 | 170.24坪 (562.78m²) | 募集終了 | - | - |
| 4階 | 170.24坪 (562.78m²) | 募集終了 | - | - |
| 5階 | 170.24坪 (562.78m²) | 募集終了 | - | - |
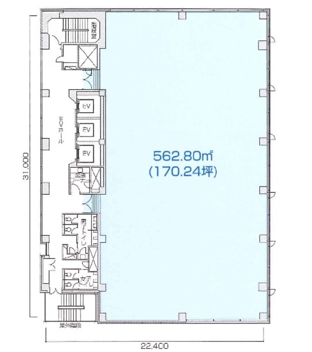
| 6階 | 170.24坪 (562.8m²) | 募集終了 | - | - |
| 7階 | 170.24坪 (562.78m²) | 募集終了 | - | - |
| 8階 | 170.24坪 (562.78m²) | 募集終了 | - | - |
読込中...
江東区エリアでCN-1 BLDG.に似た条件の物件
読込中...
| 取扱様態 | 仲介 |
|---|---|
| 取扱会社 | 株式会社 アットオフィス |