※このサイトに記載がある賃貸条件は、敷金・保証金などの預かり金を除き、別途消費税がかかります。
物件情報
設備詳細
| 空調 | 個別空調 |
|---|---|
| トイレ | 男女別トイレ室外 |
| 床仕様 | - |
| エレベータ | 1 基 |
| 駐車場設備 | - |
| その他 | 機械警備 / 光ファイバー / 東京賃料が坪11000円以下 / 塾・スクール / 居抜き |
泰美ビルの賃貸オフィス・事務所に関するお問い合わせ
泰美ビルについて
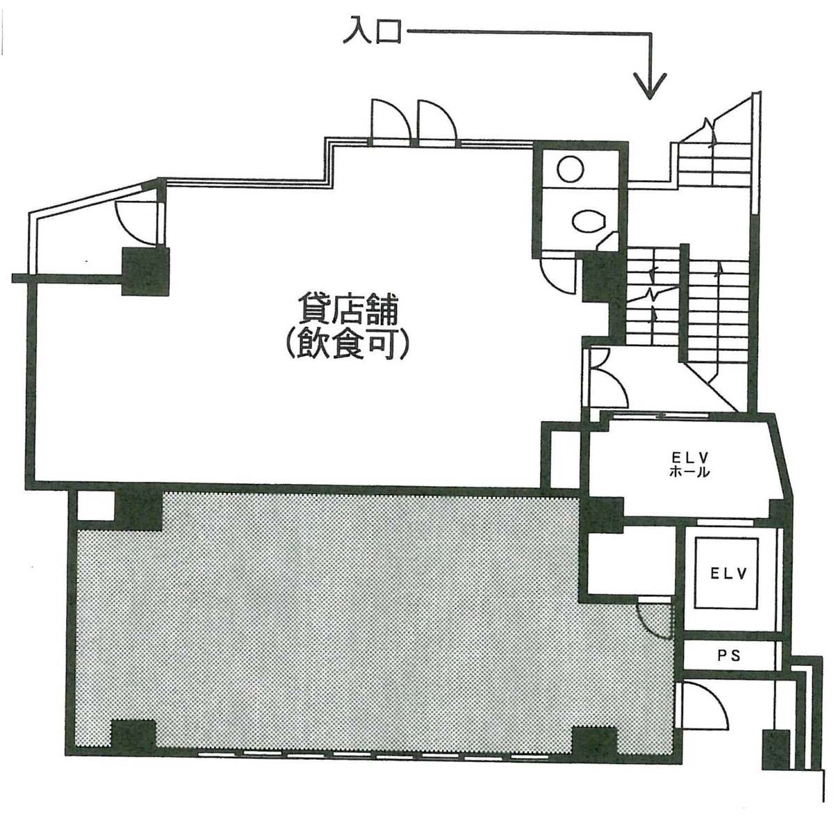
泰美ビルは、新宿区愛住町に位置する貸事務所で、都市機能と利便性を兼ね備えた魅力的な物件です。最寄り駅の曙橋駅から徒歩3分、さらに四谷三丁目駅からも徒歩5分という好立地に位置し、通勤や訪問に非常に便利です。ビルは靖国通りから一本入ったところにあり、静かな環境の中で集中して業務に取り組むことができます。 1978年に竣工した泰美ビルは、2003年にリニューアルが行われ、現代的で美しい外観を保っています。レンガ調の外装が重厚感を醸し出し、袖看板の設置も可能で視認性に優れています。建物は地上6階建てで、1フロア1テナントのプライバシーを重視した構造です。 貸室は約40坪で、男女別のトイレと給湯室が効率的に配置されており、OAフロアーの導入により自由なレイアウトが可能です。また、個別空調と24時間稼働可能な機械警備が整備されており、快適で安全な業務環境が提供されています。大きな窓面からは十分な自然光が入り、明るい室内での執務が実現します。 エレベーターは1基設置されており、2階からの利用となりますが、日々の移動もスムーズです。周辺にはオフィスビルやマンションが立ち並び、駅への道中にはコンビニや飲食店も点在しており、日常の利便性も高いです。 泰美ビルの立地と設備は、多様な業種のニーズに応えるもので、効率的なオフィス運営が可能です。新宿区愛住町という恵まれた立地で、快適かつ機能的なオフィス環境をお探しの方に、ぜひご検討いただきたい物件です。
泰美ビルのこだわり
自分で探すより問い合わせる方が早いことがあります
WEB非公開物件があるから
オーナー様のご希望により「WEBでは非公開」にしている物件があります。 それらはWEBでいくら検索しても見つかりません。 先ずは条件などお知らせ頂けましたら非公開物件含め ピッタリのオフィスをご提案させて頂きます。 無理なお勧めはしておりませんので、お気軽にお問い合わせください。
対面でのご相談も受け付けております
ご来店も歓迎です
オフィス移転は社内・社外ともに非公開に行われることが殆どです。そのためアットオフィスでは、基本的に訪問によるコンサルティングを行っておりますが、ご来店の相談も歓迎です。お一人おひとりに親身にご対応させて頂きたい為、要予約とさせて頂いております。ご来店の際は先ずは下記よりご予約下さい。
募集終了のテナント区画
| 階数 | 坪数 | 賃料 + 共益費 | 敷金/礼金敷金 礼金 | 検討 |
|---|---|---|---|---|
| 2階 | 47.89坪 (158.31m²) | 募集終了 | - | - |
| 2階 | 19坪 (62.81m²) | 募集終了 | - | - |
| 2階 | 17.64坪 (58.33m²) | 募集終了 | - | - |
| 3階 | 38.27坪 (126.51m²) | 募集終了 | - | - |
| 3階 | 44.6坪 (147.44m²) | 募集終了 | - | - |
| 4階 | 45.86坪 (151.6m²) | 募集終了 | - | - |
| 5階 | 42.89坪 (141.79m²) | 募集終了 | - | - |
| 5階 | 47.26坪 (156.23m²) | 募集終了 | - | - |
| 6階 | 39.89坪 (131.87m²) | 募集終了 | - | - |
| 6階 | 44.34坪 (146.58m²) | 募集終了 | - | - |
読込中...
四ツ谷/信濃町エリアで泰美ビルに似た条件の物件
読込中...
| 取扱様態 | 仲介 |
|---|---|
| 取扱会社 | 株式会社 アットオフィス |