カーザ ベルソーレの賃料条件
| 階数 | 坪数 | 賃料 + 共益費 | 敷金/礼金敷金 礼金 | 検討 |
|---|---|---|---|---|
| 5階 | 26.5坪 (87.6m²) | お問合せ下さい (坪:-) | 12ヶ月 無12ヶ月/無 | |
| 8階 | 26.5坪 (87.6m²) | お問合せ下さい (坪:-) | 12ヶ月 無12ヶ月/無 |
※このサイトに記載がある賃貸条件は、敷金・保証金などの預かり金を除き、別途消費税がかかります。
物件情報
設備詳細
| 空調 | 個別空調 |
|---|---|
| トイレ | 男女別トイレ |
| 床仕様 | OA対応床(フリーアクセス) |
| エレベータ | 1 基 / エレベーター有 |
| 駐車場設備 | - |
| その他 | 光ファイバー / 24時間利用可 / 機械警備 / 新耐震基準同等以上 / 新耐震基準 |
カーザ ベルソーレの賃貸オフィス・事務所に関するお問い合わせ
カーザ ベルソーレについて
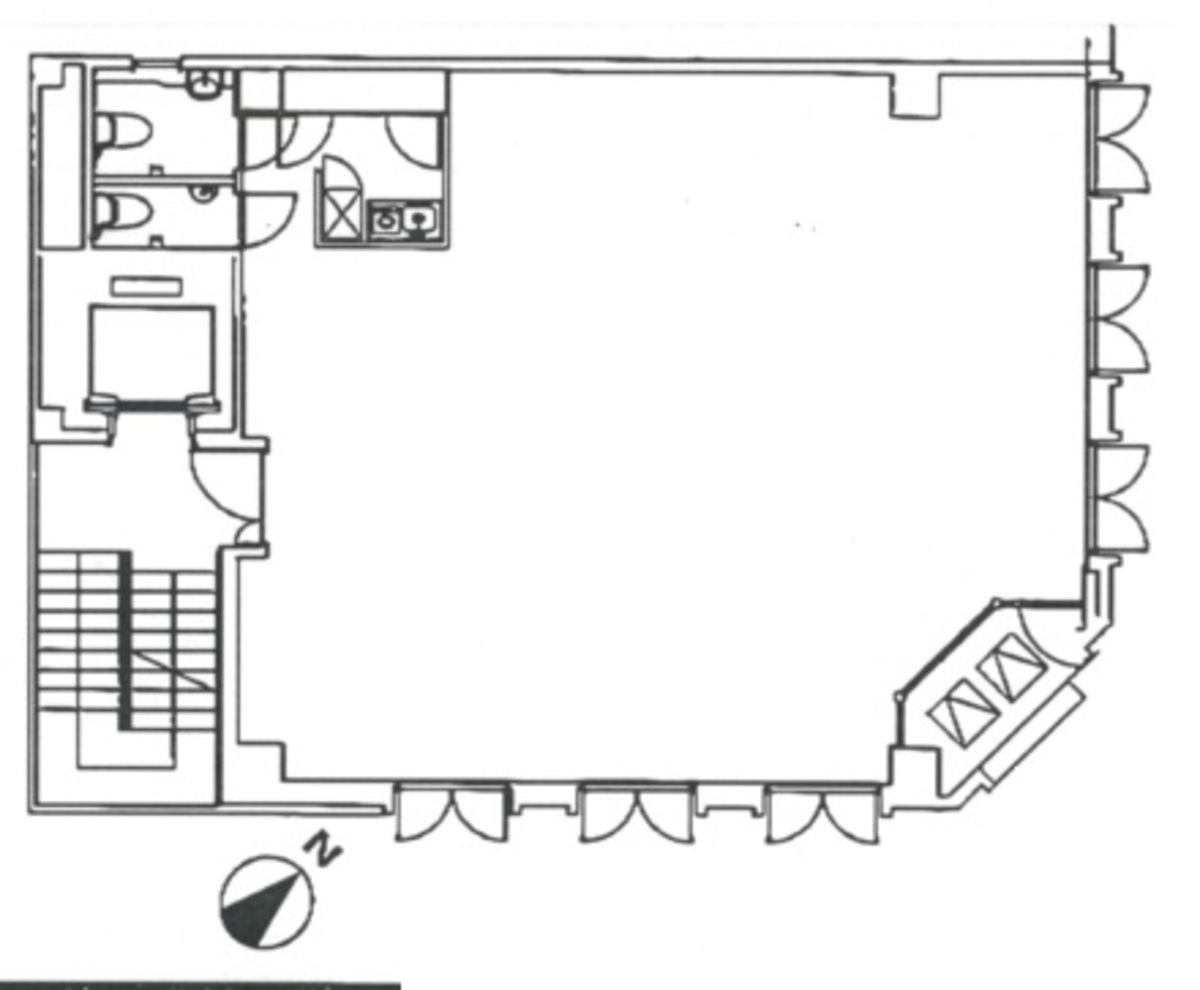
カーザベルソーレは、東京都港区東新橋2丁目、汐留シオサイト5区のイタリア街に位置する、高級感あふれる地上9階建てのビルです。この物件は、独特の外観と洗練されたデザインで、周囲のイタリア風の街並みと調和しています。特に、映画やドラマ、ファッション雑誌のロケ地としても使われることのある汐留西公園に面している点は、この物件の魅力を一層引き立てています。 カーザベルソーレの基準階の賃貸オフィスは約26.7坪の広さがあり、ほぼ正方形のレイアウトしやすい間取りが特徴です。角地に位置するため、2方向に窓があり、自然光が豊富に入ることで、開放感あふれるオフィス空間を提供します。また、貸室の床荷重は300kg/㎡となっており、さまざまなビジネスニーズに対応可能です。 ビル内の設備も充実しており、OAフロア(100mm)、光ファイバー、個別空調、男女別トイレなど、現代のオフィス環境に必要な要素を備えています。セキュリティ面では、機械警備による安全対策が施されており、エントランスはオートロックシステムで管理されています。これにより、入居企業と従業員の安全は十分に考慮されています。 立地においても、カーザベルソーレは絶好の位置にあります。汐留駅から徒歩7分、新橋駅、御成門駅、大門駅も徒歩圏内と、複数の鉄道路線が利用可能なことは、ビジネスの利便性を高めます。また、1階にはオシャレなレストランが入居しており、周辺には気取らないカフェや飲食店、チェーン店、コンビニ、スーパーマーケットなどがあり、日々の業務に必要なあらゆるサービスが手の届く範囲に揃っています。 ビルのデザイン、設備、立地の3つの要素が見事に融合しているカーザベルソーレは、企業にとっての価値あるオフィス空間を提供しています。こうした特徴は、オフィスビル選びにおいて重要な判断材料となります。カーザベルソーレは、ビジネスの成功を目指す企業にとって、最適な選択肢の一つと言えるでしょう。
自分で探すより問い合わせる方が早いことがあります
WEB非公開物件があるから
オーナー様のご希望により「WEBでは非公開」にしている物件があります。 それらはWEBでいくら検索しても見つかりません。 先ずは条件などお知らせ頂けましたら非公開物件含め ピッタリのオフィスをご提案させて頂きます。 無理なお勧めはしておりませんので、お気軽にお問い合わせください。
対面でのご相談も受け付けております
ご来店も歓迎です
オフィス移転は社内・社外ともに非公開に行われることが殆どです。そのためアットオフィスでは、基本的に訪問によるコンサルティングを行っておりますが、ご来店の相談も歓迎です。お一人おひとりに親身にご対応させて頂きたい為、要予約とさせて頂いております。ご来店の際は先ずは下記よりご予約下さい。
募集終了のテナント区画
| 階数 | 坪数 | 賃料 + 共益費 | 敷金/礼金敷金 礼金 | 検討 |
|---|---|---|---|---|
| 1階 | 25.13坪 (83.07m²) | 募集終了 | - | - |
| 2階 | 26.71坪 (88.3m²) | 募集終了 | - | - |
| 3階 | 26.5坪 (87.6m²) | 募集終了 | - | - |
| 4階 | 26.5坪 (87.6m²) | 募集終了 | - | - |
| 6階 | 26.5坪 (87.6m²) | 募集終了 | - | - |
| 7階 | 26.5坪 (87.6m²) | 募集終了 | - | - |
| 9階 | 26.5坪 (87.6m²) | 募集終了 | - | - |
読込中...
近くのエリアで探してみる
新橋/虎ノ門/神谷町エリアでカーザ ベルソーレに似た条件の物件
読込中...
| 取扱様態 | 仲介 |
|---|---|
| 取扱会社 | 株式会社 アットオフィス |