※このサイトに記載がある賃貸条件は、敷金・保証金などの預かり金を除き、別途消費税がかかります。
物件情報
設備詳細
| 空調 | - |
|---|---|
| トイレ | - |
| 床仕様 | - |
| エレベータ | - |
| 駐車場設備 | - |
| その他 | - |
納豆会館の賃貸オフィス・事務所に関するお問い合わせ
納豆会館について
# 納豆会館ビルの紹介 納豆会館ビルは、東京都台東区元浅草2丁目に位置する魅力的なオフィス賃貸物件です。このビルは、その立地、設備、周辺環境においてビジネスを行う上での多くの利点を提供しています。 ## 立地の利便性 納豆会館ビルの最大の魅力の一つは、東京地下鉄銀座線稲荷町駅から徒歩わずか2分という非常に便利な立地です。稲荷町駅は、都心へのアクセスが良好で、交通の便が非常に優れています。銀座線を利用することで、日本橋や銀座、新橋などの主要ビジネスエリアへの迅速なアクセスが可能となり、ビジネスの拠点として最適です。また、上野駅や浅草駅も近く、観光地や商業施設が充実しているため、取引先との会議や打ち合わせの際にも利便性が高いです。 ## 建物の特徴と設備 納豆会館ビルは、モダンなデザインと機能性を兼ね備えた建物です。オフィススペースは広々としており、企業の成長に合わせて柔軟にレイアウト変更が可能です。また、ビル全体が最新のセキュリティシステムを完備しており、安心して業務に集中できる環境が整っています。高速インターネット回線も標準装備されており、デジタル時代のビジネスに不可欠なインフラが充実しています。 ## 周辺環境 周辺には多くの飲食店やカフェ、コンビニエンスストアが点在しており、ランチタイムや仕事後のリフレッシュにも困りません。また、近くには複数の銀行や郵便局もあり、日常業務に必要な金融サービスを迅速に利用することができます。さらに、台東区は歴史的な文化財や観光名所が豊富で、ビジネスの合間にリフレッシュする場所も多く存在します。 ## ビジネスにおける利点 納豆会館ビルのもう一つの強みは、その経済的な賃貸条件です。都心の主要ビジネスエリアに近接しながらも、比較的リーズナブルな賃料でオフィススペースを提供しているため、コストパフォーマンスに優れています。これにより、スタートアップ企業や中小企業にとっても魅力的な選択肢となっています。 さらに、ビルの管理会社は迅速かつ丁寧な対応で知られ、入居者からの信頼も厚いです。定期的なメンテナンスや清掃が行き届いており、常に快適なオフィス環境が維持されています。 ## 結論 納豆会館ビルは、その優れた立地、充実した設備、便利な周辺環境、そして経済的な賃貸条件により、多くの企業にとって理想的なオフィススペースを提供しています。ビジネスの拠点としてこの場所を選ぶことで、効率的かつ快適な業務運営が実現できるでしょう。興味を持たれた企業様には、ぜひ一度現地を訪れて、その魅力を直接感じていただきたいと思います。
納豆会館のこだわり
自分で探すより問い合わせる方が早いことがあります
WEB非公開物件があるから
オーナー様のご希望により「WEBでは非公開」にしている物件があります。 それらはWEBでいくら検索しても見つかりません。 先ずは条件などお知らせ頂けましたら非公開物件含め ピッタリのオフィスをご提案させて頂きます。 無理なお勧めはしておりませんので、お気軽にお問い合わせください。
対面でのご相談も受け付けております
ご来店も歓迎です
オフィス移転は社内・社外ともに非公開に行われることが殆どです。そのためアットオフィスでは、基本的に訪問によるコンサルティングを行っておりますが、ご来店の相談も歓迎です。お一人おひとりに親身にご対応させて頂きたい為、要予約とさせて頂いております。ご来店の際は先ずは下記よりご予約下さい。
募集終了のテナント区画
| 階数 | 坪数 | 賃料 + 共益費 | 敷金/礼金敷金 礼金 | 検討 |
|---|---|---|---|---|
| 1階 | 12.1坪 (40m²) | 募集終了 | - | - |
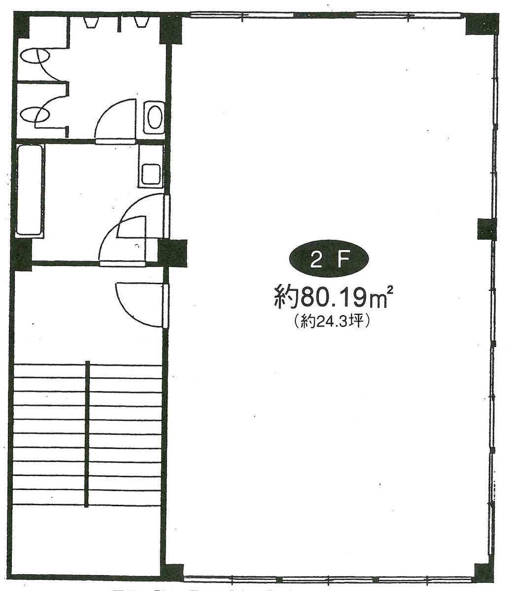
| 2階 | 24.3坪 (80.33m²) | 募集終了 | - | - |
| 4階 | 21.72坪 (71.82m²) | 募集終了 | - | - |
| 4階 | 24.3坪 (80.33m²) | 募集終了 | - | - |
| 5階 | 21.93坪 (72.5m²) | 募集終了 | - | - |
読込中...
浅草橋/蔵前/浅草エリアで納豆会館に似た条件の物件
読込中...
| 取扱様態 | 仲介 |
|---|---|
| 取扱会社 | 株式会社 アットオフィス |