※このサイトに記載がある賃貸条件は、敷金・保証金などの預かり金を除き、別途消費税がかかります。
物件情報
設備詳細
| 空調 | 個別空調 |
|---|---|
| トイレ | - |
| 床仕様 | - |
| エレベータ | 3 基 |
| 駐車場設備 | 空無 / 機械式駐車場 |
| その他 | 機械警備 / 24時間利用可 / 大型ビル / 光ファイバー / 新耐震基準 / 駅直結 / 1階の物件 / フリーレント / スケルトン / クリニック |
白金高輪ステーションビルの賃貸オフィス・事務所に関するお問い合わせ
白金高輪ステーションビルについて
あなたが次に事業を拡大するための拠点を探しているなら、私たちが自信を持ってお勧めする白金高輪ステーションビルは、その理想的な選択肢となるでしょう。このビルは、東京都港区白金1丁目に位置し、白金高輪駅から徒歩わずか1分という、まさにビジネスの中心地にふさわしい立地条件を誇ります。2003年竣工のこの高級オフィスビルは、最新の耐震基準で設計された安全性と、ガラス貼りの洗練された外観が特徴です。エントランスホールは広々としており、ビル全体が高いデザイン性と機能性を兼ね備えています。 このビルの最大の魅力は、その絶好の立地にあります。白金高輪駅と直結しており、雨の日でも濡れずに通勤が可能です。また、麻布通り沿いに位置しているため、高い視認性を誇り、ビジネスの展開において大きなメリットとなるでしょう。さらに、1階にはローソンが入居し、隣接する商業エリアにはスターバックスコーヒー、サイゼリアなどの飲食店が揃っており、ビジネスの日々に彩りを加えます。 ビル内のオフィススペースは、無柱の開放的な空間が広がり、窓面も大きく設けられており、明るく快適な職場環境を提供します。様々なサイズの区画が用意されており、企業のニーズに合わせた柔軟な対応が可能です。これにより、ベンチャー企業から大手企業まで、多くのビジネスがこの地で成長し、拡張移転を果たしています。 加えて、ビル内に駐車場を完備しているため、車通勤をする従業員や来訪者にも便利です。エレベーターは3基設置されており、ビル内の移動もスムーズです。 白金高輪ステーションビルは、ビジネスの成功を加速させるための全てを備えています。立地の利便性、高いデザイン性と機能性、そして柔軟なスペースの提供。あなたのビジネスが次のステージに進むための理想的な場所、それが白金高輪ステーションビルです。新たなビジネスの舞台として、ぜひこのビルをお選びください。
自分で探すより問い合わせる方が早いことがあります
WEB非公開物件があるから
オーナー様のご希望により「WEBでは非公開」にしている物件があります。 それらはWEBでいくら検索しても見つかりません。 先ずは条件などお知らせ頂けましたら非公開物件含め ピッタリのオフィスをご提案させて頂きます。 無理なお勧めはしておりませんので、お気軽にお問い合わせください。
対面でのご相談も受け付けております
ご来店も歓迎です
オフィス移転は社内・社外ともに非公開に行われることが殆どです。そのためアットオフィスでは、基本的に訪問によるコンサルティングを行っておりますが、ご来店の相談も歓迎です。お一人おひとりに親身にご対応させて頂きたい為、要予約とさせて頂いております。ご来店の際は先ずは下記よりご予約下さい。
募集終了のテナント区画
| 階数 | 坪数 | 賃料 + 共益費 | 敷金/礼金敷金 礼金 | 検討 |
|---|---|---|---|---|
| 1階 | 46.43坪 (153.49m²) | 募集終了 | - | - |
| 1階 | 38.59坪 (127.57m²) | 募集終了 | - | - |
| 2階 | 210.75坪 (696.69m²) | 募集終了 | - | - |
| 2階 | 70.42坪 (232.83m²) | 募集終了 | - | - |
| 2階 | 140.32坪 (463.88m²) | 募集終了 | - | - |
| 3階 | 86.59坪 (286.25m²) | 募集終了 | - | - |
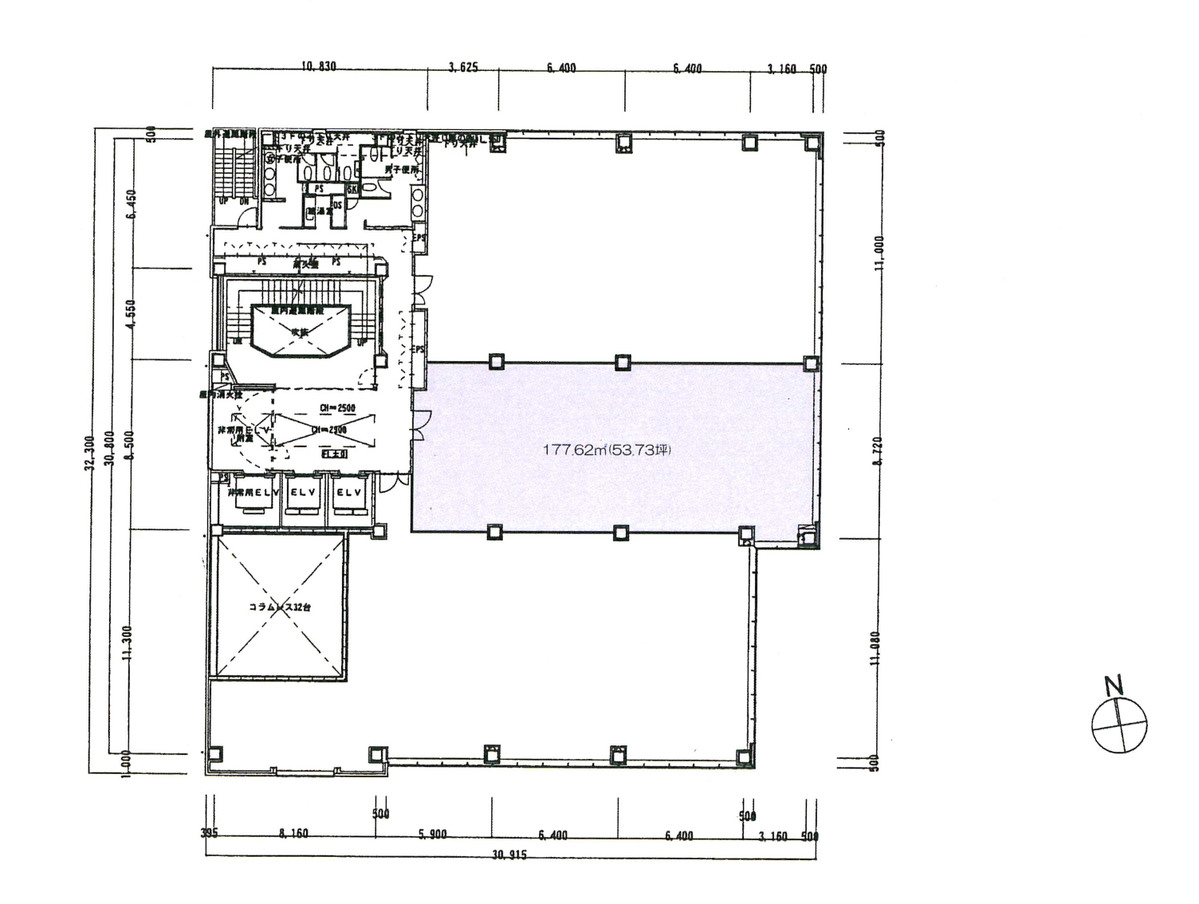
| 3階 | 53.73坪 (177.62m²) | 募集終了 | - | - |
| 3階 | 210.75坪 (696.69m²) | 募集終了 | - | - |
| 3階 | 70.43坪 (232.83m²) | 募集終了 | - | - |
| 4階 | 210.76坪 (696.73m²) | 募集終了 | - | - |
| 4階 | 53.73坪 (177.62m²) | 募集終了 | - | - |
| 5階 | 210.76坪 (696.73m²) | 募集終了 | - | - |
| 5階 | 140.32坪 (463.88m²) | 募集終了 | - | - |
| 5階 | 53.73坪 (177.62m²) | 募集終了 | - | - |
| 5階 | 86.59坪 (286.25m²) | 募集終了 | - | - |
| 5階 | 70.42坪 (232.82m²) | 募集終了 | - | - |
| 6階 | 210.76坪 (696.73m²) | 募集終了 | - | - |
| 7階 | 210.76坪 (696.73m²) | 募集終了 | - | - |
| 7階 | 70.42坪 (232.79m²) | 募集終了 | - | - |
| 7階 | 124.16坪 (410.45m²) | 募集終了 | - | - |
| 8階 | 86.59坪 (696.69m²) | 募集終了 | - | - |
| 8階 | 140.32坪 (463.87m²) | 募集終了 | - | - |
| 9階 | 226.3坪 (748.11m²) | 募集終了 | - | - |
| 10階 | 226.3坪 (748.1m²) | 募集終了 | - | - |
| 10階 | 155.87坪 (515.29m²) | 募集終了 | - | - |
読込中...
近くのエリアで探してみる
港南/高輪/白金台/(品川駅)エリアで白金高輪ステーションビルに似た条件の物件
読込中...
| 取扱様態 | 仲介 |
|---|---|
| 取扱会社 | 株式会社 アットオフィス |